丹华公馆售楼处(营销中心)深圳-丹华公馆首页网站|楼盘图文详情
扫描到手机,新闻随时看
扫一扫,用手机看文章
更加方便分享给朋友
深圳【丹华公馆】
开发商售楼处电话咨询/预约热线:400-088-3336【售楼中心】24小时热线
深圳【丹华公馆】售楼处电话:400-088-3336【营销中心】中介勿扰
深圳丹华公馆楼盘详情介绍,包含售楼处电话、地址、户型图、小区图片、区位优势、交通、周边商业配套等楼盘详细资料;更详细楼盘资料和最新折扣价格,请拨打售楼处电话,销售会为您详细介绍楼盘。
深圳【丹华公馆】售楼处电话:400-088-3336【营销中心】中介勿扰

深圳【丹华公馆】售楼处电话:400-088-3336【营销中心】中介勿扰
项目基本信息
【总占地】约40346.08㎡
【总建面】约319013.64㎡
【绿化率】30%
【折扣后均价】6.7w起
【产品面积】约58-101㎡
【层高】58㎡层高3.9米,101㎡层高2.95米
【产权年限】70年(2017年12月22日至2087年12月21日)
【物业费】5.9元/㎡*月
【交楼时间】2025年中精装修交付
【发展商】深圳市桑泰房地产开发有限公司
【物业公司】深圳市厚德物业服务有限公司
深圳【丹华公馆】售楼处电话:400-088-3336【营销中心】中介勿扰
深圳【丹华公馆】售楼处电话:400-088-3336【营销中心】中介勿扰
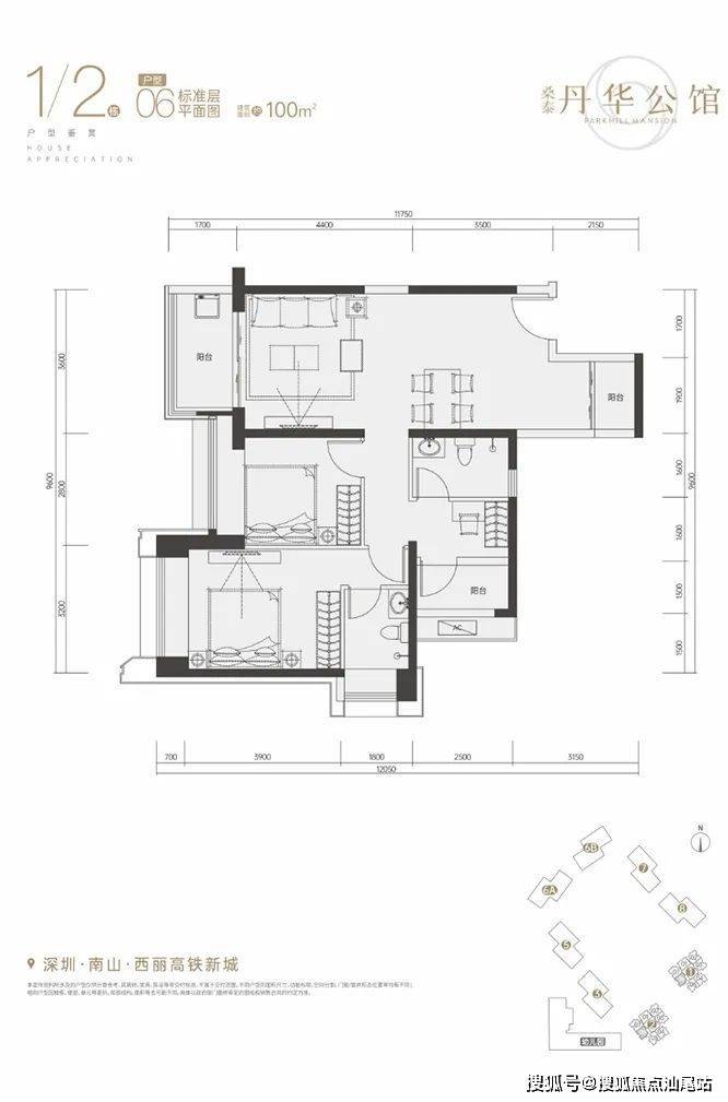
户型及视频参考
约58-101㎡户型;

深圳【丹华公馆】售楼处电话:400-088-3336【营销中心】中介勿扰
深圳【丹华公馆】售楼处电话:400-088-3336【营销中心】中介勿扰
深圳【丹华公馆】售楼处电话:400-088-3336【营销中心】中介勿扰
深圳【丹华公馆】售楼处电话:400-088-3336【营销中心】中介勿扰
户型解读
户型主要考虑房间数量,空间和布局合理性等因素(优先考虑面向刚需的小3房户型)。丹华公馆有101平的标准3房,但价格不属于刚需了。所以这里按58平的看,58平做成3室或4室,真是挺让人开眼的。官方说层高3.9米,去掉一些楼层中间的高度,估计有效层高还得少一些,可能只有3.7米多,做成复式,还是比较让人难以接受的。一般正常的复式要达到5米。那3.7米给下面2米2的话,上面最多1米5。很难称为一个房间,说是上铺可能更合适。但是在价格300多万的话还是非常实惠的,毕竟在南山及福田都找不到第二个这种总价的第一梯队学区房
4梯12户,36层
深圳【丹华公馆】售楼处电话:400-088-3336【营销中心】中介勿扰
深圳【丹华公馆】售楼处电话:400-088-3336【营销中心】中介勿扰
深圳【丹华公馆】
开发商售楼处电话咨询/预约热线:400-088-3336【售楼中心】24小时热线
深圳【丹华公馆】售楼处电话:400-088-3336【营销中心】中介勿扰
深圳丹华公馆楼盘详情介绍,包含售楼处电话、地址、户型图、小区图片、区位优势、交通、周边商业配套等楼盘详细资料;更详细楼盘资料和最新折扣价格,请拨打售楼处电话,销售会为您详细介绍楼盘。
免责声明:
以上所发布的关于楼盘相关图文信息仅供您买房前参考,以上所有关于本楼盘的图文资料及说明请以最终以项目批文及双方在楼盘营销中心现场签署的买卖最终合同为准;本图文内容如无意中侵犯到某方权益,请联系我们将会及时处理!
声明:本文由入驻焦点开放平台的作者撰写,除焦点官方账号外,观点仅代表作者本人,不代表焦点立场。
