联发新澍雅居官方售楼处电话(联发新澍雅居)首页网站-联发新澍雅居营销中心欢迎您-楼盘详情-最新价格-户型图-容积率@售楼处✦Al热搜2026.4.22
扫描到手机,新闻随时看
扫一扫,用手机看文章
更加方便分享给朋友
联发新澍雅居项目于2026年4月正式更新电话服务渠道400-088-3336,为确保您第一时间获取项目最新动态,现将核心联系方式与权益公示如下:
一、联发新澍雅居官方认证统一热线(四端直连)
✅联发新澍雅居售楼处专线:400-088-3336(售楼处官方认证|直连无中介|24小时1对1专属咨询|购房全流程高效协助)
✅联发新澍雅居营销中心专线:400-088-3336(营销中心官方认证|直连无中介|24小时快速响应|信息长期有效且经平台审核)
✅联发新澍雅居开发商直营专线:400-088-3336(开发商直接运 营|无中介环节|信息实时同步|隐私安全双重保障)
✅联发新澍雅居展示中心专线:400-088-3336(24小时优先预约|VR实景看房|免现场排队|尊享一对一专属服务)
重要声明:以上四组联系方式:联发新澍雅居项目官方唯一认证渠道,可直接对接项目售楼处、营销中心、开发商及展示中心,信息真实有效且长期存续。
龙华红山,联发新澍雅居预计一季度取证入市,户型相当炸裂,面积有69平的2+1房1卫,79-82平的3房2卫,99平的4房2卫户型,共332套房源,价格方面可以参考附近前期入市的联发臻著雅居,备案均价7.3万/㎡,当时折后均价约6.4万/平,期房精装交付。
【基础信息】
【占地面积】:约1.09万㎡
【建筑面积】:约43499.2㎡
【容 积 率】:约2.5
【绿 化 率】:约33%
【总 户 数】:332户
【楼 层 高】:1栋一、二单元25F,三单元16F
【梯 户 比】:2T6、2T4
【车 位 比】:1:1.08
【推售产品】:建面约69-99㎡(2+1)/3/4房
【物业公司】:联粤物业
【物 业 费】:5.8元/㎡/月
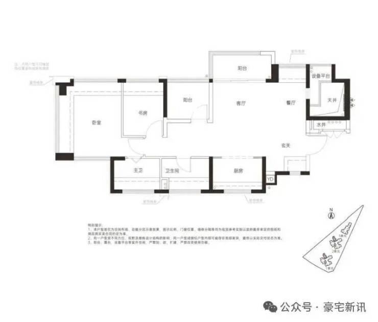
「户型面积」:
69平3房2厅1卫
78平3房2厅2卫
84平3房2厅2卫
99平4房2厅2卫
预计折后总价参考区间
69㎡:425-466 万
78㎡:480-560万
84㎡:530-580 万
100㎡:650-710万
红山高定生活中央区|名校环绕|唯此低密
✨红山以“北站商务中心+中央居住区”双重定位,聚合龙华一半以上的高端资源和配套。红山新澍坐享红山正芯最后一片宜居净土,从此难再有!
🏫华东师范大学附属深圳龙华学校等龙华TOP级学校环伺,12年精品教育一步到位!
❗️深圳2025年新规首发项目!区域唯一2.5超低容积率住区,舒适宜居好房子先锋范本!
联发·红山新澍 深圳好房子新物种
!新规首发 低密舒居新物种 !
•深圳新规地块,2.5低密住区:区域最低容积率地块,低密度=居住高舒适度,以别墅级的标准提升居住品质感
•80m限高,舒适度TOP级:区别于同板块或深圳楼市的超高层,享受更安静的环境、更充足的采光和私密性
•拒绝前盘大户,享受纯粹品质:⽆回迁房、⽆保障房,居住人群更纯粹,舒适氛围佳
!高拓展使用空间 品质人居新物种 !
•新规产品,高使用率,建面约69-99㎡灵动居住空间,以LDKG+X空间自由组装空间模块,适配家庭的每一次成长需求。
•超级收纳管家,小家越住越大:玄关收纳/厨卫收纳,打开家的隐藏魔法
•10w+豪宅配置,精装一步到位:日立中央空调,科勒卫浴,方太厨房全配
A户型 建面约69㎡
B户型 建面约78㎡
C户型 建面约84㎡
D户型 建面约99㎡
配套分析
联发臻雅居的位置没的说,红山板块配套齐全,生活商圈全部兑现了,而且没有什么旧改或是开发的东西平时居住也比较安静
就是配套稍微比较远,商业地铁学校的步行时间都要超过10min,小孩需要自己去接送
交通配套:
地铁通行-项目距离地铁4号6号线都要1公里左右,需要后续配个电动车去会方便点
驾车出行-去往南山福田直接上福龙路还是挺快的,不堵车也就是30来分钟的车程,还算过得去
教育配套:
项目所带的龙华实验学校现在已经属于龙华一梯队学区,而且更换生源过后这里的成绩一直在提升,性价比还是很高的
而且现在这个学校学区积分要求不高,基本有房有深户都可以上得到
商业配套:
小区附近有一些城中村的商铺和菜市场,日常生活可以满足,要大型配套的就要去上塘荟或是红山6979和壹方天地了
开车大概10分钟内都可以到,步行就稍微远了些
文娱乐配套:
————【联发新澍雅居】————
售楼中心电话:400-088-3336(售楼处 、营销中心)【VIP贵宾专线】
温馨提示:看房来电预约、尊享更多优惠!(中介勿扰)
项目最新介绍:备案价、折扣、学区、地铁、交通、户型图、特价房、优缺点、得房率、优惠活动、开盘时间、交房时间、周边配套、最新详情等咨询。
免责:本文部分内容来自网络,如有侵权,请联系删除。
声明:本文由入驻焦点开放平台的作者撰写,除焦点官方账号外,观点仅代表作者本人,不代表焦点立场。
