中粮福田大悦广场→中粮福田大悦广场售楼中心→楼盘百科详情→首页网站→京基御景峯售楼处电话→户型价格-容积率-样板房-配套详情@售楼处
扫描到手机,新闻随时看
扫一扫,用手机看文章
更加方便分享给朋友
深圳【中粮福田大悦广场】
中粮福田大悦广场售楼处电话:400 088 3336【看房请提前线上预约】
户型图丨楼盘详情丨折扣价格丨最新房源丨周边配套丨
开发商售楼处直销_欢迎来电预约尊享内部折扣_欢迎预约品鉴品鉴〢
中粮福田大悦广场售楼处电话400-088-3336中粮福田大悦广场【售楼中心】中粮福田大悦广场楼盘详情
中粮福田大悦广场售楼处电话400-088-3336【营销中心】
4000883336
T2栋建面约32629㎡独栋总部 总价13.6亿
◎北环封面◎福田超总集群◎双地铁物业◎楼体冠名权◎总部双大堂◎专属车位及物业◎空中花园◎11部高效电梯
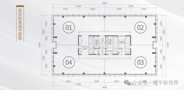
【中粮·福田大悦广场】项目简介
建面约20万㎡商务综合体,集总部研发办公、菁英居住资产、双首层潮流商业街区于一体。
【中粮·福田大悦广场】T2栋基础信息
【中粮·福田大悦广场】T2栋总部高标配置
双大堂系统:约10米挑高中空、约630㎡独立接待大堂,专为“壹企壹栋”定制。
空中花园:8-9层、16-17层打造空中花园,满足观景、社交、活动举办等多用途。
11部高效电梯:高低区共配置11台迅达品牌高速电梯,通过人脸识别及高效分区派梯。
节能开启窗:有效促进室内自然通风,保持高质量鲜氧空气,营造健康舒适的办公环境。
户户通上下水:每层4个角落预留水口,独
享总裁办公室,气度非凡,更多空间布局自主权。
150mm便捷网络地板:便于布线,任意槽区可出线,维修难度低,适配现代化办公,节省成本。
【中粮·福田大悦广场】福田惟此一手独栋现楼

【中粮·福田大悦广场】区位及配套
福田智核 | 近120万㎡产业空间,片区投入约500亿
梅彩智谷雄踞福田CBD北门户,地处深港中部发展轴,近120万㎡产业空间,片区投入约500亿;集聚新能源、半导体与集成电路等战略性新兴产业,布局以人工智能前沿技术应用为核心的新型产业,荣耀、汇顶科技、深科技等头部名企强势带动。
超总集群 | 四巨头联袂,总部商务兑现
智谷核芯之上,片区4大项目联合开发,约60万㎡商务集群稳步兑现,数字化物流、生物科技、新能源汽车、半导体、金融等多家总部企业已签约入驻,“福田智核超总集群”蔚然成势。

高效交通 | 北环大道首排,22号线地铁口,邻近9号线
北环大道旁,匹配企业的强昭示性需求,让企业形象始终在前沿。位于22号线(建设中)地铁口,距9号线梅村站约500米、下梅林站约700米,高效通行,便捷办公。

精粹集优 | 城市级中心配套,丰盛都会商务新体验
近瞰福田CBD,坐拥6大福田旗舰人文艺术配套、2大梅彩地标。

生态焕能 | 三山二水三公园,激活企业创新灵感
3公里范围内景观资源丰盛,在城市核心CBD享有低密、健康、轻松的生态商务办公环境

多元商业 | 商务社交目的地,优质办公生活平台
1公里范围内辐射卓悦汇+佐邻虹湾,家楼下商业链接华强+恒利地块超万平方,满足商务精英人士日常工作及休闲所需。
独栋专属 | 总部定制权益,全面赋能总部企业
楼体冠名权:幕墙预留发光字安装条件,整购客户可根据需求做logo展示
专属车位使用:整购客户可享专属车位使用权,安心泊车,尊崇出行
大小物业模式:大物业——楼栋外围公共区域,由项目统一管理;小物业——楼栋内部物业可由客户管理,保护客户私密性和个性化需求

福田助企政策:“1+9+N”政策,福田区产业高质量发展,针对进驻企业规模可一事一议。
深圳【中粮福田大悦广场】
中粮福田大悦广场售楼处电话:400 088 3336【看房请提前线上预约】
户型图丨楼盘详情丨折扣价格丨最新房源丨周边配套丨
开发商售楼处直销_欢迎来电预约尊享内部折扣_欢迎预约品鉴品鉴〢
中粮福田大悦广场售楼处电话400-088-3336中粮福田大悦广场【售楼中心】中粮福田大悦广场楼盘详情
中粮福田大悦广场售楼处电话400-088-3336【营销中心】
免责声明:本文所有文章、图片、音频视频文件等资料版权归版权所有人所有,因非原创文章及图片等内容无法一一和版权者联系,如原作者或编辑认为作品不宜上网供大家浏览,请及时来电告之,我们将立即予以修改或删除。本文如无意中侵犯了某方的知识产权,告之即删。
声明:本文由入驻焦点开放平台的作者撰写,除焦点官方账号外,观点仅代表作者本人,不代表焦点立场。
