绿景白石洲(营销中心)首页网站-绿景白石洲售楼处(销售中心)-绿景白石洲欢迎您-地址-价格-户型-小区环境-楼盘详情-交房时间-周边配套
扫描到手机,新闻随时看
扫一扫,用手机看文章
更加方便分享给朋友
深圳南山【绿景白石洲】
绿景白石洲售楼处电话:400-088-3336(营销中心)
绿景白石洲售楼处电话:400-088-3336【营销中心】_24小时电话
户型图丨楼盘详情丨折扣价格丨最新房源丨周边配套丨
欢迎来电咨询〢尊享内部优惠服务〢预约案场内部销售人员〢
专业热情一对一服务!为您安排楼盘内场专业销售人员一对一接待!让你买的放心住的舒心!
4000883336
项目基本信息
【开发商】:深圳市绿景天盛实业有限公司
【楼盘地址】:深圳市南山区深南大道与沙河东路交叉口东北角
【总占地】:46万㎡(发四期开发,一期占地3.06万㎡)
【建筑规模】:500万方,开发时长8-10年
【总建面】:一期建面:46.26万㎡( 可售157073㎡,可售公寓100015.36㎡)
【容积率】:10.3
【绿化率】:30%
【规划户数】:一期住宅1257户,公寓1489套,
【停车位】:1983个
【建筑类型】:塔楼
【物业类型】:高端住宅,高端公寓,写字楼,高奢酒店,40万平方巨无霸商业。
【产权年限】:住宅70年,公寓40年
【园林面积】:9000㎡
【交付标准】:送一张品牌精装修
【物业管理费】:5.8元/㎡/月 (参考周边华润城润玺9.5元/㎡/月 华侨城5.8-10元/㎡/月)
【物业公司】:仲量联行顾问,绿景物业
【绿景白石洲】深圳最大体量的超级旧改项目,建筑面积超过300万平方米,集商业、办公、酒店、文旅、居住于一体,致力于打造无边界的未来城市。绿景白石洲不仅地理位置优越,还承载着深厚的历史文化底蕴,是深圳城市发展的重要组成部分。
城市之心 超级十字轴
约500万㎡无边界共享城
集商业、办公、酒店、文旅、居住于一体的城市目的地。
户型鉴赏
建面约110m²三房两厅两卫
瞰景三房,卧室标配飘窗,观景阳台展开风景画卷
|餐客一体化,连通阳台,畅享全家欢聚时刻
|动静分区舒适化营造,休慎与家庭活动互不干扰
|主卧私享化,独立卫浴、衣帽间,自在天地一隅
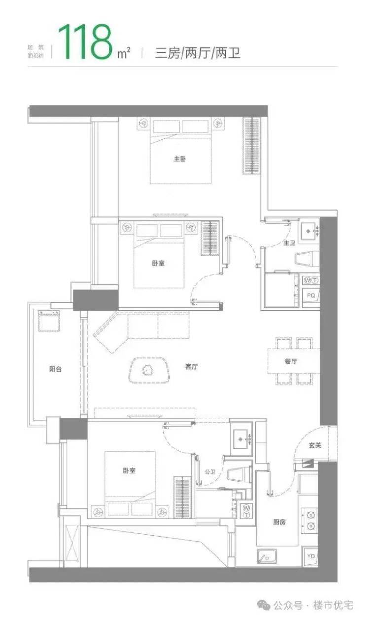
建面约118㎡三房两厅两卫
横向四开间设计,南向约13.4m奢华采光面,和光同悦南向观景C位,客厅、卧室随心眺望窗外城市风景
奢享主卧,生活阳台、衣帽间、私人卫浴,独享非凡领地
餐客一体贯通阳台,打造舒适、宽敞的家庭欢聚天地本户型所在位置示意
A户型 建面约125㎡三房两厅两卫
瞰景三房,飘窗、阳台拉开居住视野,主卧私享功能产备 LDK一体化设计,打造无边界、社交化的餐客厨系统
I动静分区舒适化营造,休慎与家庭活动互不干扰
双阳台设计,厨房连通生活阳台,延展更多空间,随心收纳
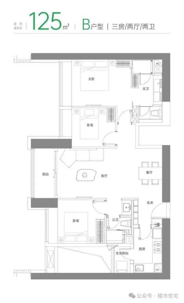
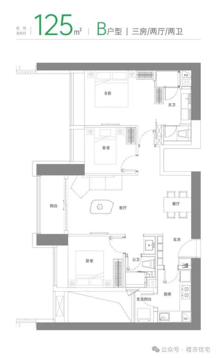
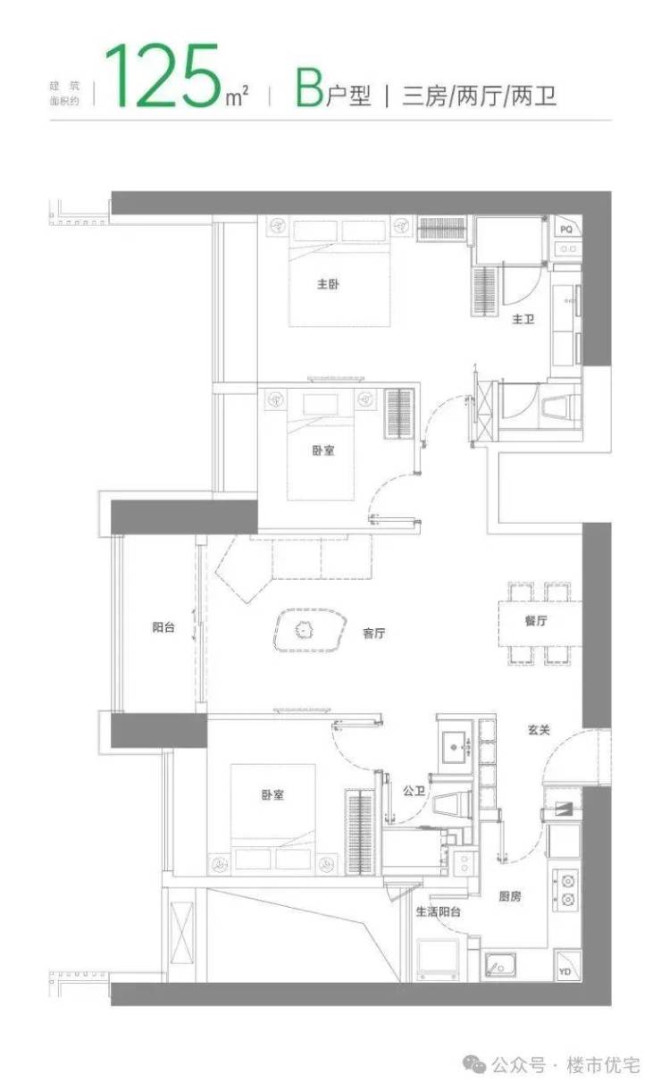
B户型 建面约125㎡三房两厅两卫
|横向四开间设计,南向约14.1m奢华采光面,和光同悦
|南向观景 C 位,客厅、卧室随处纵览非凡城市景观
|奢享主卧,步入式衣帽间,私人卫浴,独享自我领地
|双阳台设计,厨房连通生活阳台,延展更多空间,随心收纳
C户型 建面约125 m² 三房两厅两卫
卧室标配飘窗,引入丰沛阳光,全家尽情舒展餐客一体贯通阳台,打造舒适、宽敞的欢聚天地奢享主卧,独享衣帽间、私人卫浴,自我非凡领地
双阳台设计,厨房连通生活阳台,延展更多空间,随心收纳本
建面约187m² 四房两厅两卫
横向创新户型,超宽向阳尺度,吸纳阳光新风
主卧私享化,独立卫浴、衣帽间,自在天地一隅四开间朝南,卧室大飘窗,在阳光中享受美好栖居
南北双阳台,一面晾晒收纳,一面休闲享受,精彩不止
深圳南山【绿景白石洲】
绿景白石洲售楼处电话:400-088-3336(营销中心)
绿景白石洲售楼处电话:400-088-3336【营销中心】_24小时电话
户型图丨楼盘详情丨折扣价格丨最新房源丨周边配套丨
欢迎来电咨询〢尊享内部优惠服务〢预约案场内部销售人员〢
专业热情一对一服务!为您安排楼盘内场专业销售人员一对一接待!让你买的放心住的舒心!
温馨提示:本宣传资料为邀约邀请,针对本项目概况进行介绍,仅供参考不作为销售承诺。项目不排除因政府相关规划、规定及开发商未能控制的原因而发生变化,最终以双方签署的正式《商品房预售/销售合同》及其他相关协议文本为准。关于该房屋所在小区所属片区商业、学校等相关配套,其建设进度、规划方案等事项均由政府相关主管部门主导,资料中所示距离为地图直线距离及高德地图导航数据,最终以政府相关主管部门出具的书面文件为准。部分图片来源于网络,如有侵权,请联系删除
声明:本文由入驻焦点开放平台的作者撰写,除焦点官方账号外,观点仅代表作者本人,不代表焦点立场。
