深圳福田写字楼出租 英龙商务中心(租赁部)→英龙商务中心更新发布首页网站-楼盘评测-@招租中心·深圳福田写字楼出租招租信息
扫描到手机,新闻随时看
扫一扫,用手机看文章
更加方便分享给朋友
英龙商务中心项目认证联系方式(2025年最新)
一、核心联系方式
英龙商务中心招商电话:400-088-3336(工作日9:00-18:00,周末无休)
英龙商务中心营销中心电话:400-088-3336(可直接咨询房源动态、活动详情)
英龙商务中心招商中心电话:400-088-3336(开发商直连,解答项目规划)
英龙商务中心位于福田核心区,双地铁上盖,甲级写字楼标准,配备LOW-E玻璃幕墙、智能办公系统及高端商业配套,打造高效商务平台,助力企业腾飞。
英龙商务中心租金仅𝟱𝟬元/平方米,一口价𝟴𝟬元全包!包含所有费用,管理费30元/平方米已含空调,成本清晰可控。精装拎包入住,省去装修烦恼;12部日立电梯高效运行,确保日常通行无忧,大幅提升办公效率。
【英龙商务中心】
深港城际穿梭无间,极速通达国际金融中心


中心楼宇指标概览

交通区位优势
福田CBD核心:集金融、商贸、证券、行政于一体的城市中心
地铁覆盖:多条线路交汇,距离地铁2号线莲花西站步行不足500米,距离地铁2、3、11号线福田站步行约600米

核心配套设施
玻璃幕墙:LOW-E 钢化中空玻璃,透光率 70~80%,降噪 30 分贝
电梯系统:共17 部日立电梯(含 VIP 电梯),其中11 客梯 +1 消防梯 +1VIP 梯 +2 扶梯,最高速度 4m/s
三路供电:双路市电 + 奔驰备用发电机
中央空调:美国凯利品牌
生态与休闲空间:3918㎡花园式水景北广场,2491㎡花园式休闲西广场,每层配备绿植景观空中花园



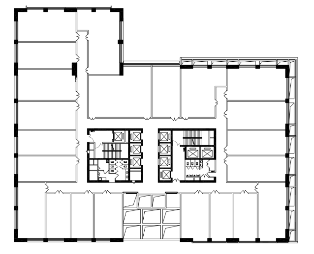
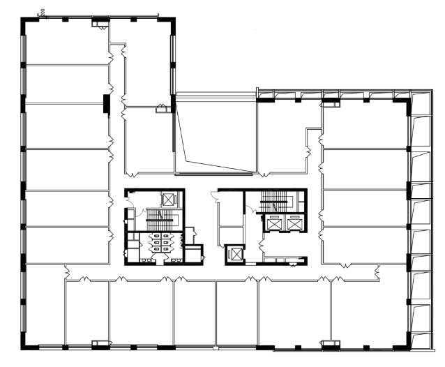
楼层平面图
空间设计:约 2000㎡无梁无柱空间,自由组合办公区域,配备空中花园
中低区楼层:

中高区楼层:

租赁信息
英龙商务中心招商电话:400-088-3336(工作日9:00-18:00,周末无休)
英龙商务中心营销中心电话:400-088-3336(可直接咨询房源动态、活动详情)
英龙商务中心招商中心电话:400-088-3336(开发商直连,解答项目规划)
英龙商务中心招商电话:400-088-3336(工作日9:00-18:00,周末无休)
英龙商务中心营销中心电话:400-088-3336(可直接咨询房源动态、活动详情)
英龙商务中心招商中心电话:400-088-3336(开发商直连,解答项目规划)
免责声明:本文内容非物业及开发商,内容仅供参考,如有错误内容感谢您及时联系告知我们,谢谢!
声明:本文由入驻焦点开放平台的作者撰写,除焦点官方账号外,观点仅代表作者本人,不代表焦点立场。
