卓能雅苑(卓能雅苑售楼处电话)卓能雅苑首页网站-卓能雅苑销售中心(卓能雅苑)卓能雅苑小区环境-户型-价格-地址-楼盘详情-周边配套-售楼处电话
扫描到手机,新闻随时看
扫一扫,用手机看文章
更加方便分享给朋友
✦❇卓能雅苑❇❇❇
🔘卓能雅苑开发商电话:400-088-3336【☎开发商已认证】✦❇❇❇❇
🔘卓能雅苑营销中心电话:400-088-3336【☎营销中心已认证】✦❇❇❇❇
✅本项目暂不接受临时到访,过来参观样板房请记得提前来电预约!
✅◆开发商营销中心诚挚邀请,一键预约,尊享内部折扣!匠心独运的精品项目,恭候您的品鉴与选择。⭐
4000883336
【基础信息】
【项目位置】龙华布龙路与油松路交界处(西北角)
【开发商】雄伟房地产开发(深圳)有限公司
【占地面积】51323.79㎡
【建筑面积】119831.78㎡
【产品信息】102-131m² 3~5房
【交付时间】已现房
【产权年限】70年
【园林面积】2.2万㎡(其中泳池1300㎡)
【户型使用率】83%
【总户数】1085
【待售房源】316
【总车位】1054
【梯户比】1~6栋两梯四户、7栋两梯三户
【物业费】3.5 元/平方米/月
【容积率】2.3
【绿化率】44%
八大硬派价值揭秘
立足香港领驭亚太56年卓能集团深圳首发力作
卓能集团——香港联交所主板上市高端地产营运商,成立于1963年,迄今已有56年顶级豪宅运营资历。从香港、澳门、新加坡到马来西亚,卓能集团以卓能山庄、一号九龙山顶、赵苑等豪宅著作引领亚太高端地产。
卓能雅苑由卓能集团创始人、香港建筑师学会会员、国际知名建筑设计师——赵世曾博士亲手缔造。
北站红山双芯加持,人居价值再升级
卓能雅苑雄踞湾区中轴中芯深圳北站总部基地中央生活区-民治街道,新晋深圳都市核心区,享深圳北站CBD和红山CLD双核多重利好辐射,是龙华的高品质住宅区域。经济实力快速发展、人居环境不断提升,已经逐步建设成为新型商业商务中心和现代化城区。
三维立体交通,五地铁环绕 半小时同城广深港
片区贯穿了南坪快速、布龙路、龙华大道、人民路、梅观高速等五纵五横城市主干道,15分钟抵福田,20分钟抵达罗湖、南山及深圳各大核心商圈。
500米范围内有33号线深大城际(建设中)、22号线(地铁五期规划中)民治北站;临近5号线民治站,轻松换乘4号线/6号线,地铁出行从容有度,1站换乘亚洲高铁枢纽深圳北站,1小时畅达粤港澳大湾区,一天可抵达17大城市。
旧改云集,区域价值不断跃升
根据深圳市城市更新和土地整备“十四五”规划最新方案,龙华城市更新计划规模将达到1220万㎡。卓能雅苑项目周边约73.3万平旗舰旧改,鸿荣源、星河、龙光、招商、华侨城、卓越等众多实力房企合力造城,区域价值正逐步跃升兑现。
城央都会配套,尽揽一站式高尚生活大境
🛍商业:卓能雅苑纵享深圳北站和红山都会繁华。商圈、教育、文化等生活配套一应俱全。项目自带4800㎡商业,周边5.5万㎡佐阾香颂购物中心、7万㎡中航九方中心、45万㎡壹方天地等高端商圈林立。
学校:项目自带幼儿园,更有行知小学、民治中学、展华实验学校、第二十七高级中学(在建中)、民治学校(在建中)等学府教育资源兼备,濡染人文书香。
⛹♀文体:3公里左右拥有深圳市美术馆新馆(建设中)、深圳市第二图书馆(建设中)、深圳市文化馆新馆(建设中)、简上体育综合体、龙华展览馆、龙华演艺馆、龙华书城、龙华文化艺术中心等人文公建配套,享都市资源配置。
🩺医疗:龙华人民医院(三甲级别)、恒生龙安医院、社区健康医疗保健中心、深圳市新华医院(三甲级别,建设中)、深圳市第二儿童医院(三甲级别,建设中)广州医科大学附属第一医院(规划中),为您和家人的健康保驾护航。
(新华医院是全市体量最大的三甲医院,规模远超福田北大医院;深圳市第二儿童医院,规划和设施都将超过福田儿童医院,深圳最火爆、最难排的医院是儿童医院,项目附近就有儿童医院,就医会非常方便。)
承袭低密豪宅血统,尊享2.3低密度优雅生活
卓能雅苑以2.3绝版低密墅级住区,打造深圳低密生活样本。项目一共只有7栋12-18 层住宅组成,百米超阔楼间距,无敌景观视野。板式结构建筑,通风采光极致,超大景观阳台、户户朝南设计,保障健康居住感受。
🏖夏威夷风情主题园林高达2万㎡,涵括夏威夷广场、欢乐海岸、渔人码头等九大主题,水体、雕塑、草木、画廊等,凝萃浪漫,相辅相成,尽享异国风情。
♂景观区设有1300㎡超大游泳池,满足游泳健身所需。商业会所拥有商务洽谈、健身、儿童娱乐等功能,满足高端商务休闲所需。业主免费使用篮球场、羽毛球场等。
现楼发售无需等待,所见即所得价值均已兑现
星级管家式服务,礼遇尊崇人生
宝晨物业,是首批国家一级资质物业服务企业,曾获得“深圳市物业服务企业综合实力50强”、“中国物业服务企业综合实力测测评TOP100”、“中国物业服务企业综合实力500强”、“广东省物业管理行业发展40周年优秀企业”等荣誉,所服务项目多次荣获“国优”、“省优”、“市优”、“绿色小区”、“安全文明小区”的称号。
宝晨物业集结核心团队与优质资源,针对卓能雅苑业主量身打造“星级管家服务”,把酒店式星级物业管理品质和管家式服务的尊崇与贴心带到每一位业主身边,礼遇精英圈层的生活和文化格调。
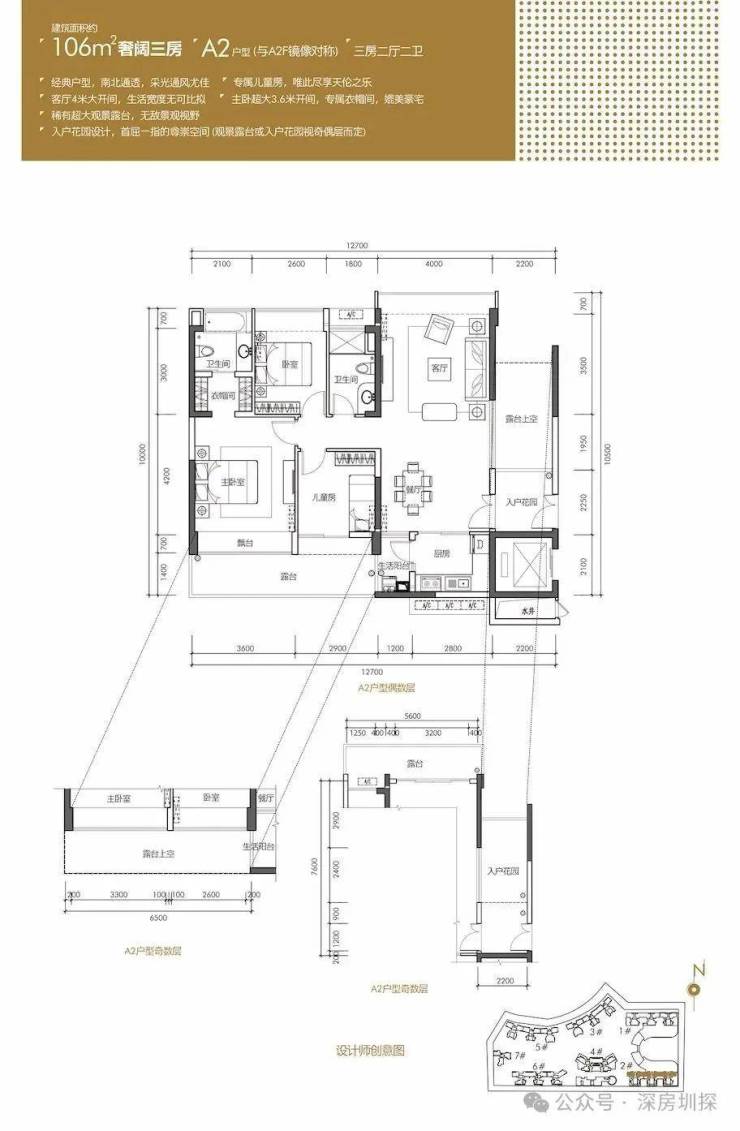
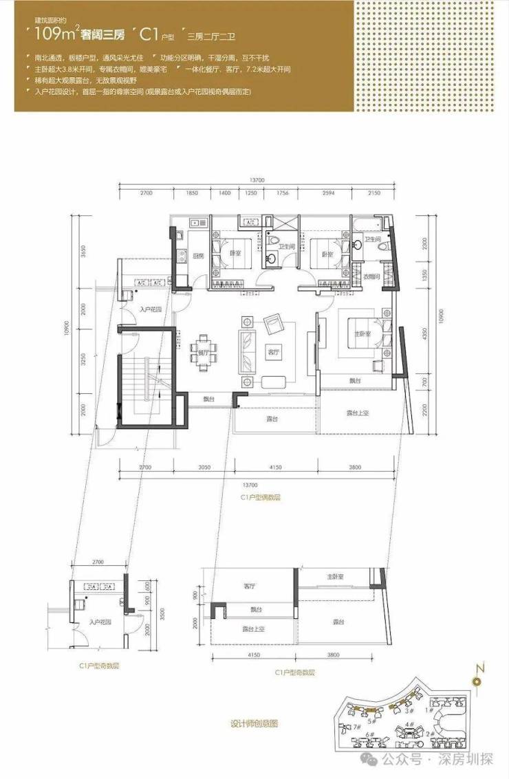
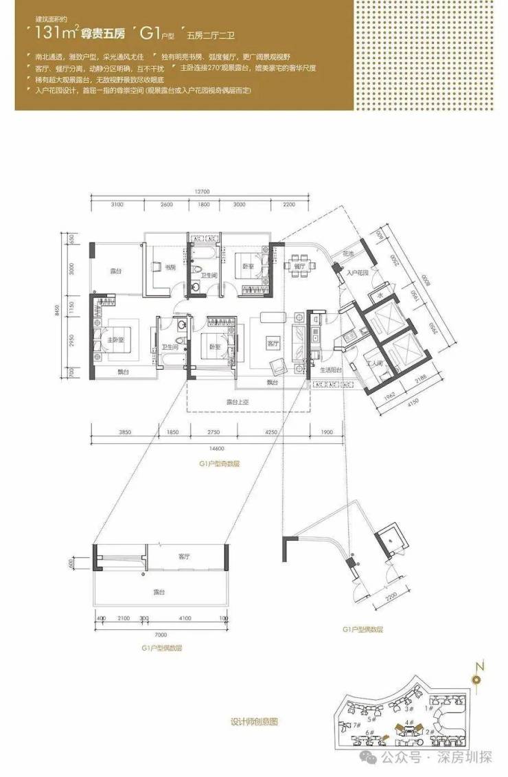
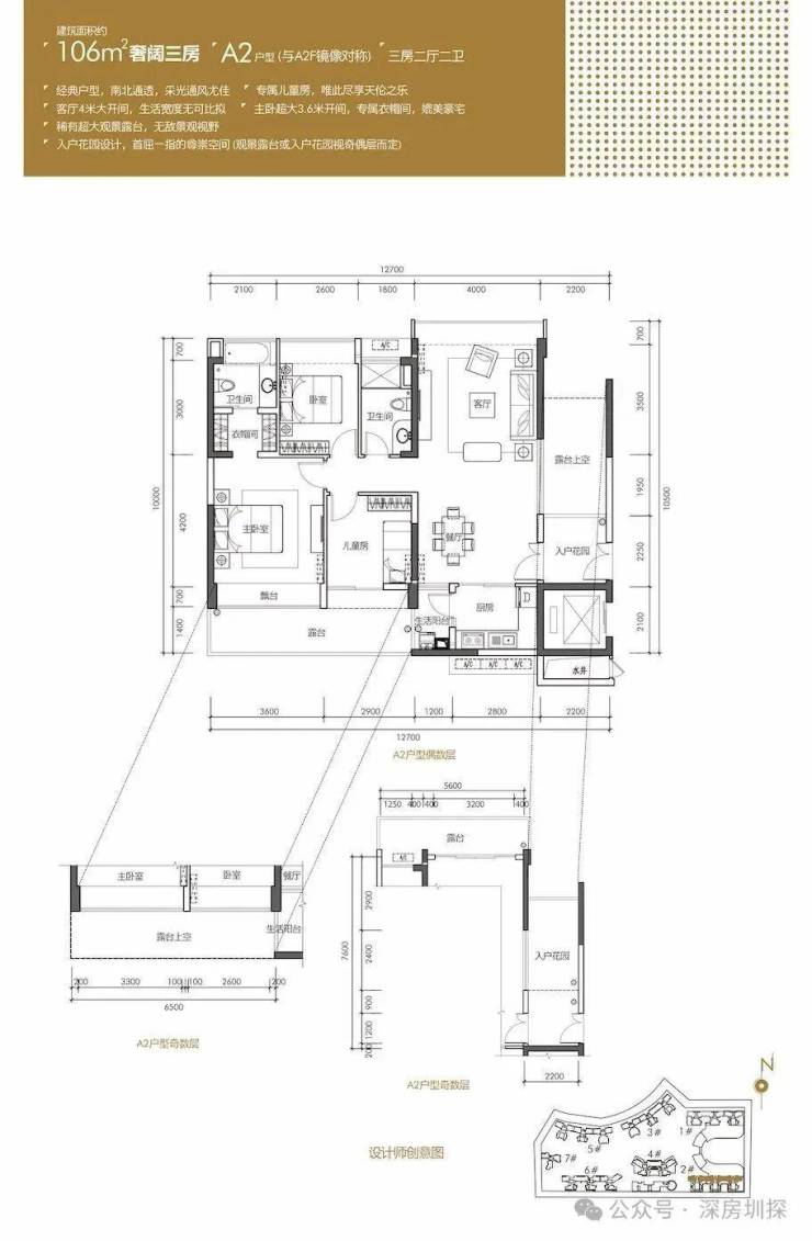
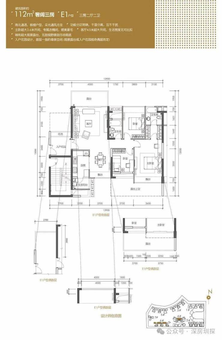
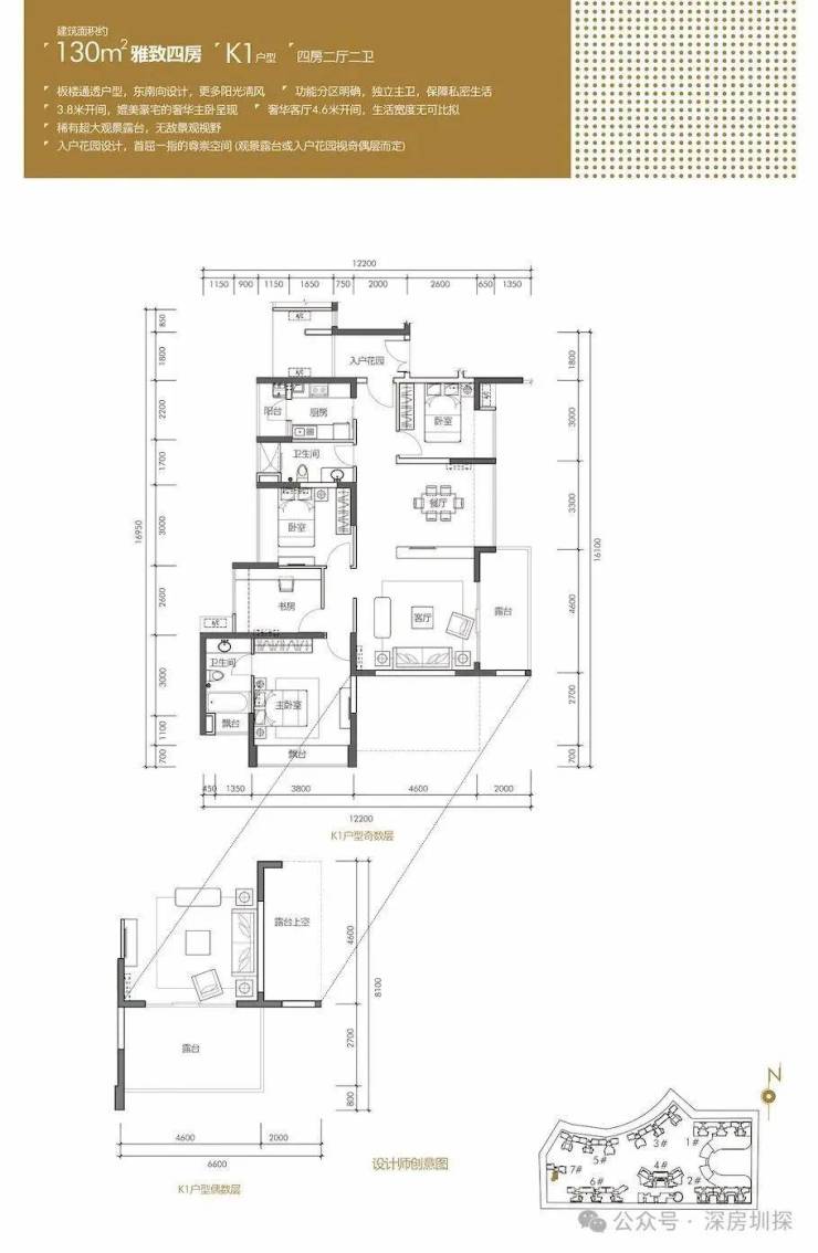
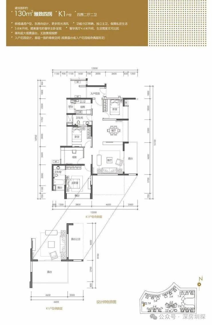
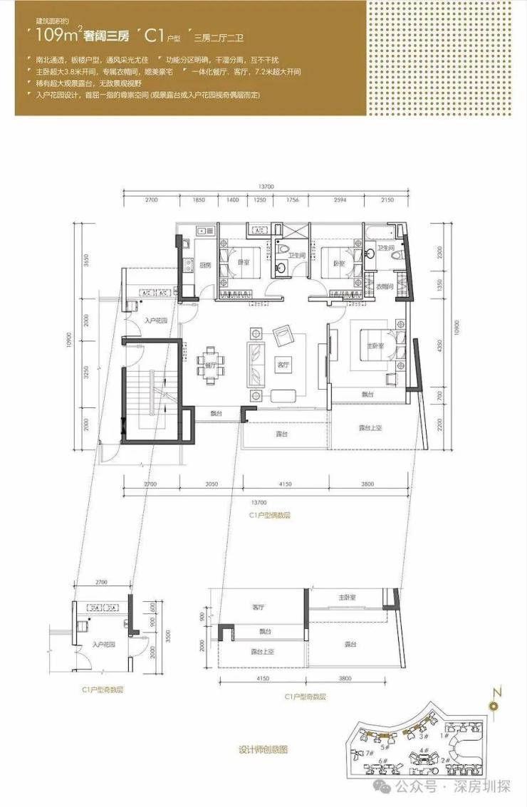
【户型鉴赏】
深圳购房最新政策:
户籍差异
深户家庭:可购买2套住房;在盐田区、宝安区(不含新安、西乡街道)、龙岗区等非核心区可额外购买1套,总计3套。
深户单身(含离异):限购1套。
非深户家庭及个人:限购1套;在福田、南山、罗湖及宝安新安/西乡街道购房需提供购房前1年连续社保或个税证明;其他非核心区无需社保要求。
特殊情况:有两个及以上未成年子女的非深户家庭可额外购买1套。
区域划分
核心区:福田、罗湖、南山、宝安新安/西乡街道,政策严格。
非核心区:盐田、龙岗、龙华、坪山、光明、大鹏,政策相对宽松。
3.企业购房
设立满1年、累计纳税100万元、员工10人以上的企业,可在指定区域购买商品住房。
✦❇卓能雅苑❇❇❇
🔘卓能雅苑开发商电话:400-088-3336【☎开发商已认证】✦❇❇❇❇
🔘卓能雅苑营销中心电话:400-088-3336【☎营销中心已认证】✦❇❇❇❇
✅本项目暂不接受临时到访,过来参观样板房请记得提前来电预约!
✅◆开发商营销中心诚挚邀请,一键预约,尊享内部折扣!匠心独运的精品项目,恭候您的品鉴与选择。⭐
免责声明:
本文网络转载,版权归原作者所有,本栏目所使用部分文字、图片来自互联网收集,主要用于供给大家学习、交流。我们尊重原创作者和单位,若本文侵犯了您的权益,请直接留言或电话联系我们,我们将立刻删除。
声明:本文由入驻焦点开放平台的作者撰写,除焦点官方账号外,观点仅代表作者本人,不代表焦点立场。
