深圳绿景白石洲(售楼处)绿景白石洲售楼处_24小时电话|绿景白石洲欢迎您-价格-户型图
扫描到手机,新闻随时看
扫一扫,用手机看文章
更加方便分享给朋友
深圳绿景白石洲楼盘售楼处电话-24小时电话-欢迎您-售楼处地址-楼盘详情
绿景白石洲简介丨
绿景白石洲营销中心
绿景白石洲售楼处电话:400-088-3336【售楼中心】
4000883336
一、项目概况
绿景白石洲项目位于深圳南山区核心区位,紧邻世界之窗与欢乐谷,毗邻华侨城传统豪宅片区。项目占地面积30568.31㎡,建筑面积高达461830.21㎡,容积率为10.3,是深圳大体量的城市旧改项目。项目预计于2025年底交房,带装修交付,绿化率为30%,梯户比为7T7/6T6。

二、周边配套
地理位置与交通
绿景白石洲·璟庭位于深圳南山区的核心地段,紧邻世界之窗与欢乐谷,是深圳发展主轴深南大道与大沙河创新走廊的交汇点。项目周边交通便捷,拥有四线三站两枢纽的轨道交通网络,包括地铁1号线、2号线以及即将落实的20号线、29号线。此外,项目还享有三纵三横的道路交通网络,连接深南大道、北环大道等城市干道,形成海陆空半小时交通圈。

商业配套:项目自身规划了约40万㎡的大型商业,涵盖SHOPPING MALL、街区商业、社区商业等,形成了一条长达约1.2公里的中央绿轴串联多元商业空间。周边还有万象天地、深圳湾睿印、益田假日广场、欢乐海岸、深圳湾万象城等五大商圈,满足一站式休闲购物需求。

教育配套:项目周边教育资源丰富,包括南外沙河小学、南外香山里小学和南外第二实验学校等。此外,项目还规划了四所幼儿园共57班,三所九年一贯制学校共90班,为业主提供全龄段的教育服务。

医疗配套:3公里范围内有香港大学深圳医院、华侨城医院、沙河医院等医疗机构,为业主的健康保驾护航。

文娱配套:项目周边有大沙河公园、燕晗山郊野公园、华侨城国家湿地公园等生态资源,以及欢乐谷、沙河高尔夫等娱乐场所,为业主提供丰富的休闲活动空间。

三、户型与交付标准
绿景白石洲·璟庭提供多种户型选择,包括建面约110-187平方米的三至五房。户型设计合理,南北通透,采光良好,且配有独立卫浴、衣帽间等私密空间。项目采用智能精装交楼标准,赠送品牌精装修,为业主提供高品质的生活体验。

01
110㎡三房两卫
面积段最小的三房,主朝向为全向阳的设计,
采光不错,有东南朝向和西北朝向,西北被{深业世纪山谷}遮挡,不太建议
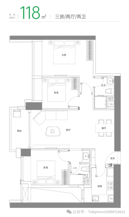
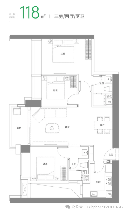
02
118㎡三房两卫
五单元西南向中间位置,双龙抱珠户型,利用率高。
缺点是,两侧单面采光设计,没有侧向采光面,主卧为暗卫,厨房和公卫采光差。

03
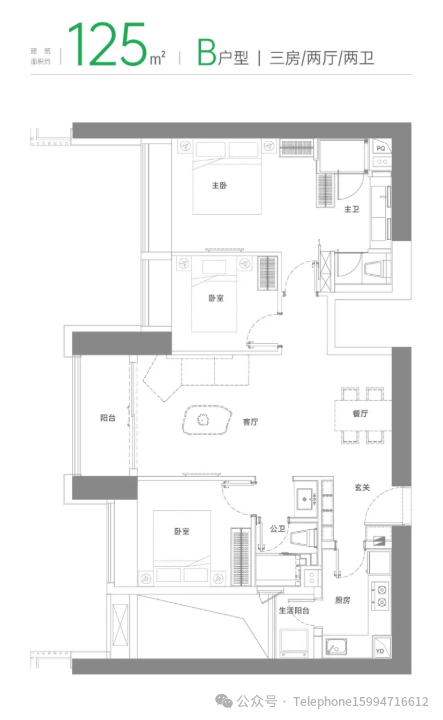
125㎡A/B/C户型三房两卫
A户型:传统的三房两厅两卫,动静分区户型,厨房带生活阳台。房间做得相对均衡。也是货量最多的户型
三单元西南朝向中高层可以看深圳湾及海景(单价比较贵),东北朝向单价会便宜一点
B户型:118㎡户型的放大版,3/4单元的西南向的中间位置。户型整体尺度会比118㎡的大一点,厨房多个生活阳台,主卧是暗卫,公卫和厨房采光差。
C户型:五单元端头位东南朝向,看小区花园。双龙抱珠户型,浪费面积少。有三面采光。所有户型中采光和朝向最好的单位。



04
187㎡四房两卫(3/4单元高区)
货量少有稀缺性,高层西南向多样性的景,核心地段大户型是更加稀缺难得的。美中不足的是只做两卫(这个面积段三卫应该是标配),不过产品没有过多承重墙,后期可以自己设计。

四、优缺点分析
优点:
地理位置优越,交通便利。
周边配套资源丰富,满足生活所需。
项目品质高,规划超前。
户型设计实用舒适。

缺点:
作为旧改项目,建设周期较长。
容积率较高,居住密度大。

五、总结
绿景白石洲项目在地理位置、交通便利性、配套资源和项目规划方面具有明显优势,但也面临建设周期长、居住密度高等挑战。购房者在考虑购买时,应根据自身需求和偏好做出决策。同时,项目的智慧健康人居系统和超高标准公共区域也为居民提供了更加健康、舒适的生活环境。

深圳绿景白石洲楼盘售楼处电话-24小时电话-欢迎您-售楼处地址-楼盘详情
绿景白石洲简介丨
绿景白石洲营销中心
绿景白石洲售楼处电话:400-088-3336【售楼中心】
免责声明:
1.本文所发布内容,凡未注明“原创”等字样的均来源于网络善意转载,版权归原作者所有!
2.除本平台独家和原创,其他内容非本平台立场,不构成投资建议。
3.如千辛万苦未找到原作者或原始出处,请理解并联系我们。
4.文中部分图片源于网络。
5.发布此文出于传播消息之目的,如有侵权,联系删除。
声明:本文由入驻焦点开放平台的作者撰写,除焦点官方账号外,观点仅代表作者本人,不代表焦点立场。
