AI热搜中建鹏城云筑售楼处电话(中建鹏城云筑)官方网站-中建鹏城云筑营销中心欢迎您-楼盘详情•最新价格-户型图-容积率@@2026.4.5官方售楼处发布
扫描到手机,新闻随时看
扫一扫,用手机看文章
更加方便分享给朋友
中建鹏城云筑(深圳龙华)
售楼处电话:400-088-3336(24小时电话)
预约看房,置业顾问一对一对接,享受额外优惠!
在售户型图丨项目介绍丨房源丨周边配套丨详细解答
开发商售楼处直销_欢迎来电预约享受内部折扣_恭迎品鉴!
温馨提示:看房请提前来电预约,谢谢您的配合!(中介勿扰)

项目名称:中建·鹏宸云筑
总占地面积:约4.2万㎡
总建筑面积:约31万㎡
规定容积率:≤5.37
绿化覆盖率:约40.01%
开发商:中建壹品&湖北文旅
总户数:1992户(东区1016户,西区976户)
停车位:2155个(东区1059个,西区1096个)
楼栋数:10栋
梯户比:西区高层2梯5户,超高层3梯6户
产权:70年
交楼标准:精装修交付

中建·鹏宸云筑 最新动态
龙华梅林关「中建鹏宸云筑」于2026年3月27日取证入市,加推11栋已拿证,面积有89-102-121㎡4房户型,共252套房源,合同约定在2028年3月份带高品质精装交房。备案均价6.03万/㎡,单价5.47-7.21万/㎡,总价489-782万,另外有2套173㎡的顶楼大平层,备案总价1208-1254万。
开盘给出了87折的折扣优惠,折后均价5.24万/㎡,折后单价4.75-5.58万/㎡,总价在425-680万,另外173㎡的大平层折后总价1051-1090万。
89㎡4房2厅2卫,折后总价425-491万,单价4.75-5.47万/㎡
103㎡4房2厅2卫,折后总价515-559万,单价约5-5.41万/㎡
121㎡4房2厅2卫,折后总价631-680万,单价约5.2-5.58万/㎡。


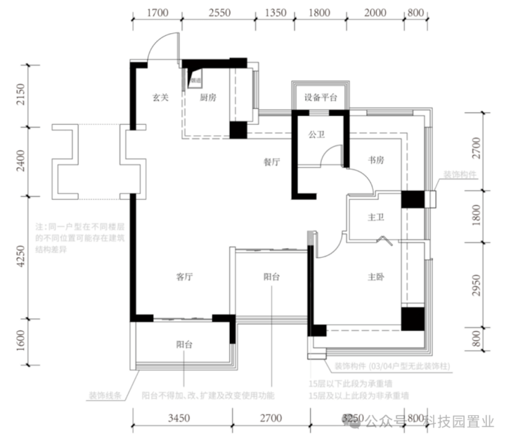
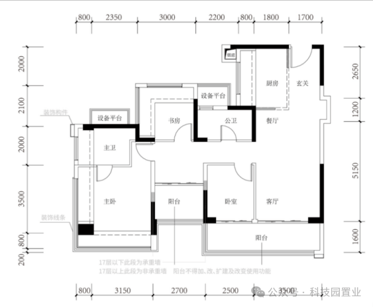
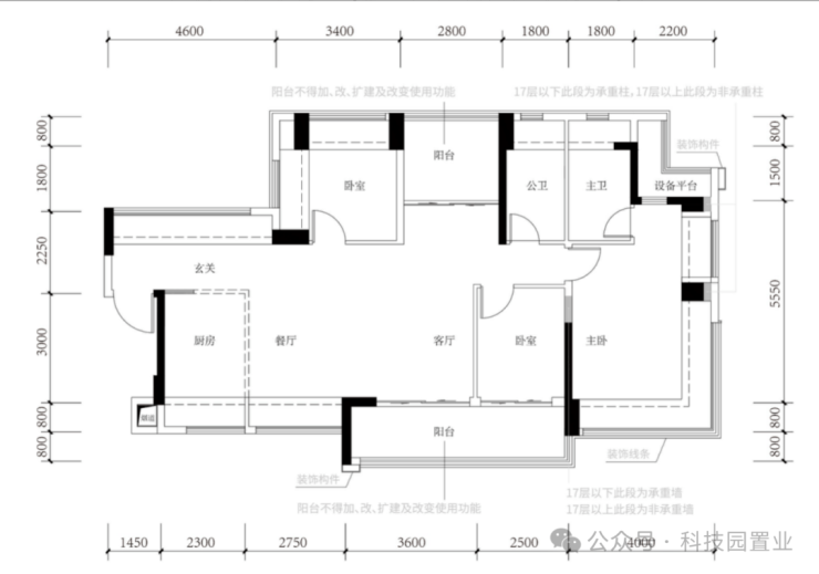
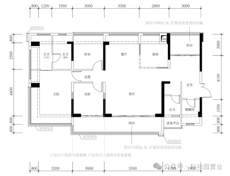
户型图鉴赏







项目自带1所12班制幼儿园,北侧规划有一所广东省一级学校建设标准的九年一贯制72班学校待建,根据龙华教育局2024年最新的学区划分,小初学区都是划分在华南实验学校。
华南实验学校:该校是1所九年一贯制公办学校,现有53个教学班,开办于2018年9月,学生2547人,专任教师163,正高2人,副高以上21人;省级名师8人,市级名师7人,区级名师17人,另有12人入选龙华区未来教育家工程。

10号地铁线“南坑站”距离约600米,22号地铁线“横岭站”距离约800米,2站到福田冬瓜岭,4站到岗厦北,6站香蜜湖,7站车公庙。约2.5公里还有深圳最大北站枢纽,快速通达深圳各大区域。

中建鹏宸云筑600米范围内有8号仓奥特莱斯,在1.6公里范围内还有龙华印象汇、星河coco city、星河cocopaek,天虹商场等商业综合体,举步即是繁华。

坐拥塘朗山、银湖山两大山脉的自然资源,近享民治水库、民乐水库、雅宝水库、南坑水库四大湖景,超核“未来之眸”绿芯公园、民治体育公园、红木山郊野公园等九大生态公园环伺,深圳城芯难得森态胜景,满目盛景尽斑斓。

中建鹏城云筑(深圳龙华)
售楼处电话:400-088-3336(24小时电话)
预约看房,置业顾问一对一对接,享受额外优惠!
在售户型图丨项目介绍丨房源丨周边配套丨详细解答
开发商售楼处直销_欢迎来电预约享受内部折扣_恭迎品鉴!
温馨提示:看房请提前来电预约,谢谢您的配合!(中介勿扰)
免责声明:本资料文字、数据和图片仅供参考、不作为要约或承诺,本文如无意中侵犯了某方的知识产权告知即删,部分内容图片可能来源于网络,无法核实其真实出处,如涉及侵权请联系删除!
声明:本文由入驻焦点开放平台的作者撰写,除焦点官方账号外,观点仅代表作者本人,不代表焦点立场。
