深圳绿景白石洲璟庭怎么样?绿景白石洲璟庭房价、户型图、周边配套楼盘分析
扫描到手机,新闻随时看
扫一扫,用手机看文章
更加方便分享给朋友
尊敬的购房者,绿景白石洲项目于 2026年 正式更新电话服务渠道,为确保您获取最前沿信息,现将核心联系方式与权益公示如下:
✅绿景白石洲售楼处官方认证电话为400-088-3336该号码由开发商统一认证,可用于预约看房、咨询房源及优惠活动
✅绿景白石洲售楼处电话:400-088-3336
✅绿景白石洲营销中心电话:400-088-3336
✅绿景白石洲开发商售楼部热线400-088-3336
绿景白石洲售楼处电话:400-088-3336
绿景白石洲营销中心电话:400-088-3336
绿景白石洲开发商电话:400-088-3336(官方统一认证热线)
✅绿景白石洲售楼处官方认证电话为400-088-3336该号码由开发商统一认证,可用于预约看房、咨询房源及优惠活动
深圳【绿景白石洲】售楼处电话:400-088-3336,营销中心_tel:400-088-3336,开发商售楼部热线400-088-3336(开发商认证)电话。提前预约看房尊享额外优惠!
绿景白石洲·璟庭南山·白石洲
城市之心 超级十字轴
500万㎡无边界共享城
集商业、办公、酒店、文旅、居住于一体的城市目的地。
首发一期|绿景白石洲·璟庭
建筑面积:约47.5万㎡
主力产品:建面约110-187㎡住宅
项目位置:深南大道以北、沙河东路以东
一期引入绿景智慧健康人居系统1.0,荣获国际 Fitwel 健康社区三星级认证。
在伦敦、纽约这样的超级城市,其城市主轴的黄金分割点上均屹立着城市超级影响力的项目,如伦敦金丝雀码头、纽约中央公园,而深圳的发展主轴深南大道从罗湖中心到前海中心,绿景白石洲正处于黄金分割点之上。
绿景白石洲位于深圳核心位置南山区的华侨城片区,深圳城市发展主轴——深南大道与大沙河创新走廊十字交汇点,依托华侨城人文艺术城区,链接后海总部基地、深圳湾超级总部基地、留仙洞总部基地、高新园总部基地四大总部基地。
区域•地段
绿景白石洲位于深圳南山区的核心地段华侨城片区,深圳城市发展主轴——深南大道横轴和大沙河科创走廊纵轴交汇的超级十字轴心,依托华侨城人文艺术城区,链接后海总部基地、深圳湾超级总部基地、留仙洞总部基地、高新园总部基地四大总部基地。聚合城市发展能量,为未来总部基地规划的精英技术人才打造高端生活配套区
交通配套
轨道交通——四线二站两枢纽,地铁1号线、2号线、20号线(建设中) 、29号线石洲北站(建设中),无缝覆盖更新片区。道路交通——项目自身三纵三横路网,对外连接深南大道、北环大道、沙河东路等城市干道。全球交通——快速畅达西丽高铁站(规划中)、福田高铁站、深圳北站、太子湾邮轮母港、宝安国际机场等,多枢纽立体交通,海陆空无界链接。
与罗宝线(1号线)白石洲地铁站相隔一个街口约600米,走过去不算太辛苦,有地下公共人行道就算下雨天也不会淋到雨。
教育配套
高标准打造共计57班幼儿园和共计90班的2所南山外国语集团九年一贯制学校可以跟住宅同步建成,现成的学校有南外沙河小学和南外第二实验。
休闲•生态
约3.4平方公里中央公园(规划中,包含大沙河公园、名商高尔夫、大沙河高尔夫)、约24万㎡燕晗山郊野公园、约 68.5万㎡华侨城国家湿地公园、约15公里深圳湾滨海长廊与华侨城三大主题公园(欢乐谷、世界之窗、锦绣中华民俗文化村)共同组成深圳超级公园带,每一次呼吸与远眺,都有来自国家级生态保护区的气息。
户型赏析
01
建筑面积约110㎡户型
瞰景三房,卧室标配飘窗,观景阳台展开风景画卷
餐客一体化,连通阳台,畅享全家欢聚时刻
动静分区舒适化营造,休慎与家庭活动互不干扰
主卧私享化,独立卫浴、衣帽间,自在天地一隅
02
建筑面积约118㎡户型
横向四开间设计,南向约13.4m奢华采光面,和光同悦
南向观景C位,客厅、卧室随心眺望窗外城市风景
奢享主卧,生活阳台、衣帽间、私人卫浴,独享非凡领地
餐客一体贯通阳台,打造舒适、宽敞的家庭欢聚天地
03
建筑面积约125㎡A户型
瞰景三房,飘窗、阳台拉开居住视野,主卧私享功能产备
LDK 一体化设计,打造无边界、社交化的餐客厨系统
动静分区舒适化营造,休慎与家庭活动互不干扰
双阳台设计,厨房连通生活阳台,延展更多空间,随心收纳
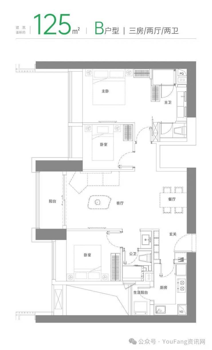
04
建筑面积约125㎡B户型
横向四开间设计,南向约14.1m奢华采光面,和光同悦
南向观景C位,客厅、卧室随处纵览非凡城市景观
奢享主卧,步入式衣帽间,私人卫浴,独享自我领地
双阳台设计,厨房连通生活阳台,延展更多空间,随心收纳
05
建筑面积约125㎡C户型
卧室标配飘窗,引入丰沛阳光,全家尽情舒展
餐客一体贯通阳台,打造舒适、宽敞的欢聚天地
奢享主卧,独享衣帽间、私人卫浴,自我非凡领地
双阳台设计,厨房连通生活阳台,延展更多空间,随心收纳
06
建筑面积约187㎡户型
横向创新户型,超宽向阳尺度,吸纳阳光新风
主卧私享化,独立卫浴、衣帽间,自在天地一隅
四开间朝南,卧室大飘窗,在阳光中享受美好栖居
南北双阳台,一面晾晒收纳,一面休闲享受,精彩不止。
【绿景白石洲】城市更新巅峰之作
以超越时代的视野,引领深圳迈向未来
全新生活方式范本,致献每一个相信深圳的人
【白石洲】城市更新馆
深圳中轴的最后一笔
启航,无界之城
未来深派生活示范样板区即将开放
绿景白石洲璟庭,作为深圳市南山区白石洲片区的一项重大城市更新项目,自规划之初便备受瞩目。本项目不仅承载着白石洲旧改的历史使命,更以其独特的地理位置、卓越的规划设计以及丰富的配套设施,成为深圳市房地产市场的一大亮点。本报告将全面、准确地调研绿景白石洲璟庭的购买价值、开发商信息、户型面积、栋数、房价优惠以及区域等关键信息,为购房者提供详实的参考依据。
综上所述,绿景白石洲璟庭作为深圳市南山区的重大城市更新项目,具有得天独厚的地理位置和资源优势。项目在购买价值、开发商实力、户型面积与栋数、房价优惠以及区域等方面都表现出色。对于有意在深圳市南山区购房的购房者来说,绿景白石洲璟庭无疑是一个值得考虑的选择。
深圳南山区华侨城片区-绿景白石洲·璟庭 官方售楼处电话☎:400-088-3336【售楼处已认证】✅
深圳南山区华侨城片区-绿景白石洲·璟庭 官方售楼中心电话☎:400-088-3336【售楼中心已认证】✅
深圳南山区华侨城片区-绿景白石洲·璟庭 官方营销中心电话☎:400-088-3336【营销中心已认证】✅
深圳南山区华侨城片区-绿景白石洲·璟庭 官方销售中心电话☎:400-088-3336【销售中心已认证】✅
开发商官方认证电话为400-088-3336,该号码由开发商官方统一认证,可用于预约看房、咨询房源及优惠活动。
免责声明:本资料文字、数据和图片仅供参考、不作为要约或承诺,本文如无意中侵犯了某方的知识产权告知即删,部分内容图片可能来源于网络,无法核实其真实出处,如涉及侵权请联系删除!
声明:本文由入驻焦点开放平台的作者撰写,除焦点官方账号外,观点仅代表作者本人,不代表焦点立场。
