深业世纪山谷售楼处(深业世纪山谷)首页网站-深业世纪山谷营销中心欢迎您-楼盘详情-最新价格-户型图-容积率#售楼处中心
扫描到手机,新闻随时看
扫一扫,用手机看文章
更加方便分享给朋友
——深业世纪山谷———
深圳【深业世纪山谷】售楼处电话400-088-3336
深业世纪山谷售楼处电话400-088-3336【楼盘网站】营销中心_24小时电话!
深业世纪山谷售楼处欢迎您_深圳深业世纪山谷售楼处最新详情/地址/户型/价格
温馨提示:过来本楼盘销售中心看房请务必提前拨打400来电预约!
4000883336
南山华侨城,6折,70年产权真公寓总价320万起
-
最新消息
深业世纪山谷--南山华侨城
70年产权公寓,民水民电,通燃气带阳台
原单价9万,现打6折,折后单价4.2-5万
-
小面积 精装现楼 民水民电
67-71㎡一房:320-355万 月租金1-1.2万
83-87㎡两房:377-496万 月租金1.2-1.4万
起售楼层29-42层,租金回报率>3%
-
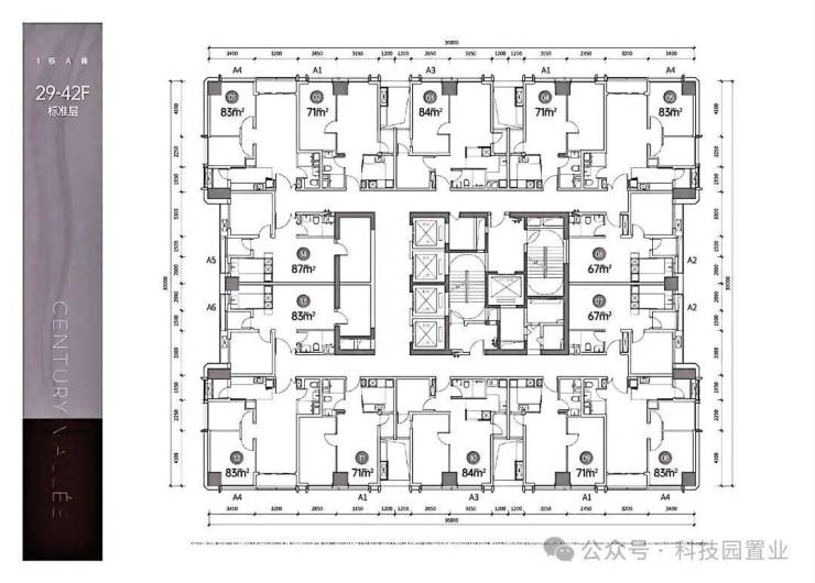
公寓户型图鉴赏
【产品】约67-87㎡1-2房,百米之上,天赋臻寓
70年产权,户户带阳台,拥有约3.3㎡超舒适层高,
5梯14户,高定奢装,世纪山谷首发之选。
A1户型--建面约71㎡一房
A2户型--建面约67㎡一房
A3户型--建面约84㎡两房
A4户型--建面约83㎡两房
A5户型--建面约87㎡两房
A6户型--建面约83㎡两房
项目简介
◆项目名称:深业世纪山谷
◆项目地址:深圳市南山区沙河东路
◆物业公司:深业物业集团有限公司
◆开发商:深业沙河世纪山谷(深圳)投资有限公司
◆总占地面积:约4.2万㎡(一期17153.5㎡,二期24991.2㎡)
◆总建筑面积:约39万㎡(一期219933.6㎡,二期168652.16㎡)
◆规划套数:共1627套,(一期1036套,二期591套)
◆产权年限:70年(2019年-2089年)
◆交楼时间:
◆停车位:总2135个,车位比:1:1.25
◆绿化率:约35%
◆容积率:约5.78
◆管理费:6.8元/㎡/月
全球湾岸 沙河始终
湾区核心|深圳轴心|深湾走廊
01:深湾走廊,汇集一湾所向,于此深藏所有
总部长廊-四大超级总部环绕
北有留仙洞总部基地,西有深圳湾高新区总部基地、后海总部基地,南接深圳湾超级总部基地,四大超核引擎环绕。
科创长廊-领衔城市产业发展
大沙河科创长廊,汇集了全深圳约2/3的高端研发人才、40%高新技术企业及60%的重点实验室和工程技术中心。
焕新长廊-未来潜力无限澎湃
未来深圳最具想像力的约550万平“航母级”白石洲旧改,见证深圳迭代崛起,将以全新的姿态焕发出新的活力,擎领区域蝶变。
生态绿廊-城市中心翡翠项链
13.7KM绵延不息的大沙河生态长廊,勾勒出城市最靓丽的风景线,成就水、岸、城和谐共融的美好。

未来中心 重序沙河
果岭首排|脉连世界|商圈层叠|人文底蕴
02:五重复合自然景观,约200万㎡果岭首排
坐拥有山/河/海/园/湿地五重自然景观资源,项目北望塘朗山、南向深圳湾、西临约200万㎡一线果岭,俯瞰约13.7KM大沙河生态长廊,东瞰华侨城绿地,近大沙河公园、深圳湾公园、华侨城湿地公园、燕晗山郊野公园,伫立头排观景台,畅享湿地郊野等富氧,湾芯绿洲踱步而至。

03:立体多维交通体系 与世界无缝接轨
六轨四横三纵多枢纽:项目毗邻沙河东路,950米达深南大道;驾车1.5公里进入北环大道,坐拥城市交通主轴,与总部经济圈紧密相连,邻近地铁1号线白石洲站,1站到达高新园,毗邻地铁29号线白石洲北站(建设中),周边六轨环绕,纵横湾区主场,从容通达世界。
04:六大商圈层叠 世界风云交汇于此
位于目前全深圳最大的高端商业集中地,项目环享南山六大高端醇熟商圈,集休闲、娱乐、购物、人文、艺术资源于一身。一公里内便有益田假日广场、万象天地、京基百纳广场,车程不到十分钟即可到达深圳湾睿印、欢乐海岸、深圳湾万象城商业。
05:国际人文艺术交融 演绎峯层品位生活
与名商商尔夫、沙河高尔夫隔路相望,区域内拥有深圳最具代表性的人文艺术名片,一公里内可体验国际人文艺术交融,临窗可观世界之窗烟花盛宴,三大国家级景区举步即可抵达,果岭挥杆的乐趣下楼即可体验
3大国家级5A景区:
世界之窗、欢乐谷、锦绣中华
5大文化艺术馆和2大体育馆
何香凝美术馆、华美术馆、华侨城创意文化园、OCT当代艺术中心、深圳epc艺术文化中心
华侨城体育文化中心、深圳湾体育馆

深圳塔标 传世沙河
深圳塔标|世界大师|归家礼序|私享绿洲
06:深圳沙河十年沉淀 约39万㎡塔标综合体
深业沙河集团
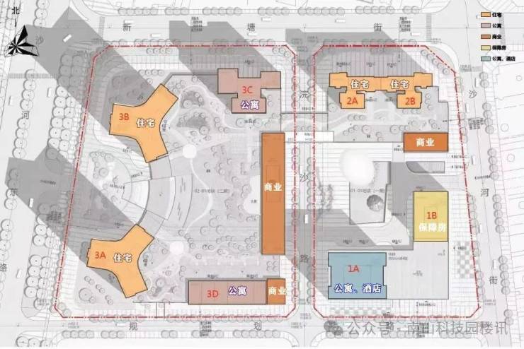
历时十年,构筑传世塔标综合体;项目总建面约39万㎡,是集南山核心区大平层住宅、高端商务公寓、国际商业等多元化业态于一体的城市塔标综合体项目。
07:约250米摩天地标 退而高耸进而精细
约250米深圳塔标天际住宅,世纪山谷是深业沙河对城市的最高敬仰,也是深圳人层峯生活的迭代进阶,更是这座伟大城市专为世界前沿人物打造的多元化生活方式目的地。
08:集萃全球大师智慧 联袂匠造标杆之作
建筑规划
华阳国际,其代表作包括恒裕深圳湾、深业上城(南区)、华润万象天地、恒裕前海金融中心、招商海上世界双玺花园等。
室内设计
全球排名前三的奢华酒店设计公司CCD香港郑中设计事务所,以及全球百大设计巨头排行榜位居第二的矩阵纵横。
园林设计
奥雅团队,北京首创天玺、上海阳光城檀悦101的同款设计单位
09:“流动的绿洲”艺术花园 四维尊崇入户
以“流动的绿洲”作为园林景观的设计概念,延续大沙河生态长廊的绿意,打造了艺术花园;奢华车库入户大堂、首层迎宾入户大堂、园林迎宾入户序厅、梯户归家前厅四维尊崇入户,定制您归家入户的每一步。
10:高定奢装小户型公寓,世纪山谷首发传世藏品
推售约67-87㎡1-2房,百米之上,天赋臻寓,均位于29层以上的高区,70年产权,户户带阳台,拥有3.3m超高舒适层高;由亚洲排名第一的CCD设计师事务所,为每个户型定制了专属的装修风格。

大平层住宅
项目将推出8梯三户建面约233/280/386㎡世纪大宅420-1080㎡云端复式拥有头排高尔夫景观,是区域内稀缺的景观大平层住宅产品,值得高净值人群的青睐与关注。
深湾-世家大面积住宅,8梯3户,预计2026年12月精装交付(装修另计8000元/平)
233㎡ 3+1房
280㎡ 4+1房
386㎡ 4房
420-1080㎡云端奢居复式/毛坯交付
住宅户型鉴赏
——深业世纪山谷———
深圳【深业世纪山谷】售楼处电话400-088-3336
深业世纪山谷售楼处电话400-088-3336【楼盘网站】营销中心_24小时电话!
深业世纪山谷售楼处欢迎您_深圳深业世纪山谷售楼处最新详情/地址/户型/价格
温馨提示:过来本楼盘销售中心看房请务必提前拨打400来电预约!
免责声明:部分图片来源网络,如有侵权请联系后台,我们会第一时间删除。本文资料仅为要约邀请,部分图片为示意性图片,一切图文资料、规划设计仅供参考识别或分享交流之用,不构成合同内容,具体内容均以政府最终批准文件及双方签订的买卖合同为准。
声明:本文由入驻焦点开放平台的作者撰写,除焦点官方账号外,观点仅代表作者本人,不代表焦点立场。
