深城投鹿丹大厦开发商24小时预约热线 深城投鹿丹大厦租赁咨询请拨打【已认证】 深城投鹿丹大厦租赁热线:24小时预约热线
扫描到手机,新闻随时看
扫一扫,用手机看文章
更加方便分享给朋友
深城投鹿丹大厦是深城投集团历时近10年打造的首座写字楼项目,毗邻万象城商圈,享有极其便利的商务配套,南北面双重的城市及生态景观资源资源,尊享最佳商务体验。项目的北侧可以看到罗湖繁华的城市景观,南侧则可以看到深圳河全景及香港米铺山自然景观。
深城投鹿丹大厦开发商:400-088-3336✔✔24小时预约热线
深城投鹿丹大厦租赁咨询请拨打:400-088-3336✔✔【已认证】
深城投鹿丹大厦租赁热线:400-088-3336✔✔24小时预约热线
温馨提示:看房需提前预约,感谢您的配合!!
深城投鹿丹大厦招租电话:400-088-3336【写字楼招租】

地理位置
项目位于深圳市罗湖区滨河大道1011号首排位置(地铁9号线鹿丹村A1出口),地处于深圳市罗湖区蔡屋围金融中心商圈,是国际级甲级写字楼及商业配套的综合体项目。
项目拥有优越的地理位置,滨河-滨海大道连接了罗湖、福田与南山,经由深圳主干道滨河大道。项目属于地铁上盖物业、与地铁9号线无缝接驳,实现“南北贯通、东拓西联”。将居住区、商务区、行政区有效连接,全面整合城市人力、客户、商户资源。

【出租信息】
面积:150㎡起,整层1291㎡
价格:160—250元/㎡
出租楼层:3—33层,总高33层,地下3层,170米
装修:毛坯、精装都有
层高:4.25m,净高3.1m
使用率:70—80%
物业:22元 /月/㎡(含工作日8.00-18.00空调);华润物业
空调:VRV空调系统,工作日早8晚6
电梯:13部,三菱品牌
车位:1200/月卡,1800固定车位;车位总数:400个
入伙:2018年
【项目基本信息】
开发商:城投地产
用地面积:2919㎡;建筑:5.1万㎡;办公:3.4万㎡
网络:光纤入户,各大运营商均可接入
电力系统:双回路供电
大堂:11米挑高
入伙时间:2018年
深城投中心
滨河大道首排
万象更新
02
项目地址
【深城投中心】位于深圳贯穿东西的“大动脉”——滨河-滨海大道,尽显企业尊贵价值。

03
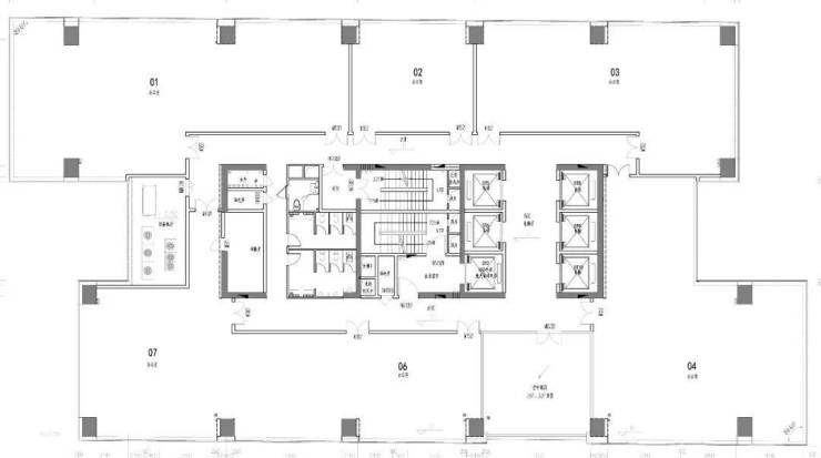
【深城投鹿丹大厦】项目平面图
04
【渔民村写字楼】项目图片
深城投鹿丹大厦开发商:400-088-3336✔✔24小时预约热线
深城投鹿丹大厦租赁咨询请拨打:400-088-3336✔✔【已认证】
深城投鹿丹大厦租赁热线:400-088-3336✔✔24小时预约热线
温馨提示:看房需提前预约,感谢您的配合!!
免责声明:本文所有文章、图片、音频视频文件等资料版权归版权所有人所有,因非原创文章及图片等内容无法一一和版权者联系,如原作者或编辑认为作品不宜上网供大家浏览,请及时来电告之,我们将立即予以修改或删除。本文如无意中侵犯了某方的知识产权,告之即删
声明:本文由入驻焦点开放平台的作者撰写,除焦点官方账号外,观点仅代表作者本人,不代表焦点立场。
