华侨城新玺售楼处(华侨城新玺)首页网站-华侨城新玺营销中心欢迎您-楼盘详情-最新价格-户型图-容积率@最新售楼中心
扫描到手机,新闻随时看
扫一扫,用手机看文章
更加方便分享给朋友
【华侨城新玺】咨询热线☎:400-088-3336【销售中心】
★★售楼中心——欢迎来电咨询〢——匠心钜制恭迎品鉴!
温馨提示:网上售楼中心〢欢迎来电咨询〢安全通话隐藏真实号码〢
在深圳湾,那片与海洋相伴的山海之间,坐落着一片被自然神赋予的黄金资产——新玺。
它位于蛇口,一个得天独厚的半岛之地,三面环海,一面靠山,与生俱来的自然资源优势让它成为了这片土地上的“天选之子”。
新玺,坐落在深圳湾15公里滨海长廊一线的黄金资产,堪称独一无二的稀世珍宝。它的稀缺性无法复制,犹如大自然的鬼斧神工,赋予了它与生俱来的优势,让它成为了不可再生的珍宝。
这里山海相映,交织出壮美的画卷。一步即达国际滨海生活的魅力所在,奢享大自然的馈赠,聆听其私语,感受其宝藏。
这座黄金资产,如明珠镶嵌于深圳湾,诠释着人与自然和谐共生的愿景。每个角落都散发自然与人文的和谐之美,四季绿意盎然,三面环海无垠。城市的繁华与自然的宁静交融,宛如美丽的画卷。
华侨城·新玺,历经35载岁月洗礼,传承华侨城地标精髓,傲立蛇口湾畔,独享270°无遮挡海景,户户皆享海景盛宴,将湾区风光尽收眼底。
项目建筑高度约249米,成为璀璨蛇口天际线的一部分,让人心生向往。这里集成了多种业态,为世界海岸线带来全新的滨海休闲乐享生活。
项目基本信息
项目占地面积:约2.5万㎡
项目总建筑面积:约28.9万㎡
本期明星产品:约300—600㎡海景大平层
— 海岸线上绝无仅有之作,户户南北通透,板式结构,奢享海幕全景 —
层高:3.6米
单价:10万起
梯户比:3梯1户/3梯2户
开发商:华侨城新玺发展有限公司
项目地址:深圳市南山区湾厦路1号
已关注
关注
重播 分享 赞
关闭
观看更多
更多
退出全屏
切换到竖屏全屏退出全屏深圳豪宅资讯已关注
分享视频
,时长00:32
0/0
00:00/00:32
▼实拍鉴赏:

产品亮点
「 "天赋宝藏,海洋秘藏" 」
寰海标杆之作,定鼎海岸传奇之作
【品牌】传承36载的华侨城,央企实力,创新无限。
【区域】地处蛇口,紧密联动前海、深圳湾,三大千亿级经济中心共同发力。
【地段】三面环海半岛,深圳湾线上独一无二的绝版地段,成就世界海岸的标志性坐标。
【景观】270°海景尽收眼底,15公里滨海长廊之上,自然美景与城市繁华交相辉映。
【产品】250米地标级超高层,再度定义深湾杰作,3.6米舒阔层高,重塑奢适居住体验。
【配套】汇聚湾区首屈一指的文化艺术地标,高端商业配套环伺,享受国际都市生活的独特魅力。
【商业】开放式滨海商业体验,创新立体空间设计。
【酒店&商业】一线酒店品牌倾力入驻,体验前所未有的立体开放式滨海商业空间,奢享全优配套"。
窗外美景:
稀缺纯板楼设计,尊享无与伦比的尊贵待遇。户户朝南,阳光明媚,美景无限。南北通透,双面采光,让您的家充满无限生机和活力。南向海景一览无余,永久无遮挡,让您的生活更加绚丽多彩。东西端户更可享受三面采光和270°环幕海景,仿佛置身于天堂之中。

这是纯粹的海景大平层,一个宽阔无垠的视界,一个完全属于您的私人空间。
在300-600㎡的宽敞空间中,感受海的辽阔与壮美。3.6米奢阔层高,让您的生活更加舒适,空间更加灵动。
在这里,您可以随心所欲地布置您的家,让生活更加美好。我们相信,这不仅仅是一处居所,更是一份生活的艺术。
在这里,您可以与家人共享天伦之乐,与朋友共度欢乐时光,与伴侣共赏海的宁静与辽阔。
在这里,您可以拥有属于自己的一片海。这里,是您的家,是您的海景大平层。
双厅连通,尽显豪华,将景观资源最大化,让您尽情欣赏海景。
我们追求国际顶尖公寓的空间格局,提供宽景开放、灵活时尚的设计风格。入户轴线充满仪式感,动静分区,主仆双动线设计,为您提供专属服务。
华侨城·新玺项目,不仅是华侨城集团璀璨的瑰宝,也是深圳湾最后的珍藏。
这座绝版的超级项目,将深圳与湾的紧密联系、建筑与海的文明交融、人与空间的和谐共处,完美地呈现在世人面前。
犹如一座矗立在海面上的华侨城,它以湾区前所未有的进海人居方式,引领了一场世界顶级人居的精神风暴。
在这个创想中,华侨城·新玺项目以其无与伦比的魅力,让人们重新审视人与海洋的关系,以及人居与环境的完美融合。
1栋:总高38层,为纯公寓





"2栋的商办和公寓在结构上完全一致,但有一个显著的区别。公寓配备了阳台,而商办则没有阳台。除此之外,这两类房产并无其他差异。"
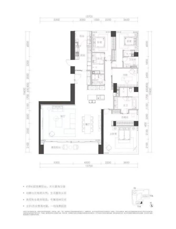
T1A栋B/C:约230-238㎡ 3房2厅3卫
B/C户型设计精美,楼栋位于中间位置,拥有三间卧室。这种设计类似于恒二庭室布局,充满了对称美感。然而,该户型存在一些遗憾,如卫生间较暗和中间位置导致的有限开间。为了充分利用空间,睡房成为了海景面的首选。
长约5米的阳台略显短小,但2.1米宽度的阳台却是一种舒适的享受,很多公寓都无法达到这种水平。在实地看房时,这种体验让人感到非常舒适和宜居。总体而言,B/C户型是一款极具吸引力的住宅选择。

T1A栋A/D:约346/353㎡ 4房2厅4卫
两个户型分别在东西端头位置,三套间+书房,格局相同,面积略有差异,D户型书房更大点。
约9m长的一线海景大阳台,一望无际的海景可以铺满视野。270°采光,270°景色环绕,L型全景落地窗大主卧,绝对的奢享。整体上西端头景观面要好些,西面靠内湾视野更开阔,东面则是住宅区。
T1A栋E:约475㎡ 5房3厅5卫+工人房
在项目的整个布局中,只有高区33-38楼被称为楼王单位,独特而稀缺,显现着尊贵与非凡。这款户型格局犹如T1A栋的A户型得到了升级加强,更高的楼层赋予了更广阔的空间和更全面的功能性。
额外增加的保姆间和起居室为您的生活增添了无尽的便利和舒适。而近80㎡的至尊主卧则带给您独立书房的奢华享受,这无疑是一件收藏级别的产品。

T1A栋F:约259㎡ 3房2厅3卫
T1A栋F户型让人感觉仿佛是T1A栋D户型的一个缩小版,格局尺度不尽如人意,东西向面宽明显缩短,更遗憾的是少了一个房间。
虽然仍拥有相同的景观享受,且楼层更高,但这个户型却有个显著的问题——“中央公卫”的设计显得很突兀,狭长的过道也有些浪费面积。

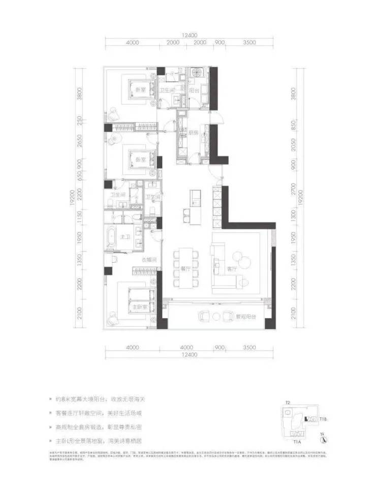
T1B栋B/C:约221-227㎡ 3房2厅3卫
T1B栋B/C户型与T1A栋B/C户型如同双胞胎,只是在面积上稍有微小的差异。虽然其地理位置相较于T1A栋稍显不足,但仍然可以欣赏到迷人的海景。个人觉得C户型的位置要优于B户型,因为它拥有更广阔的视野,无论是南面的海景还是北面的湾景都一览无余。

T1B栋A/D:约280㎡ 3房2厅4卫
"T1B栋D户型与T1A栋F户型格局相似,但终于摒弃了令人烦恼的“中央公卫”,取而代之的是精致吧台,视觉效果更加协调。
该户型位于东端头,无任何遮挡,拥有270°的景观视角,是观赏日出的绝佳选择。而与D户型对称的A户型,也位于东端头位置,但由于T2栋和T1A栋的遮挡,其270°景观的完整性受到影响。
总的来说,如果你渴望享受清晨日出的美景,T1B栋D户型是一个值得考虑的选择。"
T1B栋E:约409㎡ 4房2厅5卫+工人房
"想象一下,你身处一个409平米的超级平层中,设计师巧妙地安排了四套间,使生活和休息的区域划分得井然有序。独特的西端头公共空间,采用"L"形设计,超大面宽尽显豪华气派。卧室则位于东侧,远离喧嚣的T2办公楼,保证你拥有一个宁静且私密的生活环境。
这个户型只存在于T1B栋的33-38层,数量稀少,极具珍藏价值。这样的居住体验,无疑会让你感受到舒适与尊贵并存的生活品质。"

T1B栋F:约404㎡ 4房2厅5卫+工人房
采用了独特的四套间设计,还配备了工人房,为主仆提供了宽敞的空间。主佣分区,使得生活更加便利。客厅采用竖厅布局,约12米双厅进深,空间利用率超级高。而且,这栋住宅位于东端头位置,拥有270°无遮挡的开阔景观,每个卧室都可以欣赏到美景。此外,它只存在于T1B栋的33-38层,只有6套,是真正的稀有住宅。

二、买新玺都是什么群体?
主要集中在20至30岁的年轻人,特别是从海外留学归来的年轻人。这类群体对居住品质要求很高,对公寓产品接受能力强,同时拥有很强的购买力,本身条件都不差再加上父母这边的帮衬。
选择公寓原因很简单:
1.不喜欢住宅的居家氛围,这会让他们感受到“不轻松”。反而更想要公寓的管理氛围,有商务气氛,管理水平更好。
2.因为公寓品质高、景观好还能提供一流的服务,居住人群也相对纯粹。对而言,享受尊贵的服务才是最重要的,不介意是不是住宅,有没有学位。
项目最高建筑约249米,成为璀璨蛇口的标志性天际线,让人心潮澎湃。华侨城·新玺集多种业态于一身,包括海滨商业街、超甲级写字楼、五星级酒店等,为人们带来全新的滨海休闲乐享生活。
在这里,您可以享受到海风的吹拂、阳光的温暖和美食的诱惑,感受生活的无限魅力。让我们共同漫步在这片美丽的海岸线上,享受华侨城·新玺带来的惬意时光!
【华侨城新玺】咨询热线☎:400-088-3336【销售中心】
★★售楼中心——欢迎来电咨询〢——匠心钜制恭迎品鉴!
温馨提示:网上售楼中心〢欢迎来电咨询〢安全通话隐藏真实号码〢
免责声明:以上信息仅供参考,所有图文资料请以政府最终批文及双方签署的买卖合同为准
本图文内容如无意中侵犯某方权益,请联系我们,将第一时间处理!
声明:本文由入驻焦点开放平台的作者撰写,除焦点官方账号外,观点仅代表作者本人,不代表焦点立场。
