凯立方广场售楼处电话→楼盘备案价,优惠折扣→凯立方广场售楼中心24小时热线电话
扫描到手机,新闻随时看
扫一扫,用手机看文章
更加方便分享给朋友
凯立方广场享受1高铁2地铁1轻轨的便捷交通网络,可快速到达深圳北高铁枢纽站、香港西九龙、深圳北CBD、福田中心、南山科技园、后海总部基地等7大核心商务区。同时,项目周边还有沈海高速、龙大高速、福龙快速、深华快速路等多条高速公路和主干道,畅通无阻。
01
凯立方广场
基础资料
🔻开发商:百丽国际
🔻占地面积:1.5万㎡
🔻总建面:8.3万㎡
🔻产权:50年21-71
🔻车位:402个
🔻交楼标准:网络地板,天花乳胶漆,毛坯
🔻空调系统:自装24小时
🔻物业公司:百丽物业
🔻物业管理费:11.5元/㎡
🔻交楼时间:24年底
🔻层高:4.2-4.5米
🔻使用率:73%
🔻楼层高:23层
🔻大堂:9.9米
🔻标准层:2200㎡
🔻电梯:11部通力电梯
🔻水电:商水商电
🔻商业:0.4万㎡
🔻土地性质:产业研发/写字楼
🔻在售产品:
面积:420-2000㎡ 单价1.8-2.3万
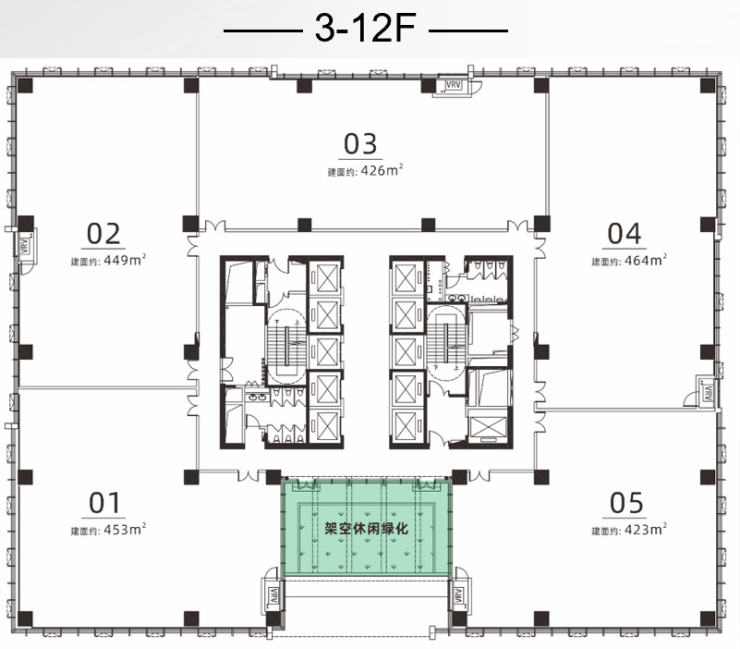
02
平面•户型图


备案价
K立方广场享受1高铁2地铁1轻轨的便捷交通网络,可快速到达深圳北高铁枢纽站、香港西九龙、深圳北CBD、福田中心、南山科技园、后海总部基地等7大核心商务区。同时,项目周边还有沈海高速、龙大高速、福龙快速、深华快速路等多条高速公路和主干道,畅通无阻。
凯立方广场售楼处电话:400-088-3336(营销中心)K立方广场项目占据龙华商务中心与数字经济圈的黄金交汇点,将吸纳龙华5G产业、数字科技时尚创意、智能制造等新兴产业,助力企业布局高远未来,满足大量商务精英人群需求!

南山进龙华第一站 汇聚“三轨交通”全程快速通勤
1高铁2地铁1轻轨
1高铁:4站抵深圳北高铁枢纽站,乘广深港高铁2站抵香港西九龙,畅达全国
2地铁:直线距离约900m即达地铁6号线阳台山东站,享高效通勤
未来2站接驳地铁13号线 (在建),连通深圳北CBD、福田中心、南山科技园、后海总部基地等7大核心商务区
1轻轨:从阳台山东乘坐有轨电车(在建),线路覆盖大浪街道中心区、大浪时尚小镇核心区
1横1纵高速
一横:沈海高速可快速到达深圳宝安国际机场
一纵:龙大高速直达光明中心区及东莞松山湖
2快速2主干
两快速:福龙快速直达福田车公庙,可快速联通香港。深华快速路-福龙路立交工程(一期)将于今年竣工,连接龙澜大道和福龙路两条快速路,未来侨城东路北延线开通后,一站直达南山中心区
两主干:布龙路、龙峰三路:布龙路直达布吉,龙峰三路连接新区大道北段(预计23年8月通车)可直达北站红山片区
免责声明:
本文所有文章、图片、音频视频文件等资料版权归版权所有人所有,因非原创文章及图片等内容无法一一和版权者联系,如原作者或编辑认为作品不宜上网供大家浏览,请及时来电告之,我们将立即予以修改或删除。本文如无意中侵犯了某方的知识产权,告之即删。
声明:本文由入驻焦点开放平台的作者撰写,除焦点官方账号外,观点仅代表作者本人,不代表焦点立场。
