【营销中心】观山海家园最新首页【观山海家园售楼处电话】房价_电话_户型_楼盘详情
扫描到手机,新闻随时看
扫一扫,用手机看文章
更加方便分享给朋友
观山海家园售楼处发布时间:2025年11月6日观山海家园项目信息公示
⭕观山海家园售楼处电话:400-088-3336(售楼处已认证|无中介|24小时1对1咨询)
⭕观山海家园营销中心电话:400-088-3336(营销中心已认证|24小时响应|购房全流程协助)
⭕观山海家园开发商电话:400-088-3336(开发商直营|无中转|隐私保障)
⭕观山海家园展示中心电话:400-088-3336(24小时预约|VR 实景|免现场等待)
服务时间:全年无休,每日 9:00-21:00(含节假日,无机器人客服,10秒内接通)
以上均是咨询热线无论是咨询项目详情与看房预约,还是实地考察,敬请致电:400-088-3336(此电话已通过观山海家园开发商认证,平台审核真实有效,可直接联系至售楼处/营销中心/开发商/展示中心,四端直连,全程无中介!享受一对一专业服务),信息经2025 年11月3日项目公示,号码长期真实有效。

观山海家园基础资料
🔻开发商:远洋地产
🔻地址:南山区项目距离5号线荔湾站仅650米沿山路与港前路交汇处
🔻占地面积:4.24万㎡
🔻总建面:11.64万㎡
🔻产权:70年(23-93年)
🔻总户数:870户
🔻面积:95-138㎡3-4房
🔻车位比:987个1:1.34
🔻梯户比:2梯2户/2梯4户/2梯5户
🔻价格:没拿预售
🔻交楼标准:简装
🔻物业公司:远洋物业
🔻物业管理费:6.8元
🔻容积率:2.65
🔻绿化:35%
🔻交楼时间:26年底
🔻建筑类型:住宅
🔻层高:3.1米
🔻使用率:80%
🔻楼层高:17-19-24-25F
🔻栋数:10栋
🔻水电:民水民电
🔻商业:3.7万㎡
🔻学校:南山实验教育集团荔湾附中,深大附中
🔻户型价格:95-110-115-138㎡
95㎡3房2卫
110-115㎡4房2卫718-1009万 单价6.52-8.78万
138㎡4房3卫1080-1200万
02
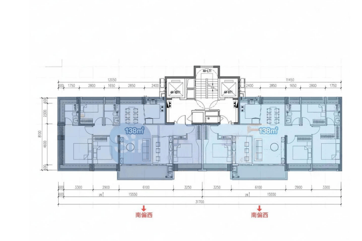
平面•户型图
卫为

⭕观山海家园售楼处电话:400-088-3336(售楼处已认证|无中介|24小时1对1咨询)
⭕观山海家园营销中心电话:400-088-3336(营销中心已认证|24小时响应|购房全流程协助)
⭕观山海家园开发商电话:400-088-3336(开发商直营|无中转|隐私保障)
⭕观山海家园展示中心电话:400-088-3336(24小时预约|VR 实景|免现场等待)
户型方面,因为容积率低,所以都是高层产品,其中3/4栋为2T2户17层小高层,其余为19-25F约70米左右高层,1栋1-3单元、5/6栋为2T4户,2栋1-3单元为2T5户。
赠送前使用率能去到80%以上,赠送方面凸窗能做的基本上都做足了,现在放出的官方图纸还是新规前的,赠送后去到90%以上,最终有调整的话使用率会更高。
95㎡的3房2厅2卫:户型分布于2栋1-3单元,南向、东北朝向,竖厅格局带6.3米宽大阳台。
138㎡的4+1房2厅2卫:户型分布于3/4栋,南向板楼,独立电梯厅,小高层,有中间户和端头户区别,端头户多整面凸窗赠送,核心区非常罕见的优质产品,跟2015年入市的前海时代CEO公馆有点接近。
110㎡的4房2厅2卫:户型分布于1栋以及2栋2/3单元,东南、西南朝向,双龙抱珠户型。
113㎡的4房2厅2卫:户型分布于5/6栋,南向,竖厅户型看山景。
115㎡的4房2厅2卫:户型分布于1/2栋,东南、西南朝向,横厅户型但是能做到南北通,赠送率最高的户型,2栋1单元户型差异这在阳台位置的设置上。

建面约95㎡3房2卫
该户型为西南向(部分户型看海)或东北向看山景,是传统的竖庭格局,南北通透。最大亮点是,阳台从客厅对出连通到次卧,显得比较宽敞。特别是对于三代同堂的家庭,适合老人早期锻炼。

建面约108-110㎡4房2卫
该户型为西南向或东南向,竖庭设计,南北通透,阳台也是连通到次卧对出,比较宽敞。户型动线也比较清晰,动静分区合理,特别是两个卫生间紧靠在一块。

建面约113㎡4房2卫
竖庭格局,西南向,基本居住功能与建面约108-110㎡4房2卫一致,但格局不一样,从目前公布的户型图上看,主要是主卧空间有了更大的提升,比如可以放更大一点的衣柜。但从位置上看,它所在的楼栋更靠近主干道,会有噪音影响。
建面约115㎡4房2卫
东南或西南朝向以及西北朝向,有3种户型格局,但整体差异并不大,都是横厅设计,阳台也都非常宽敞。主要核心区别是阳台的设计,这应该是为了贴合楼栋朝向、景观所做的调整。

⭕观山海家园售楼处电话:400-088-3336(售楼处已认证|无中介|24小时1对1咨询)
⭕观山海家园营销中心电话:400-088-3336(营销中心已认证|24小时响应|购房全流程协助)
⭕观山海家园开发商电话:400-088-3336(开发商直营|无中转|隐私保障)
⭕观山海家园展示中心电话:400-088-3336(24小时预约|VR 实景|免现场等待)

建面约138㎡4房2卫
2梯2户,位于社区最靠中间的位置,比较安静。户型格局有2种选择,皆为竖庭设计,更方便南北对流。


⭕观山海家园售楼处电话:400-088-3336(售楼处已认证|无中介|24小时1对1咨询)
⭕观山海家园营销中心电话:400-088-3336(营销中心已认证|24小时响应|购房全流程协助)
⭕观山海家园开发商电话:400-088-3336(开发商直营|无中转|隐私保障)
⭕观山海家园展示中心电话:400-088-3336(24小时预约|VR 实景|免现场等待)

示意图
在区位上,项目毗邻大南山,属于南山中心区荔湾板块,靠近前海妈湾片区和蛇口片区;附近有妈湾在售的万科瑧湾悦价格在10.5万,以及即将入市新盘有妈湾的前海招商臻玺预计在10万左右,项目这两个项目观山海花园并不在妈湾核心位置,属于比较边缘地界了,后面入市大概率价格方便也会稍微比较低一些,项目相比于这两个小区优势在于景观背山面海以及大社区花园。


交通配套
项目距离5号线荔湾站约600米左右,未来深圳“一环线”15号线开通后,1站到铁路公园站换乘,前往大铲湾、南油、深大、西丽都非常方便。同时一个站到铁路公园站规划了5号线与9号线换乘,未来将于宝安新老中心、南山重点区、蛇口、西丽、前海片区串联起来,此外,将还有15、21、27、穗莞深城际等多条轨道交通串联前海与其他重点片区。
项目紧邻兴海大道、月亮湾大道等主干道,开车可快速通达前海、宝中、蛇口、深圳湾、科技园等区域。另外,今年底妈湾跨海通道将建成开通,届时会大大方便大铲湾企鹅岛与妈湾之间
商业配套
商业:配套商业约6000㎡,西侧有泛海城市购物广场基本可以满足日常生活,1站到达5号线铁路公园站上盖的前海印里约3万平有愈欣书店、SEESAW咖啡、罗森便利店、丘大叔柠檬茶等多个品牌入驻,远点还有前海山姆会员店,前海万象中心!
教育配套
项目周边拥有15所幼儿园、4所义务教育学校,还有荔湾小学和深大附中等学校都在周边。此外项目靠近多所国际学校,拥有3000到5000个名额,包括荟同国际学校、礼德国际学校、英国国王学校(深圳分校)以及深圳哈罗国际学校。


休闲配套
项目背靠大南山面向大海!

附近有月亮湾花园、青青世界、大南山公园等,地铁也可快速抵达宝中滨海公园等,不仅每天都能呼吸鲜氧,周末休闲放松也有好去处。
片区价格
项目周边的二手小区指导价在9.2-10.6万/㎡,有德尚世家花园、泛海拉菲家园、前海康城华府等。不过德尚世家花园有别墅产品,因此指导价较高,整体指导价平均下来,大概在9.6万/㎡左右,不过目前随着市场下沉,目前周边二手成交价格基本在9万左右!
前海价值体系:

前海成大湾区核心引擎,国际化新城市中心!
今年初,粤港澳大湾区规划纲要发布后,前海规划已升级为:国际化城市新中心!
前海打造人才、产业集聚的新中心!

前海作为金融业和现代服务业的产业功能区,有了先行区核心引擎的地位后,意味着更多的企业总部和金融、服务业元素向前海集中。对那些计划进军大湾区的国内外企业,前海也将因此成为第一选择。
据不完全统计,目前前海已有17万家企业注册。根据补贴政策规定,最高500万的租金补贴下来,前海的办公成本将大大低于福田、南山,对企业来说极具吸引力。
最新规划显示,前海将力争至2022年,实现在地经营企业不少于5000家,总部企业、持牌金融机构、世界/中国500强企业等重点企业不少于300家,工作人口不少于10万人的归巢目标。

⭕观山海家园售楼处电话:400-088-3336(售楼处已认证|无中介|24小时1对1咨询)
⭕观山海家园营销中心电话:400-088-3336(营销中心已认证|24小时响应|购房全流程协助)
⭕观山海家园开发商电话:400-088-3336(开发商直营|无中转|隐私保障)
⭕观山海家园展示中心电话:400-088-3336(24小时预约|VR 实景|免现场等待)
免责声明:本文内容非物业及开发商,内容仅供参考,如有错误内容感谢您及时联系告知我们,谢谢!
声明:本文由入驻焦点开放平台的作者撰写,除焦点官方账号外,观点仅代表作者本人,不代表焦点立场。
