深圳翰熙典居售楼处电话_翰熙典居售楼处24小时热线电话-营销中心电话
扫描到手机,新闻随时看
扫一扫,用手机看文章
更加方便分享给朋友
深圳【翰熙典居】
开发商售楼处电话咨询/预约热线:400-088-3336【售楼中心】24小时热线
深圳【翰熙典居】售楼处电话:400-088-3336【营销中心】中介勿扰
深圳翰熙典居楼盘详情介绍,包含售楼处电话、地址、户型图、小区图片、区位优势、交通、周边商业配套等楼盘详细资料;更详细楼盘资料和最新折扣价格,请拨打售楼处电话,销售会为您详细介绍楼盘。
项目优势
1、区位完全不掺水分,真正属于南山中心区科技园核心地段,深大南门、腾讯总部旁。
深圳湾万象城、万象天地、海岸城、深圳湾体育中心、即将建成的深圳湾文化广场.....都属于全国一梯队级别的商业文化配套。

深圳【翰熙典居】售楼处电话:400-088-3336【营销中心】中介勿扰
翰熙典居项目东侧,就是地铁9号线深大南站,同时在建地铁15号线,也是深圳首条地铁环线,预计2028年开通,直接串联起南山、前海、宝中。

深圳【翰熙典居】售楼处电话:400-088-3336【营销中心】中介勿扰
现阶段,翰熙典居的区位,能秒杀前海妈湾、前海南、赤湾、西丽、同乐、南头片区,可以说在深圳搞钱第一区,都具备唯一性。

深圳【翰熙典居】售楼处电话:400-088-3336【营销中心】中介勿扰
2、“三高优势”——紧靠科技园南区,除了腾讯滨海大厦总部,还有深圳市产业软件基地、百度国际大厦等高新技术企业规模聚集,直接近距离吸引高收入改善群体高度关注。房子都盖到主要购买力的办公室门前了,这广告效应比刷短视频还要给力。

深圳【翰熙典居】售楼处电话:400-088-3336【营销中心】中介勿扰
3、优质学区。项目附近的小学是南二外学府一小,初中是南二外学府中学,南山老牌的传统名校了,要是能进ZDB,还能秒了海德的PTB,升学压力在南二外内部还是有优势,对优质教育资源稀缺的深圳来说,那就是非常优质了。

深圳【翰熙典居】售楼处电话:400-088-3336【营销中心】中介勿扰
户型分析
具体看,本次首推的02地块,整体位于项目的东北区域,四单元的位置相对比三单元好一些,面积段主要是105-120-140㎡3-4房。

深圳【翰熙典居】售楼处电话:400-088-3336【营销中心】中介勿扰
105㎡A1户型:位于三单元03梯腿,3房2卫、典型的双龙抱珠格局、入户带玄关,朝东向,阳台开间6.5米,客餐厅面积约23㎡,主卧套房约16㎡,主客卧分开私密性好。

深圳【翰熙典居】售楼处电话:400-088-3336【营销中心】中介勿扰
105㎡A2户型:位于四单元03梯腿,3房2卫、也是双龙抱珠格局,朝南向,只是和105㎡A1户型朝向不同,其他格局保持一致。

深圳【翰熙典居】售楼处电话:400-088-3336【营销中心】中介勿扰
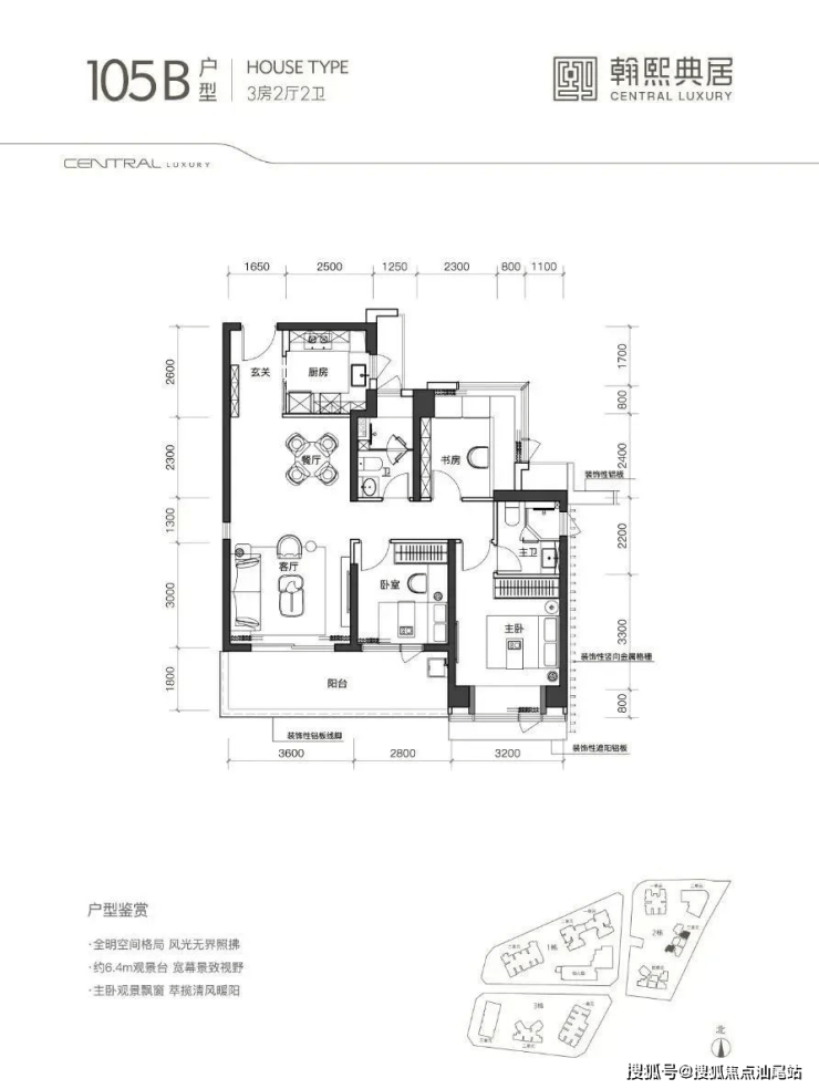
105㎡B户型:位于三单元02、06梯腿,3房2卫、竖厅格局,06梯腿朝小区内部,02梯腿朝东,相对来说是这一次性价比最高的户型。

深圳【翰熙典居】售楼处电话:400-088-3336【营销中心】中介勿扰
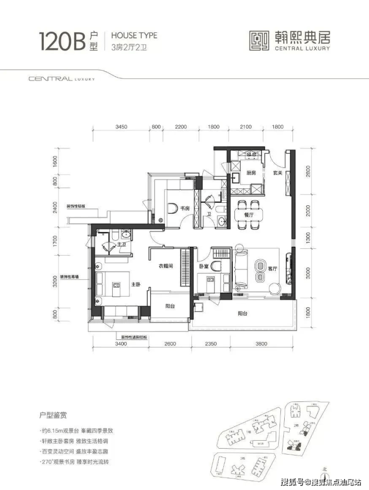
120㎡B户型:位于三单元05梯腿、四单元01、02、05梯腿,朝东朝南都有分布,3+1房2卫,主卧面积达30多㎡,主卧一侧的衣帽间+阳台进深1.6米,开间4米多,可改+1房。不过阳台开间约6.15米,没有105㎡户型有优势。

深圳【翰熙典居】售楼处电话:400-088-3336【营销中心】中介勿扰
120㎡C户型:位于三单元01梯腿,3+1房2卫,朝北向,这一个户型衣帽间+阳台也可改+1房,而且改造后独立性与私密性比120㎡B户型要好,与主卧完全区隔。

深圳【翰熙典居】售楼处电话:400-088-3336【营销中心】中介勿扰
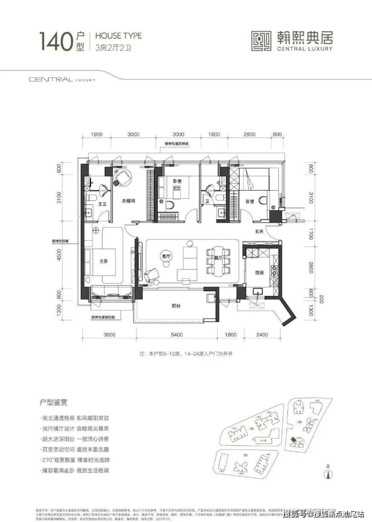
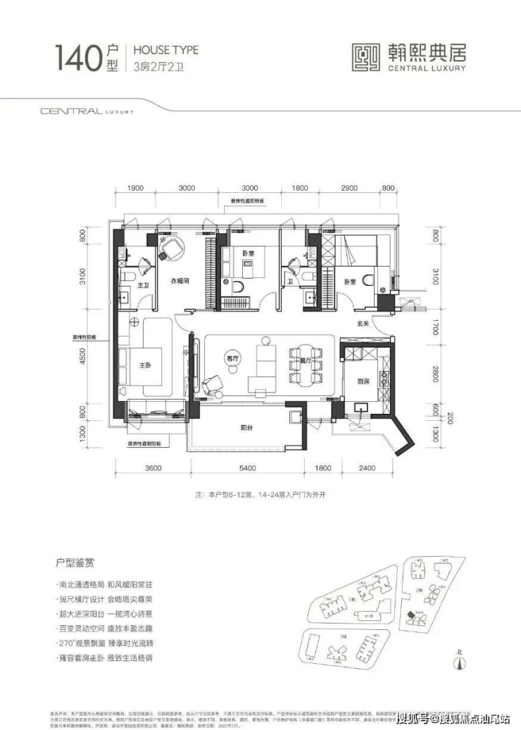
140㎡户型:位于四单元06梯腿,3+1房2卫,朝西南向,南北通透、三面采光,横厅面积32㎡、主卧面积40㎡,北向双次卧、双卫生间,衣帽间近10㎡可改+1房,是小区内终极改善的产品。

深圳【翰熙典居】售楼处电话:400-088-3336【营销中心】中介勿扰
深圳【翰熙典居】
开发商售楼处电话咨询/预约热线:400-088-3336【售楼中心】24小时热线
深圳【翰熙典居】售楼处电话:400-088-3336【营销中心】中介勿扰
深圳翰熙典居楼盘详情介绍,包含售楼处电话、地址、户型图、小区图片、区位优势、交通、周边商业配套等楼盘详细资料;更详细楼盘资料和最新折扣价格,请拨打售楼处电话,销售会为您详细介绍楼盘。
免责声明:
以上所发布的关于楼盘相关图文信息仅供您买房前参考,以上所有关于本楼盘的图文资料及说明请以最终以项目批文及双方在楼盘营销中心现场签署的买卖最终合同为准;本图文内容如无意中侵犯到某方权益,请联系我们将会及时处理!
声明:本文由入驻焦点开放平台的作者撰写,除焦点官方账号外,观点仅代表作者本人,不代表焦点立场。
