京基御景峯(营销中心)首页网站-京基御景峯售楼处(销售中心)-京基御景峯欢迎您-地址-价格-户型-小区环境-楼盘详情-交房时间-周边配套
扫描到手机,新闻随时看
扫一扫,用手机看文章
更加方便分享给朋友
深圳【京基御景峯】
京基御景峯售楼处电话:400-088-3336【看房请提前线上预约】
京基御景峯售楼处电话:400-088-3336【营销中心】_24小时电话
京基御景峯售楼处欢迎您_深圳京基御景峯售楼处最新详情/地址/户型/价格
南山山居综合体豪宅,山水资源,自带大体量商业。
京基御景峯整个项目体量达到约64万㎡,集高端住宅、私享公寓、总裁办公、旗舰商业于一体。
项目还自带约4万㎡集中式商业,其中,地面一层与市政道路相接,地上二层与地铁站无缝接驳,便于人群引流。
从京基已经成功运营的商业标杆KK MALL和KK ONE来看,未来项目自带的商业也是值得期待的。
基本信息
1
小区名称:京基御景峯
2
开发商:深圳市京基置业有限公司
3
物业公司:深圳市京基物业管理有限公司
4
项目地址:南山留仙大道长岭陂地铁站A1出口
5
容 积 率:7.74
6
绿 化 率:30%
7
总 车 位:3427个
9
学 位:南山区南方科技大学教育集团(南山)实验一小,实验二小等
京基御景峯效果图
从周边环境来看,项目背靠塘朗山,面朝长岭皮水库,视野景观十分开阔。
约15000亩(约1000万㎡)塘朗山绵延至此,连同西丽水库、长岭皮水库、塘朗山构成的公园群给项目带来得天独厚的山水景观资源。这里的绿化覆盖率居深圳第一,负氧离子含量是福田中心区的4倍。
长岭皮水库
并且,项目旁有登山道可以直接登山远望,实现真正的亲山,站在山巅,向东可直接远眺梧桐山景,向西北可观阳台山,尽览深圳风光之美。
山地美学:一半是城市一半是自然
long-term programme

建筑与山和城市的关系,从以上航拍可见:山、湖、城三元合一。

换个角度再看看御景峯:从山林长出来的建筑。
“山地建筑的设计在于不只是要考虑到很好的保护了原有的基形,如山体地形和很好的植被等艺术素材美,个体形象的片段美,而在于进行了整体艺术上的再创造,使局部的美有机地结合一体而成为整体的美。“管中窥豹这个阳台,它们与山似乎本来就该在那里……

与湖泊、大学城更是浑然一体,彼此成就。一半是城市一半是自然,诚然也。在寸土寸金的深圳的城市中心还能有这么一方高富氧的文艺土壤,京基地产自然是该高度重视的。麦玲玲曾说:老板都适合湖居、文艺老板更适合山居,金融老板适合海居,规划设计师们可以好生琢磨琢磨这句话。
山地建筑的设计关键在于正确的处理好构成建筑环境的三个要点:山体、植物、建筑之间的关系,特别是处理好人工建筑物与自然景观之间的关系。从总规看,京基地产依照前商后居、前繁后宁的总原则,利用高低落差有序从山脚到半山排布:商业、写字楼、住宅公寓。独立成城又兼得城市互动。
【办公体】:办公和商业空间灰色气质,办公楼折线开口设计使大面积的玻璃立面生动活泼且具有现代感;竖线条更加突显建筑的高耸挺立。
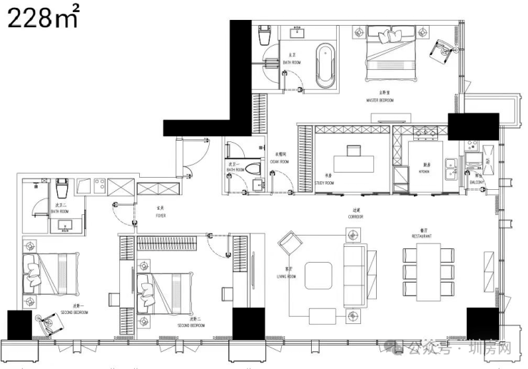
平面•户型图








京基御景峯项目概况
开发商:京基地产
地址:位于南山区西丽留仙大道与长源二街交汇处
占地面积:64,000㎡
总建筑面积:640,000㎡
产权期限:70年(17-87年)
总套数:584套
户型面积:68-228㎡,涵盖2至4房
车位数量:3,247个
梯户比:5梯6户/6梯4户
交楼标准:精装修
依山傍水,藏着多少人对人生最极致的设想。京基御景峯让精英人士在城市中心拥有“山、湖、河”生态绿色,山环水抱间,晓山晨曦,青翠欲滴,微风传递着阵阵鸟语花香,绝佳的生态格局呼之欲出。
深圳【京基御景峯】
京基御景峯售楼处电话:400-088-3336【看房请提前线上预约】
京基御景峯售楼处电话:400-088-3336【营销中心】_24小时电话
京基御景峯售楼处欢迎您_深圳京基御景峯售楼处最新详情/地址/户型/价格
免责声明:以上信息仅供参考,所有图文资料请以政府最终批文及双方签署的买卖合同为准
本图文内容如无意中侵犯某方权益,请联系我们,将第一时间处理!
声明:本文由入驻焦点开放平台的作者撰写,除焦点官方账号外,观点仅代表作者本人,不代表焦点立场。
