中信城开红树湾(中信城开红树湾)售楼处24小时电话丨价格-户型-配套-楼盘详情
扫描到手机,新闻随时看
扫一扫,用手机看文章
更加方便分享给朋友
深圳【中信城开红树湾】楼盘最新详细信息,图文解析
中信城开红树湾售楼处热线:400-088-3336(售楼中心)
专业热情一对一服务!让您用专业眼光去买房!给您一个温馨满意的家!
欢迎来电咨询〢尊享内部优惠服务〢预约案场内部销售人员〢
4000883336
中信城开红树湾项目推出7套优质单位
带精装修现房可预约看房
63平~69平 (两房)
77平 (两房)
103平 (三房2卫)
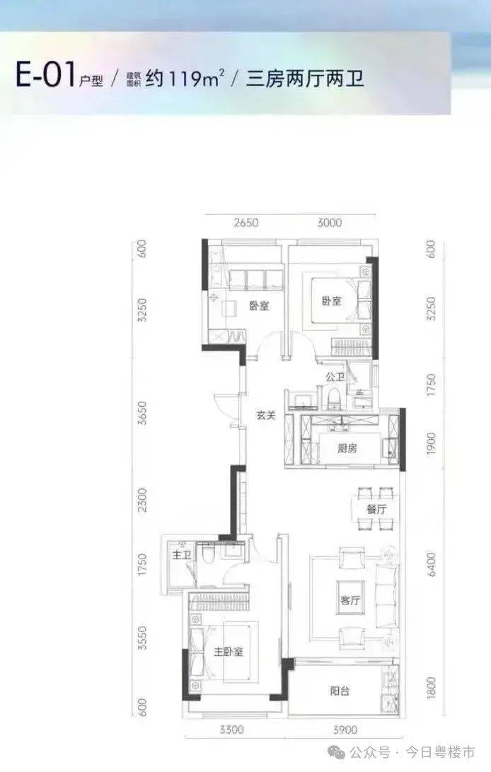
119平 (三房2卫) (看深圳湾红树林景)此套毛坯交付
区域价值
从地理位置上看,项目紧邻福田CBD,北侧为香蜜湖金融中心;东侧为平安大厦、会展中心、市民中心;西侧是车公庙枢纽中心,南端是口岸,区位上讲是真正的福田中心区!
作为深圳市中心城区, 福田拥有全国含金量最高的中央商务区 —— 福田 CBD, 以及国家级科技创新平台 —— 河套深港科技创新合作区。
站在新的历史节点, 福田将以河套深港科技创新合作区 , 香蜜湖新金融中心 ,环中心公园活力圈 , “ 三大新引擎 ” 为总牵引 ,突出科创、金融、时尚 “ 三大产业 ” ,瞄准中央创新区、中央商务区、中央活力区 ,“ 三大定位 ” , 奋力推动新三十年再出发,首善之区开新局, 启动全面建设 , 社会主义现代化典范城区的新征程!
交通配套
地铁:三号延长线福保站去年已经开通,距离1.3公里

商业配套
项目自带有商业裙楼,周边有天虹商场、福田口岸商业广场、永旺超市、卓悦INTOWN购物中心、星河COCOPark等等。

教育配套
周边配套小学是福苑小学(公办),初中是福田外国语中学(原名福田保税区实验学校);幼儿园则在距离项目约350米处有福田第八幼儿园。

医疗配套
项目距离最近的是福田妇幼保健院。
生态配套
项目隔壁就是最大的湿地公园-福田红树林湿地公园,运动休闲都能满足。部分中高层户型还可看深圳湾海景及红树林湿地景色。

平面•户型图

深圳【中信城开红树湾】楼盘最新详细信息,图文解析
中信城开红树湾售楼处热线:400-088-3336(售楼中心)
专业热情一对一服务!让您用专业眼光去买房!给您一个温馨满意的家!
欢迎来电咨询〢尊享内部优惠服务〢预约案场内部销售人员〢
免责声明:
1、以上部分图片素材源自网络,如有侵权,请联系我们删除;
2、本广告相关文字、图片以及建筑设计效果图是对项目所做的示意表现,仅供参考,最终标准详见政府相关部门批准文件,经政府批准的详细规划以销售现场公示为准,敬请查看;
3、本广告为要约邀请,买卖双方的权利以及义务以双方签订的合同为准。相关内容如有更新,请以最新资料内容为准。
声明:本文由入驻焦点开放平台的作者撰写,除焦点官方账号外,观点仅代表作者本人,不代表焦点立场。
