中南珺悦名都售楼处电话(营销中心)中南珺悦名都_中南珺悦名都楼盘详情
扫描到手机,新闻随时看
扫一扫,用手机看文章
更加方便分享给朋友
深圳【中南珺悦名都】楼盘最新详细信息,图文解析
中南珺悦名都售楼处热线:400-088-3336(售楼中心)
★★售楼中心——欢迎来电咨询〢——匠心钜制恭迎品鉴!
◆◆营销中心——欢迎来电咨询〢———匠心钜制恭迎品鉴!
01
基本信息
珺悦名都前身为中南集团主导的宝城 25 区旧改项目,位于宝安区新安街道前进一路与裕安二路交汇处,与中粮大悦城、万科大都会两大项目相邻,共同构建约 150 万㎡的核心生活区。

项目分为01、02地块,共规划377套住宅。
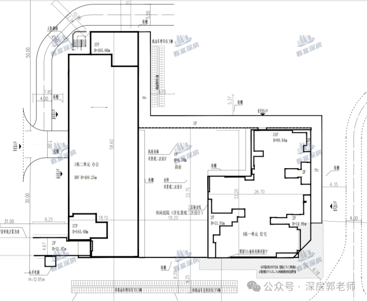
01地块,宗地号A007-0585,总建筑面积68万方,住宅面积1.52万方,商业1744方,总户数203户(商品住宅70户,保障性住房116户,回迁房房17户),新建1栋建筑,含一单元31层住宅楼及二单元37层办公楼。

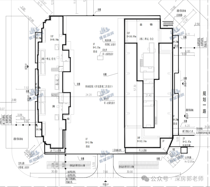
02地块,宗地号A007-0586,总建筑面积7万方,住宅面积1.7万方,商业2031平,总户数174户,新建1栋建筑,含二单元31层住宅楼及二单元30层办公楼。

基础数据:
开发商:深圳市中金盛投资有限公司
物业公司:深圳悦晟物业
总占地面积:约1.2万㎡
总建筑面积:约14.3万㎡
容积率:10.05/9.01
绿化率:30.01%
栋数:2栋住宅+2栋办公
总户数:377套,可售商品房244套
总层高:31层
梯户比:1栋一单元3梯7户,2栋一单元4梯6户
车位:792个
物业费:6.7元/㎡·月
产权:70年(2023年12月18日-2093年12月17日)
房产性质:住宅
交楼时间:2027年6月
交楼标准:精装修
面积:88-115㎡3-4房
0
2
珺悦名都为中南集团主导的宝城 25 区旧改一期C项目
2023年12月18日,中南集团旗下的深圳市金中盛投资有限公司取得了该项目A007-0585、A007-0586宗地的土地使用权。
计划打造为区域标杆。然而,中南集团自2021年起陷入流动性危机,债务逾期、项目停工等问题频发,2022年其净负债率高达202.15%,多笔信托融资面临兑付压力,项目因此搁置,差点烂尾。
2023 年2月,扶贫纾困专业户的中国信达出手,以 “股权接管 + 委托代建” 模式接盘,这才有了我们即将看到的珺悦名都。
0
3
项目平面图及户型


0
4
区位配套
项目的地段还算不错,新安属于宝安的老城区,与南山西丽、南头相邻,距离宝中也比较近,算得上是宝安的核心地段。
交通配套
距离 5 号线与 12 号线换乘站灵芝站仅约400 米,步行5-7分钟可到达;南向,2站宝中,5站前海;东向,3站留仙洞,4站西丽。
项目邻近前进一路、创业二路两条城市主干道,快速接驳广深高速、京港澳高速;

教育及文体生活配套
项目划片建安小学(省一级)和新安中学(集团)初中部 ;
距离项目 500 米内,裕安学校(九年一贯制)正在建;
灵芝公园、宝安公园、流塘公园等 5 大公园簇拥环绕 ;
3KM范围内宝安体育馆、工人文化宫、宝安公共文化艺术中心等文体配套;
6
片区市场情况
周边曾经入市的项目有玖玖颂阁,万科大都会,招商臻府,中粮大悦城,在当时价格水平基本在8万-10万/㎡。
灵芝站附近目前仅有万科大都会还有现房在售。万科大都会的二手房挂牌均价在9万/平左右,近3个月的成交价格在7.58万/平。
同片区的,勤诚达云邸受开发商影响暂被搁置,入市时间成谜;玖玖颂阁,主推84-132平3-4房,2021年底入市,目前还有一百多套现房在售。
总结
优点:
1、项目的地段还算不错,新安属于宝安的老城区,与南山西丽、南头相邻,距离宝中也比较近,算得上是宝安的核心地段。
2、交通配套好,紧邻地铁5号线/12号线灵芝站约400米,2站到宝安中心,5站到前海湾,自驾靠近广深公路,到南山约15分钟车程;
3、周边聚集超百万平商业体,华南区首座中粮“大悦城”就在月底开业,25万方的体量,过去也就四五百米。周边还有中洲πMALL、海雅缤纷城、壹方城等;生活便利性这一块没得说,在一众刚改盘里,这个配套算是比较能打的了。
4、折后单价约6.9万/起,折后均价约7.4万/平。折后总价区间608~932万。比六年前隔壁新盘低约1万元/平,比四年前隔壁新盘低约2万元/平!在新安非常有性价比,也是灵芝地铁口价格最低的上车项目。加之整个新安片区,新房差不多断供3年之久,有一定的稀缺价值。
缺点:
1、项目整体容积率高达9.69,住宅层高31层,梯户比3梯7户和4梯6户,居住密度较高,并且小区只有两栋住宅楼,社区较小,活动空间有限;虽然调整了住宅的整体朝向,但仍难以避免一些房间和写字楼对视。
2、项目包含商品房(256套)、保障房(116套)及回迁房(17套),还有办公写字楼,人群比较杂,影响居住体验;
3、一路之隔是宝安中医院,可能部分人群会比较介意;
4、周边还有些旧改施工,存在噪音影响;
5、新规产品,但是一栋板楼一栋塔楼,所以在户型实用性上也有差异,前进一路的那栋住宅,89㎡的户型能做到95%的实用率,靠裕安学校里侧的那栋,89㎡的使用率就是85%左右。精装样板房,整体给人感觉就是中规中矩,主打紧凑实用,没有太大的亮点,但也没啥缺陷。
深圳【中南珺悦名都】楼盘最新详细信息,图文解析
中南珺悦名都售楼处热线:400-088-3336(售楼中心)
★★售楼中心——欢迎来电咨询〢——匠心钜制恭迎品鉴!
◆◆营销中心——欢迎来电咨询〢———匠心钜制恭迎品鉴!
免责声明:
1、内容部分来源网络,因编辑需要文字和图片之间亦无必然联系,仅供读者参考。
2、此号所转载的所有文章、图片、音频视频文件等资料版权归版权所有人所有,因非原创文章及图片等内容无法一一和版权者联系,如原作者或编辑认为作品不宜上网供大家浏览,或不应无偿使用,请及时来电告之,我们将立即予以修改或删除。
3、本网页如无意中侵犯媒体或个人的知识产权,请来电告之,我们将立即予以修改或删除。
声明:本文由入驻焦点开放平台的作者撰写,除焦点官方账号外,观点仅代表作者本人,不代表焦点立场。
