光启未来中心招商电话(光启未来中心租赁)首页网站-光启未来中心营销中心-中航中心欢迎您-光启未来中心楼盘详情-2025年最新价格-户型图-容积率@最新售楼处
扫描到手机,新闻随时看
扫一扫,用手机看文章
更加方便分享给朋友
光启未来中心位于南山科技园核心,拥有卓越地理位置与便利交通。其高品质的硬件设施和智能化管理系统,为企业提供高效办公体验。深圳光启未来中心凭借其独特优势,成为科技企业争相入驻的热门选择。深圳光启未来中心,商务办公新标杆。
光启未来中心开发商招租:400-088-3336
光启未来中心租赁咨询请拨打:400-088-3336✔✔【已认证】

光启未来中心项目基础信息:
项目位置:深圳市南山区粤海街道高新区社区高新南四道88号
导航地址:光启未来中心
地铁或公交:1号线高新园站、9号线高新园南站
项目占地面:17171㎡
项目建筑面积:176185㎡
项目楼栋数:2栋
标准层高:4.5m,净高3.2m
实用率:70-85%
幕墙:信义超白双银LOW-E玻璃
电梯品牌及数量:日立品牌,共42部,3000:1电梯配比,客梯最高可达4秒,标配目的地选层系统
空调系统:24小时无时差办公全天候恒温恒湿的独立控制开利中央空调系统并配备新风系统
停车位:607个(含64个智能充电车位,一体化智能管理系统,对车辆进行精准定位)
物业公司:物管顾问-仲量联行
物业管理费:23元/㎡·月
交付标准:公区精装、网络地板、墙面刷白
特色配套:园林式前广场、33F空中大堂、特色连廊,打造休闲商务新高度
深圳光启未来中心招租电话:400-088-3336(租赁中心)
A塔
项目建筑面积:约8.35万㎡
高度:223.8m/46F
大堂高度:7.2-9.14m
标准层面积:2200-2400㎡
电梯及数量:日立电梯/22部
深圳光启未来中心招租电话:400-088-3336(租赁中心)

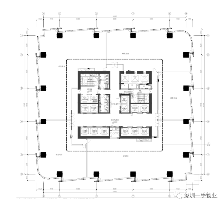
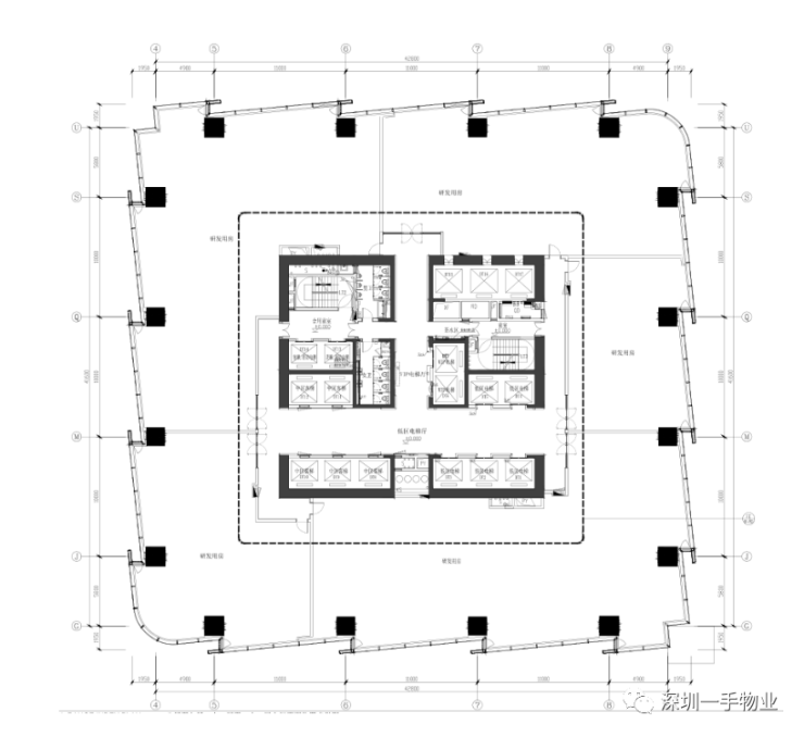
A塔低区(8-21F)平面图

光启未来中心开发商招租:400-088-3336✔✔24小时预约热线
光启未来中心租赁咨询请拨打:400-088-3336✔✔【已认证】
光启未来中心大厦租赁热线:400-088-3336✔✔24小时预约热线

光启未来中心开发商招租:400-088-3336✔✔24小时预约热线
光启未来中心租赁咨询请拨打:400-088-3336✔✔【已认证】
光启未来中心大厦租赁热线:400-088-3336✔✔24小时预约热线
免责声明:本文内容非物业及开发商,内容仅供参考,如有错误内容感谢您及时联系告知我们,谢谢!
声明:本文由入驻焦点开放平台的作者撰写,除焦点官方账号外,观点仅代表作者本人,不代表焦点立场。
