翰熙典居(售楼处电话)首页网站深圳翰熙典居售楼处欢迎您|配套_房价_户型
扫描到手机,新闻随时看
扫一扫,用手机看文章
更加方便分享给朋友
【翰熙典居】咨询热线☎:400-088-3336【销售中心】
★★售楼中心——欢迎来电咨询〢——匠心钜制恭迎品鉴!
温馨提示:网上售楼中心〢欢迎来电咨询〢安全通话隐藏真实号码〢
翰熙典居是南山粤海板块唯一在售的新盘,原是桂庙新村城市更新单元,9/15号地铁线“深大南站”就在家楼下,有学府一小+学府中学加持,步行800多米到海岸城高端商业区,关注此盘的买家较多。
项目区位
「翰熙典居」原为桂庙新村城市更新单元项目,位于南山区粤海街道白石路与学府路交叉口西北侧,东临白石路,西近南海大道,南临学府路,北面与深圳大学毗邻。周边集聚了腾讯滨海大厦、软件产业基地等写字楼,地理位置优越。

从位置上看,项目临近深大南站,9号线和已经在建15号线在此交汇。其中,地铁15号线串联前海湾、大铲湾、留仙洞总部基地、西丽交通枢纽、南山高新科技园等,是深圳最具有价值的一个圈。
项目介绍
翰熙典居总占地70224㎡(相当于10个标准足球场大小),定位是打造集居住、商业、办公、酒店及公共配套设施为一体的综合社区。
项目开发建设用地41660㎡,容积率8.9,计容建筑面积369100㎡,包含住宅249950㎡(含人才住房和保障性住房32500㎡),商业、办公及旅馆业建筑106530㎡(含商业文化设施不低于5330㎡)。
另外,项目还有规划近12620㎡的公共配套设施、3200㎡ 的12班幼儿园、占地面2900㎡公交首末站等,并配建占地面积1500㎡的社区体育活动场地。
分三个地块建设
01地块,规划总建面约17.3万㎡,容积率9.28。规划住宅建面约8.9万㎡,商业建面约3.2万㎡。
规划为3栋超高层塔楼住宅+幼儿园,1栋一、二单元193米55层,1栋三单元为保障房157米44层。
规划1038套,其中保障房612套+回迁179套+可售247套,停车位834个。
02地块,规划总建面约16万㎡,容积率9.12。规划住宅建面约8.37万㎡,商业建面约1万㎡,办公面积约1.7㎡。
规划为4栋超高层塔楼,2栋一单元住宅174米53层,2栋二单元办公130米27层,2栋三单元住宅168米51层,2栋4单元住宅175米53层。
规划872套,其中回迁544套+可售328套,停车位747个。
03地块,规划总建面约17.6万㎡,容积率11.44。规划住宅建面约7.65万㎡,商业建面约1.5万㎡,办公面积约0.6万㎡,酒店约1.9万㎡。
规划为3栋超高层塔楼,3栋一单元住宅174米53层,3栋二单元住宅178米53层,3栋三单元办公+酒店170米36层。
规划1120套,其中回迁981套+可售139套,停车位1019个。
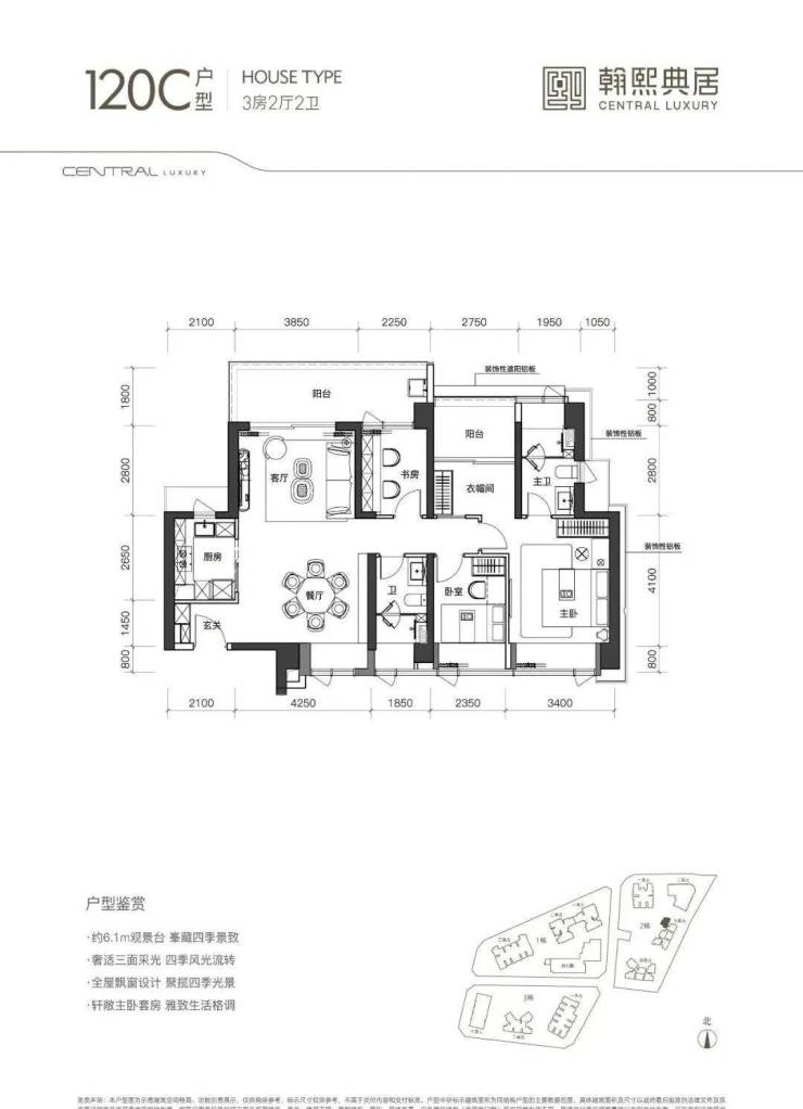
104㎡的3房2厅2卫,A1户型(2栋3单元03户型),设计的是竖厅类双龙抱珠格局,客厅3.6米开间,客餐厅一体化设计,3个卧室分别做到了主卧12.8㎡/次卧12㎡/次卧8.7㎡(包含墙体飘窗),客厅连接次卧出6.5米长的宽景大阳台,U型厨房,公卫三段式分离,得房率约90%(包含赠送),东南朝向。
103-104㎡的3房2厅2卫,A2户型(2栋4单元/3栋2单元03户型),设计的是竖厅类双龙抱珠格局,客厅3.6米开间,客餐厅一体化设计,3个卧室分别做到了主卧12.8㎡/次卧12㎡/次卧8.7㎡(包含墙体飘窗),客厅连接次卧出6.5米长的宽景大阳台,U型厨房,公卫三段式分离,得房率约90%(包含赠送),正南朝向。跟A1户型除了朝向不一样,其它都是一致的。
105㎡的3房2厅2卫,B户型(2栋3单元02/06户型),设计的是经典竖厅格局,客厅3.6米开间,LDKB一体化设计,三开间朝南,动静分区,3个卧室分别做到了主卧13.12㎡/次卧9.9㎡/次卧8.4㎡(包含墙体飘窗),客厅连接次卧出6.4米长的宽景大阳台,U型厨房,卫生间干湿分离,得房率约90%(包含赠送),正南或东南朝向。
102㎡的3房2厅2卫,C户型(1栋1/2单元02户型),设计的是竖厅格局,客厅3.6米开间,LDK一体化设计,3个卧室分别做到了主卧16.93㎡/次卧9.24㎡/次卧8.96㎡(包含墙体飘窗),客厅连接次卧出6.4米长的宽景大阳台,U型厨房,卫生间干湿分离,得房率约90%(包含赠送),西南或东北朝向。
105㎡有两个户型,分别为A1双龙抱珠以及B户型传统竖厅
翰熙典居主推建面约105-120-140㎡的新规奢雅人居,全明方正设计,以奢阔空间重塑生活尺度,配备高定品质精装,匹配粤海峯层精英的品质生活。
流线之幕 | 幕墙集成系统
静雅奢华风格延续奢宅风貌,历久弥新的品质凝练

盛世翰韵 | 新东方都市风格园林
度假式无边际泳池,樱花大道、无界人文街区
逐光之旅 | 大师高定艺术公区
以超脱酒店的艺术手法,构筑雅静空间,大堂墙面高端用材,精心雕琢尊崇归家仪式感

奢阔空间丨中心极境 礼献粤海
翰熙典居,粤海十年之后再上新,全新奢居综合体礼献峯层。可售主力户型新规后建面约105-140㎡奢雅空间,全明方正户型将空间奢阔感与生活舒适度完美契合。明星户型超6米阳台开间,全维度巨幕景观视野,尽揽湾心万千风景。
商业配套方面, 项目自带约5000㎡的商业规划。2公里范围内有海岸城、茂业百货、海雅百货等大型商超,日常购物娱乐皆能满足。
教育配套方面, 根据2024年南山学区划分,项目对口学校是南山区第二外国语学校(集团)学府一小和南山区第二外国语学校(集团)学府中学。根据坊间学校排名,两所学校均属于第二梯队。 (具体入学以当年教育局公布为准)
学府中学成立于 2003 年,是南二外教育集团目前孵化的成员学校当中,综合实力仅次于南二外海德初中部的存在。学校现有 50 个教学班,2400 余名学生和 201 名教职员工,师资力量雄厚 。
学府一小地处南山商业文化中心区,2001年建校,近年来刚刚扩建完成,扩建后学校环境、设施都进行升级,配备了未来教室、创客实验室等多种功能教室,生源主要覆盖深大周边,是学府中学的主要生源地小学。
文体休闲方面, 3公里范围内汇聚文心公园、南山书城,荷兰花卉小镇、南头古城、荔香公园、深圳人才公园等,各种休闲娱乐设施一应俱全。
医疗配套方面, 项目距离深圳大学医院约828米,距离三甲医院——南山区人民医院约1.2km,基本可满足居民日常看病就医需求。
01
交通配套
距离9号线深大站不到500米,未来周边还有15号线(在建中)经过,且靠近南海大道、滨海大道,不管是地铁或是驾车出行都十分方便。
02
商业配套
商业配套
2km内是后海商圈,有大家熟知的「海岸城」、「保利文化广场」、「茂业百货」、「海雅百货」等。
3km左右有「深圳湾万象城」、「后海汇」等,自驾车10分钟内几乎包揽了全深圳从顶奢到经济型消费的所有商场。
03
教育配套
教育配套
据目前南山区学区地图显示,桂庙新村在南山区第二外国语学校(集团)学府一小和南山区第二外国语学校(集团)学府中学范围内。南二外学府一小在南山属于第三梯队,南二外学府中学目前在南山还不错能排到前十。

小学
初中
04
周边房价
目前周边没有新房供应,二手放盘也很少,基本是为2000年左右的老社区,主要有锦隆花园,最近一套成交87㎡两房,总价623万,单价7.16万/㎡,挂盘价在7.65万/㎡。学林雅院最近一套成交83㎡两房,总价538万,单价6.5万/㎡,挂盘价在7.7万/㎡。

05
文体配套
地处科技园核心和深大校园,临近的仅有文心公园、科技公园,粤海街道文体中心、深圳湾公园、人才公园等。
优点
1.地处南山粤海街道科技园南区板块,虽然处于边缘位置相对孤立,但相对赤湾,妈湾来讲还是要强很多。科技园为片区带来产业辐射,有不少高质素人群可以支撑房价。
2.位置决定了项目的交通优势,后海大道+滨海大道,开车通勤十分方便。而且9号线深大南站就在家门口。
3.片区新房供应极少,最近三年的首个新盘,有一定稀缺性。
4.调规之后的新规产品,得房率还可以。
5.整个项目的面积段在约105-120-135-140-155㎡的3-4房(具体以开发商公示为准),每个面积段的户型都比较多样化,传统竖厅、横厅、双龙抱珠、南北通都有。
【翰熙典居】咨询热线☎:400-088-3336【销售中心】
★★售楼中心——欢迎来电咨询〢——匠心钜制恭迎品鉴!
温馨提示:网上售楼中心〢欢迎来电咨询〢安全通话隐藏真实号码〢
免责声明:我们致力于保护作者版权,转载或引用仅为传播楼盘更多信息,本文部分图片可能来源于网络,无法核实其真实出处,如涉及侵权请联系我们并及时配合处理。
声明:本文由入驻焦点开放平台的作者撰写,除焦点官方账号外,观点仅代表作者本人,不代表焦点立场。
