深圳翰熙典居为什么便宜-售楼中心-户型 价格 周边配套-有啥缺点
扫描到手机,新闻随时看
扫一扫,用手机看文章
更加方便分享给朋友
深圳【翰熙典居】
开发商售楼处电话咨询/预约热线:400-088-3336【售楼中心】24小时热线
深圳【翰熙典居】售楼处电话:400-088-3336【营销中心】中介勿扰
深圳翰熙典居楼盘详情介绍,包含售楼处电话、地址、户型图、小区图片、区位优势、交通、周边商业配套等楼盘详细资料;更详细楼盘资料和最新折扣价格,请拨打售楼处电话,销售会为您详细介绍楼盘。
🔻开发商:深圳市枫叶国际集团有限公司
🔻地址:位于南山于南山区粤海街道白石路与学府路交叉口西北侧
🔻占地面积:总占地4.16万,1.4万㎡(02地块)
🔻总建面、总占面 51.6万 5.16㎡万㎡
🔻产权:70年(23-93年)
🔻面积:105-140㎡3-4房
🔻价格:9-11万
🔻交楼标准:精装
🔻物业公司:深圳市丹枫物业管理有限公司
🔻物业管理费:6.5元/㎡
🔻容积率:8.5
🔻绿化:35%
🔻交楼时间:预计27年12月
🔻车位 1:0.85
🔻建筑类型:住宅
🔻层高:3米
🔻使用率:接近100%
🔻楼层高:51-53层
🔻栋数:4栋
🔻水电:民水民电
🔻学校:项目规划1所12班制幼儿园,西侧红线外规划1所30班小学,南二外学府一小,南二外学府中学
🔻户型价格:预计9-11万
105㎡3房2卫
120㎡3+1房2卫
140㎡3+1房2卫
平面•户型图

深圳【翰熙典居】售楼处电话:400-088-3336【营销中心】中介勿扰
项目总投资83.56亿元,分三期开发,总占地约7万㎡,总建面约36.9万㎡,包含住宅约25万㎡,商办及酒店约10.6万㎡。整个项目有约3030套住宅,包括商品房714套(占比23%)、保障房791套、回迁房1525套,车位共2600个。
另外,项目还有规划近12620㎡的公共配套设施、3200㎡ 的12班幼儿园、占地面2900㎡公交首末站等,并配建占地面积1500㎡的社区体育活动场地。

深圳【翰熙典居】售楼处电话:400-088-3336【营销中心】中介勿扰
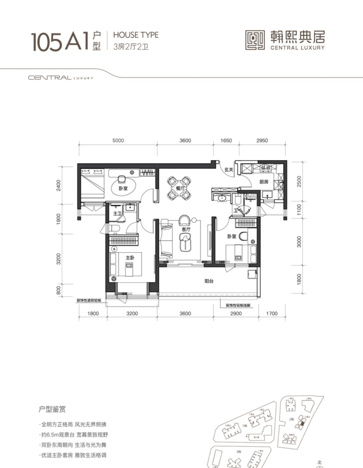
建面约105㎡的3房2厅2卫
经典的双龙抱珠布局,主人空间与客卧空间互不干扰,具备私密性优势。并且户型方正,实用三房两厅两卫。朝南向四开间面宽共约 13.2m,全明空间,采光极佳。这个户型含赠送半阳台和飘窗的面积后使用率可达约 83%,这在超高层中是比较高的使用率。
本次首推的 02 地块 ,户型有这个双龙抱珠的,还有一个户型是竖厅格局,各有优势,看个人喜好选择。

深圳【翰熙典居】售楼处电话:400-088-3336【营销中心】中介勿扰

深圳【翰熙典居】售楼处电话:400-088-3336【营销中心】中介勿扰

深圳【翰熙典居】售楼处电话:400-088-3336【营销中心】中介勿扰
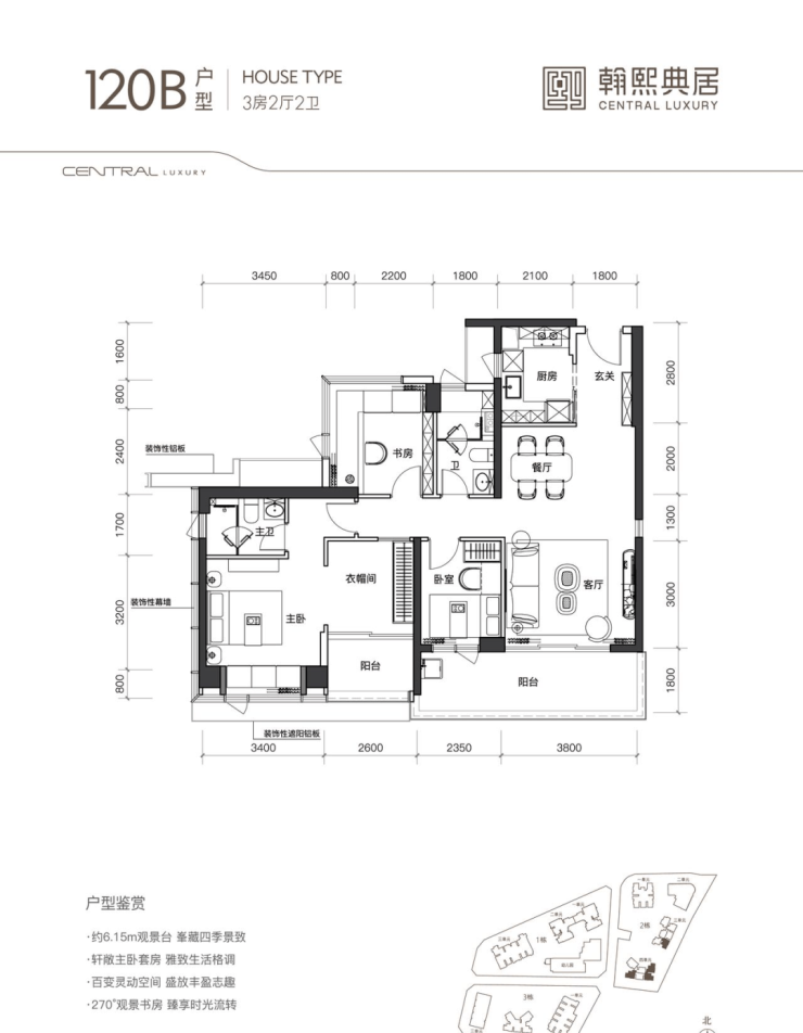
建面约120㎡的3+1房2厅2卫,
户型为大三房两厅两卫,东南朝向,含赠送半,阳台和飘窗等平台部分后使用率可达约 88%左右,这在超高层中是非常高的使用率。其中主客卧、客厅、双阳台合计开间超 12m,大尺度四面宽朝南,带约 6.15 米奢阔观景台,堪比一线豪宅的观景尺度;主卧超奢阔大套房,且预留了室内后期业主自行改造的灵动空间。

深圳【翰熙典居】售楼处电话:400-088-3336【营销中心】中介勿扰

深圳【翰熙典居】售楼处电话:400-088-3336【营销中心】中介勿扰
建面约140㎡的3房2厅2卫
该户型为 02 地块的唯一一条腿,非常稀缺。户型南北通透,带大主卧套房的奢居型三房。带 5.4m 观景台,大横厅奢阔空间设计,主卧同客厅阳台、餐厅三面宽朝西南。北向双次卧、双卫生间、拓展空间共五面宽一字排开,视野全面俯瞰社区内园林,静谧舒适。

深圳【翰熙典居】
开发商售楼处电话咨询/预约热线:400-088-3336【售楼中心】24小时热线
深圳【翰熙典居】售楼处电话:400-088-3336【营销中心】中介勿扰
深圳翰熙典居楼盘详情介绍,包含售楼处电话、地址、户型图、小区图片、区位优势、交通、周边商业配套等楼盘详细资料;更详细楼盘资料和最新折扣价格,请拨打售楼处电话,销售会为您详细介绍楼盘。
免责声明:
以上所发布的关于楼盘相关图文信息仅供您买房前参考,以上所有关于本楼盘的图文资料及说明请以最终以项目批文及双方在楼盘营销中心现场签署的买卖最终合同为准;本图文内容如无意中侵犯到某方权益,请联系我们将会及时处理!
声明:本文由入驻焦点开放平台的作者撰写,除焦点官方账号外,观点仅代表作者本人,不代表焦点立场。
