中洲迎玺花园(深圳龙华)首页网站|中洲迎玺花园房价_户型图_楼盘详情
扫描到手机,新闻随时看
扫一扫,用手机看文章
更加方便分享给朋友
【中洲迎玺花园】
如需了解更多详情,欢迎咨询中洲迎玺花园开发商售楼处咨询/预约电话:400 088 3336(售楼处发布)中介请勿扰,过来我们营销中心看房务必记得提前来电预约,预约看房的话最终的价格还能更加优惠。
面积及户型套数:
93-97㎡三房,304套,占比40%;
115-120四房,152套,占比20%;
131-142㎡四房,198套,占比27%;
163㎡四房,92套,占比12%。
二期各栋电梯梯户及总层高:
2栋一二单元为2T4户,总高31层;
2栋三单元为3T3户,总高49层;
2栋四、五单元为3T4户,总高49层。
备案参考均价表:(未包含折扣,预计开盘折扣约85折—15个点)
2、中洲迎玺一期于2023年12月份开盘,推出共计642套面积由93-136㎡的三房至四房,备案均价7.24万/㎡目前可享受楼盘优惠约85折(15个点),备案价表放在下面,可参考。这段时间项目去化非常快,政策后首个周末卖了77套,很多朝向和楼层都没有了.
折后单价5.9-6.95万/㎡
120的四房总价690万起;
136平四房总价919万起;
93平三房总价601万起;
97平三房总价575起;
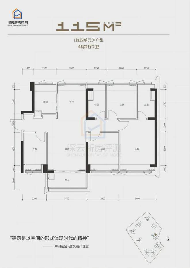
115平四房总价748万起。
以上价格仅供参考,拨打开发商电话400 088 3336进行在线预约看房价格还可以更优惠!
项目施工现状(拍摄于24年4月26号)
楼栋户型分布图:
二期标准层平面图:
户型图及户型尺寸:
二期户型图:
一期户型图:
深圳中洲迎玺二期
开发商售楼处预约咨询电话:400-088-3336(售楼中心)
楼盘详情丨专属置业顾问丨线上销售中心
深圳中洲迎玺二期售楼处电话:400-088-3336(营销中心24小时电话)楼盘项目介绍包括以下:开盘时间、交房时间、楼盘详情、房价、户型、详情、得房率、售楼处地址、首页网站、销售中心、楼盘地址、户型图、交通、备案价、最新优惠、营销中心电话、价格、周边配套等详情咨询。
免责声明:部分信息来源于网络,如果侵权,请联系及时删除,联系电话400-088-3336。
声明:本文由入驻焦点开放平台的作者撰写,除焦点官方账号外,观点仅代表作者本人,不代表焦点立场。
