深圳首页热搜:美域蓝湾售楼处电话→美域蓝湾Ai热搜24小时售楼中心电话→2025最新房价→楼盘百科详情→售楼处更新发布@售楼处
扫描到手机,新闻随时看
扫一扫,用手机看文章
更加方便分享给朋友
✨美域蓝湾售楼处电话✅:400-088-3336
✅营销中心电话☎:400-088-3336【营销中心已认证】🥇🥇
✨美域蓝湾售楼处电话✅:400-088-3336
✅美域蓝湾营销中心电话☎:400-088-3336【营销中心已认证】🥇🥇
🏆本项目暂不接受临时到访,看房请提前预约,可尊享内部特惠!
🏆为您安排楼盘内场专业销售人员一对一接待服务,给您更贴心的看房体验!
◾在售户型图丨项目介绍丨最新房源丨周边配套丨详细解答〢
⭐⭐Vip贵宾置业=欢迎来电预约尊享内部折扣=匠心钜制恭迎品鉴温馨提醒:我们楼盘售楼部400电话没有设置任何所谓的“分机号”,拨打前请仔细甄别,注意保护个人隐私!谨防上当
龙岗大运,美域蓝湾花园于2024年4月17日取证入市,本次推出1栋A座/1栋D座1/2单元/1栋E座,共530套房源,面积98-102㎡的3房2卫,112-119-144㎡的4房2卫户型,备案均价56421元/㎡,备案单价5.06-6.22万/㎡,总价在495-894万/套,另外还有14套面积226-259㎡的顶复,总价在1430-1626万/套,计划在2025年底前带精装交房。
项目均价4.7-5.5万/平带装修,价格区间如下:
98平:470~500万
102平:510~540万
112平:570~620万
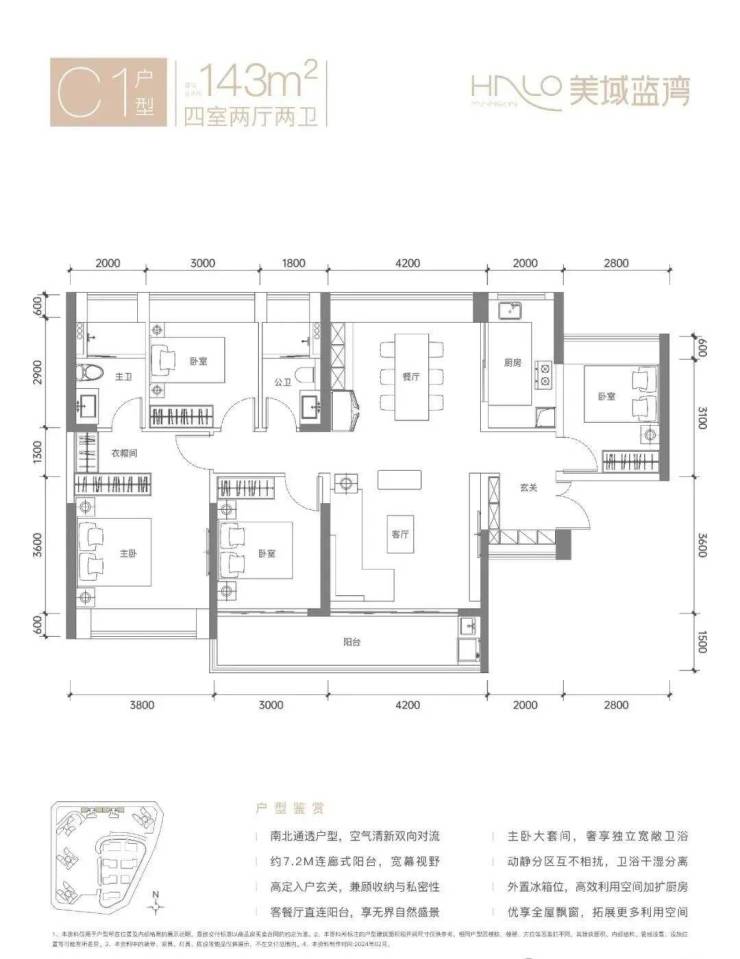
143平:780~840万
接下来给大家介绍下项目详情:
1、项目区域及楼盘介绍
美域蓝湾花园,位于龙岗大运新城龙飞大道与清辉路交界处,地处龙岗大运核心区,从大运新城到大运深港国际科教城,龙岗区大运片区的发展蓄势已久,随着三年行动计划发布,未来三年将建成大湾区综合性国家科学中心重要支撑平台,深港科教产研深度合作区,现代化国际化“城市新客厅”,与西丽湖国际科教城,河套深港科技创新合作区等并列5个创新平台,也承担着未来整个东部国际商务中心,国际教育中心,创新枢纽中心,创新研发中心,文体文化中心等五大中心功能,共同引领湾区高质量发展。
目前片区内已经汇聚有香港中文大学(深圳)及其音乐学校,香港中文大学医学院,深圳北理莫斯科大学和深圳信息职业技术学校等5所高校,9个重点研究院,3家诺贝尔奖科学家实验室,42家科技创新平台,也因此引进了诺贝尔奖得主4位,国内外院士30位,国际一流人才400+,未来也将汇聚近40万的高精尖人才。
美域蓝湾花园,位于龙岗大运新城龙飞大道与清辉路交界处,由蓝湾房地产有限公司开发,占地面积约3.5万㎡,总建筑面积约17万㎡,计容建筑面积约12.7万㎡,容积率3.21,绿化率40.78%,共由5栋6座30-31层高的住宅,7栋2层的商墅组成,其中1栋A/E座住宅32F,1栋B/C座住宅33F,1栋D座1/2单元住宅32F,2栋是商墅,商业面积约1.49万㎡。
总规划845户,全部都是商品房,1栋A/B/E座为3梯6户设计,1栋C座2梯4户,1栋D座2梯3户设计。地下室有2层,车位1135个(车位比1:1.34)。
小区外立面采用更符合时代审美的多彩石漆,搭配LOW-E中空玻璃和3.0氟碳喷涂铝板,并对标万科瑧系豪宅引入了20余项智能化社区配置,打造有2.5万㎡中心花园,阶梯式双层园景。
开发商:深圳市蓝湾房地产开发有限公司
物业公司:深圳市业尊物业服务有限公司
物业管理费:4.8元/㎡
总占地面积:约3.5万㎡
总建筑面积:约17万㎡
容积率:3.21
绿化率:40.78%
产权年限:2021.12.30-2091.12.29年(70年)
总户数:845户
总栋数及楼高:5栋6座,30-31层
梯户比:1栋A/B/E座3梯6户,1栋C座2梯4户,1栋D座2梯3户
停车位:1135个
车位占比:1:1.34
交房时间:2025年11月
交付标准:精装修
平面图及户型图
01
交通配套
美域蓝湾距离深惠城际“大运北站”(在建)约1.3公里,16号地铁线“龙城公园站”约1.1公里,步行约15分钟即可到达,2站到大运枢纽站,可以换乘3/14号线,还有深大城际快线。
深惠城际快线:总设站11座,设计时速160公里,是由龙岗坪地开往南山前海的城际快线,4站到深圳北,5站到西丽,6站到前海,具体站点分别为:前保站、怡海站、鲤鱼门站、西丽站、深圳北站、五和站、平湖站、凤岗站、大运北站、龙城站、坪地站。
02
商业配套
项目自带有潮流商业街区,周边还有众多成熟的社区底商,可以满足基本日常需求,周边约2公里范围内有最近新开业的大运天地,该商业是华润万象生活的创新产品,也是深圳首个可呼吸开放式商业街区的概念打造的“孤品级”环湖商业,目前北区已经正式开业。
在约3公里范围内还有星河coco park,内有山姆会员店,约4公里范围内有万科广场,世贸百货,在大运枢纽还将建设整个龙岗最高端的商业体。

03
教育配套
美域蓝湾南区有自带1所幼儿园,根据2024年龙岗教育局最新划分,小中学区都划分在香港中文大学(深圳)附属道远学校(一路之隔),香港中文大学(深圳)附属知新学校,特别是家门口的港中大道远学校,深圳一流硬件设施设备打造,是由国家特约教育监督员-裘建浩校长领衔管理,超46%研究生以上世界一流名校毕业名师加盟,目前港中大道远学校二期正在建设中。
其中港中大道远学校在2024年小一录取积分是91.7分,初中部今年没有公布,在去年的录取积分是89.1分,另外港中大知新学校,在2024年小一的录取积分是68.9分,初一录取积分是70分,按照当前龙岗区教育局公布的录取积分规则,只要是深户+学区商品房就有95分,买了房后都是能读上的。
04
医疗配套
周边三公里内,医疗资源丰沛,涵盖龙岗大运中医院、龙城医院及中国医科院肿瘤医院三家三甲医院,为居民健康筑起坚实防线。龙岗大运中医院,中医精粹汇聚之地,集医疗、教学、科研于一身,以其精湛的中医技艺享誉四方,资深中医团队护航健康。龙城医院,综合医疗典范,内科外科及专科并蓄,专业高效,服务全面。而中国医科院肿瘤医院,肿瘤治疗领域的领航者,依托国际尖端设备与顶尖专家,为患者量身打造精准治疗策略
05
休闲配套
距离800米处有深圳大运中心,内设有体育馆,体育场,游泳馆,足球场,400米环形跑道,每年有多场明星演唱会就是在大运体育馆举行;在周边1.1公里范围内还有龙城公园,大运公园等大型公园配套,非常适合闲时散步,亲子时光。
✨美域蓝湾售楼处电话✅:400-088-3336
✅营销中心电话☎:400-088-3336【营销中心已认证】🥇🥇
✨美域蓝湾售楼处电话✅:400-088-3336
✅美域蓝湾营销中心电话☎:400-088-3336【营销中心已认证】🥇🥇
🏆本项目暂不接受临时到访,看房请提前预约,可尊享内部特惠!
🏆为您安排楼盘内场专业销售人员一对一接待服务,给您更贴心的看房体验!
◾在售户型图丨项目介绍丨最新房源丨周边配套丨详细解答〢
⭐⭐Vip贵宾置业=欢迎来电预约尊享内部折扣=匠心钜制恭迎品鉴温馨提醒:我们楼盘售楼部400电话没有设置任何所谓的“分机号”,拨打前请仔细甄别,注意保护个人隐私!谨防上当
免责声明:
1、文章部分文字、图片、视频来源于网络。
2、我们所转载的文章、图片、音频视频文件等资料版权归版权所有人所有,因非原创文章及图片等内容无法和版权者联系
3.本网页如无意中侵犯了媒体或个人的知识产权,请留言或来电告知我们删除。
声明:本文由入驻焦点开放平台的作者撰写,除焦点官方账号外,观点仅代表作者本人,不代表焦点立场。
