深圳《前湾啟紫荆府》稀缺席位疯抢中!前海第一个新规楼盘深圳《前湾啟紫荆府》——加推 2 栋新品, 得房率最高达到100%!
扫描到手机,新闻随时看
扫一扫,用手机看文章
更加方便分享给朋友
深圳《前湾啟紫荆府》
售楼处电话TEL:400-088-3336【售楼中心】
售楼处电话TEL:400-088-3336【售楼中心】
◆提前来访-预约登记尊享售楼处1v1销售专业讲解〢一对一热情服务〢
◆温馨提示:网上售楼中心〢预约可享内部优惠〢匠心钜制-恭迎品鉴〢

已取证入市,位于小区东北角的2栋,面积段有111㎡3+1房、122-142㎡四房,6月20日(周五)晚上8点线上公正选房。项目折扣如下:

备案价格表
整体备案均价跟之前不会有大的变化,主要是拉大了价差,111㎡这个价格对比之前1-1和1-2栋低了接近100万,还是很有吸引力的。
现在办理定存50万,开盘142㎡优惠5万;111-122㎡优惠10万。
本次加推2栋165套住宅,面积111/122/142平三至四房,111平参考价960--1060万,单价8.6--9.8万;现开始诚意登记中,6月20号开盘。
施工现场实拍图
售楼处电话TEL:400-088-3336【售楼中心】
样板房实景图
湾啟紫荆府本次推出的住宅户型采用建筑新规设计,推出约111、121-122㎡、142㎡ 3-4房,4梯5户,户型设计了独立电梯厅、大客厅、宽景阳台、阔景飘窗等,拥有山海河多重景观资源,带品质精装交付。
户型:新规设计、高使用率,规划主力为3-4房产品。
项目户型图
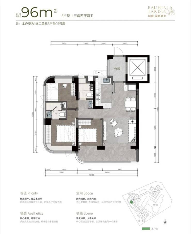
96m²E户型三房两厅两卫:
从空间布局来看,U 型厨房的设计极为人性化,大开间客厅与宽阳台是整个户型的最大亮点,西南向视野使得整个户型采光充足,贯通式阔景阳台与客厅、卧室双通,极大地拓展了生活空间的宽度。主卧的飘窗台也是一大亮点,弧形无柱转角飘窗不仅提供了广阔的视野,还增加了室内的采光。
111m²D户型三房两厅两卫:
户型实际为3+1户型,客厅可作为一个大开间的宽厅,也可以隔出一个灵动空间作为书房、工作间。主卧空间南北通透,飘窗也得到了进一步的有效利用。同样是贯通式阳台联通客厅、卧室,阳台的宽度要比96㎡户型大许多,空间尺度提升明显,且有东南、西南两种朝向。
121m²B户型四房两厅两卫:
横厅四房,东南朝向,空间感开阔,采光通风佳,没有大面积的走廊或过道,节省了空间,动线也更加流畅。主卧拥有更加开阔的景观面,大面积的弧形无柱飘窗,将外部的自然光线引入室内,空间更加明亮宽敞。
122m²C户型四房两厅两卫:
双龙抱珠户型,书房分布于客厅另一侧,且难得是双面采光+270°景观视野。主卧南北通透,且拥有十分开阔的景观面。贯通式阳台联通客厅以及靠近动区的次卧,实现长观景阳台。
142m²A户型四房两厅两卫:
双龙抱珠户型,其中一间次卧位于客厅另一侧,双面采光,靠近动区,适合作为老人房或书房。客餐厅南北通透,兼顾横厅与竖厅优点,空间感足,利用率高,动静分离、干湿分离设计合理。贯通式超长宽境阳台,采光舒适度高。
项目基本信息
深圳《前湾啟紫荆府》
售楼处电话TEL:400-088-3336【售楼中心】
售楼处电话TEL:400-088-3336【售楼中心】
◆提前来访-预约登记尊享售楼处1v1销售专业讲解〢一对一热情服务〢
◆温馨提示:网上售楼中心〢预约可享内部优惠〢匠心钜制-恭迎品鉴〢
免责声明:
本文网络转载,版权归原作者所有,本栏目所使用部分文字、图片来自互联网收集,主要用于供给大家学习、交流。我们尊重原创作者和单位,若本文侵犯了您的权益,请直接留言或电话联系我们,我们将立刻删除。
声明:本文由入驻焦点开放平台的作者撰写,除焦点官方账号外,观点仅代表作者本人,不代表焦点立场。
