开云府售楼处【首页网站】开云府售楼中心_房价_户型_详情
扫描到手机,新闻随时看
扫一扫,用手机看文章
更加方便分享给朋友
深圳【开云府】楼盘简介丨项目户型最新介绍
开云府售楼处电话TEL:400-088-3336【售楼中心】
◆提前来访-预约登记尊享售楼处1v1销售专业讲解〢一对一热情服务〢
◆温馨提示:网上售楼中心〢预约可享内部优惠〢匠心钜制-恭迎品鉴〢
1、项目区域及楼盘介绍
半岛擎峯二期」位于南山蛇口赤湾片区,属蛇口招商街道,是南山区的西南海角,东临蛇口太子湾,西接前海自贸区。
这个天然位置按理可以两头吃,但过去因为交通瓶颈的问题发展比较缓慢,直到近两年才开始大刀阔斧搞发展。
楼盘的具体位置在赤湾总部大厦旁,临近赤湾地铁站,是蛇口线(2号线)和环中线(5号线)的换乘站。
虽然很多人提到赤湾内心多少有点抗拒,不过在价格面前,这个地方还是有一定的性价比。位置、交通、周边配套都还是蛮不错的,如今卷到了龙华北站甚至沙井的价格,是可以拿来同位对比的。
「半岛擎峯二期」是赤湾汇广场综合体的住宅项目,这个综合体包括了商品房、人才房、办公、酒店和商场。
其中商品房住宅单独占有一个地块,有两栋超高层组成。
【基本信息】
🔸 占地面积:约3.4万㎡
🔸 建筑面积:约32万㎡
🔸 绿化率:30%
🔸 业态:住宅、商业、写字楼、国际五星级酒店
🔸 可售住宅:418户
🔸 物业费:6.79元/㎡/月
🔸 车位数:1346(专享地上车位:460个,综合地下车位:886个 )
🔸 车位比:约1:1.1
🔸 梯户比:T1栋4梯6户,T2栋4梯4户
🔸 交房时间:2025年6月精装交付
🔸 片区运营开发商:中国南山开发(集团)股份有限公司
🔹 项目地址:南山区赤湾六路东北侧(地铁2/5号线赤湾站E口地铁上盖)
2:项目平面图和户型
「半岛擎峯二期」户型为124-129-133㎡三房二卫和203㎡大四房三房,除了最小的124㎡其他都是多阳台设计。纵使这个三房的尺度感比如今市面上很多刚需三房二卫要宽敞不少,但整体来看使用率确实不高。
129㎡三房二卫A1:
A1有两条腿,分别1-1栋01/02,主朝向是西北向,双龙抱珠格局。
舒适大三房设计主卧都享有270度采光面,整体空间尺度感大且采光面充足,视野非常宽阔。
129㎡三房二卫A2:
A2有两条腿,分别1-1栋03/06,主朝向是东南向,双龙抱珠格局。这个户型是超阔大阳台,朝向优于A1,但公卫是个暗卫。
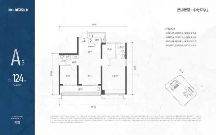
124㎡三房二卫A3:
A3也是两条腿,分别是1-1栋04/05,主朝向是东南向,双龙抱珠格局。客厅拥有超大观景阳台,缺点是公卫是个暗卫,小次卧和主卫也对天井外走廊,采光不足。
203㎡四房三卫B1:
位于1-2栋两条腿,设有电梯厅入户空间,隐私性拉满,这个空间约有面积6.27㎡,空间也可以很好利用。
整个户型设计是四房三卫南北通透,约有7.4米大阳台。双套房设置且270°景观面,主卧带独立衣帽间和大浴缸。
133㎡三房二卫B2:
B2有两条腿,分别1-2栋03/04,主朝向西南向,竖厅设计。
这个户型的所有卧室空间都比较平均,主卧两面采光,综合来看是个很完整的传统三房户型。
3:项目周边配套介绍
01
交通配套
交通:5地铁+海陆空全维覆盖
- 地铁:2/5号线赤湾站(E口零距离),1站到太子湾、2站到海上世界,未来24/28号线接入,真正“轨交心脏”。
- 自驾:兴海大道、妈湾跨海隧道(2025年通车)10分钟直达前海,深港西部快轨建成后,45分钟直通香港。
02
商业配套
商业:下楼就是“顶流商圈”
- 自持4.6万㎡滨海TOD商业(规划引进五星酒店+高端mall),1站到**太子湾K11 ECOAST**(亚洲旗舰)、兰桂坊,2站到海上世界。
- 6公里内万象前海、山姆会员店等10余个大型商超,穿睡衣也能逛遍全球!
03
教育配套
教育:家门口的“国际升学链”
- 公立:连廊直通南二外赤湾学校(九年一贯制),北师大附中高中(在建)、太子湾学校环伺。
- 国际:南山中英文学校(港籍班)、贝赛思、哈罗等顶尖学府簇拥,从幼儿园到高中,一条龙搞定“精英教育”。
4:项目综合测评
优点
位置:太子湾与前海的聚合点;
进度:项目已经全部封顶,交房有保障;
交通:临近地铁2号线/5号线/12号线;
商业:楼下便是商业中心;
特价:价格确实够低
不足
产权:产权年限50年,目前剩余30年;
产品:使用率不高,不过折算下来价格性价比还是可以;
板块:赤湾板块的发展周期仍需时日;
周边:临近港口有物流运输的影响。
深圳【开云府】楼盘简介丨项目户型最新介绍
开云府售楼处电话TEL:400-088-3336【售楼中心】
◆提前来访-预约登记尊享售楼处1v1销售专业讲解〢一对一热情服务〢
◆温馨提示:网上售楼中心〢预约可享内部优惠〢匠心钜制-恭迎品鉴〢
【免责声明】
1、本文部分信息和图片来源其开发商推广内容,对项目周围交通、商业、文化教育、医疗以及其他市政条件的介绍,具体以政府规划及现场实际为准。
2、效果图是规划意向的概念设计展示,非最终规划方案,不作为开发商承诺,最终以向政府报批报建的方案为准。
3、本文所述内容和意见仅供参考,不构成市场交易依据和投资建议,买卖双方权利义务以双方签署的买卖合同为准。
声明:本文由入驻焦点开放平台的作者撰写,除焦点官方账号外,观点仅代表作者本人,不代表焦点立场。
