深圳【航天科技广场】招商中心电话→航天科技大厦租赁中心电话→办公楼详情介绍→24小时热线电话欢迎咨询→开发商直租
扫描到手机,新闻随时看
扫一扫,用手机看文章
更加方便分享给朋友
深圳航天科技广场大厦租赁中心电话:400-088-3336
深圳航天科技大厦招租电话:400-088-3336航天科技大厦写字楼招租_24小时电话!
提前预约登记招商中心,尊享来电预约享受内部折扣,一对一专属置业顾问服务。
【航天科技广场】
出租楼层:A栋4-48F,B栋7-28F
出租面积:341-734-1200-2000-6578㎡

【深圳航天科技广场项目基础信息】
深圳航天科技大厦招租电话:400-088-3336航天科技大厦写字楼招租_24小时电话!项目位置:深圳市南山区后海海德三道和后海滨路交汇处
地铁或公交:2号线、11号线后海站J出口 ,13号线(规划中)
导航地址:航天科技广场
开发商:深圳市航天高科投资管理有限公司
项目占地面:1.26万㎡
项目建筑面积:约20万㎡
项目楼栋数:2栋
办公面积:约12万㎡
高度:A栋(238M/48层)B栋(138M/28层)
标准层高:4.3m,净高约3m
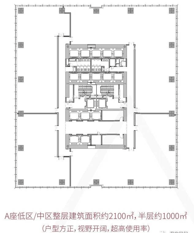
标准层面积:A座约2100㎡ , B座约1600㎡
使用率:A座约68% , B座约72%
幕墙:双层LOW-E中空玻璃幕墙
停车位:920个(月卡1000元/月)
电梯品牌及数量:A座25部,B座9部(进口三菱品牌)
空调系统:开利水冷中央空调 (8:00-19:00,加时空调按0.35元/㎡计算)
大堂高度:31M挑高大堂设计
物业公司:深圳市航天高科物业管理有限公司
物业管理费:30元/㎡/月(含空凋)
交付标准:公区精装、15cm网络地板、毛坯天花墙面、空调、烟雾传感器、喷淋系统
交楼时间:现楼


深圳航天科技广场大厦租赁中心电话:400-088-3336
【项目实地】



深圳湾航天科技大厦招租电话:400-088-3336航天科技大厦写字楼招租
【深圳湾·航天科技广场】
央企开发商直租一手使用率!!
【地铁】2号线/8号线/11号线后海站无缝衔接,13号线 石岩线预计年底开通
【片区定位】
深圳湾企业国际总部基地
80多家湾区企业总部集群;周边阿里巴巴、腾讯、华润、联想、卓越、海信、中铁、今日头条、海王星辰、喜之郎、天威等名企云集;
【项目优势】
实用率最高达72%
南山深圳湾核心商圈
无敌海景
户型方正
配套会议室 咖啡吧
可三连层一起大面积租赁
物业公司:深圳市航天高科物业管理有限公司

深圳湾航天科技大厦招租电话:400-088-3336航天科技大厦写字楼招租
【基本信息】
【面积】:2116.52㎡
【层高】:4.3米,净高3米
【朝向】:360度视角
【格局】:毛坯
【租金】:190元/平含税
【合同】:3年起
【押金】:3押1付
【使用率】:原始70%,整层80%
【物业费】:30元/平(含空调使用费)
【空调】:三棱品牌,水冷中央空调
【车位】:920个(90个充电车位)
【位置】:南山区后海海德三道和后海滨路交汇处
【户型信息】




深圳航天科技广场大厦租赁中心电话:400-088-3336
深圳湾航天科技大厦招租电话:400-088-3336航天科技大厦写字楼招租_24小时电话!
免责声明:本文所有文章、图片、音频视频文件等资料版权归版权所有人所有,因非原创文章及图片等内容无法一一和版权者联系,如原作者或编辑认为作品不宜上网供大家浏览,请及时来电告之,我们将立即予以修改或删除。本文如无意中侵犯了某方的知识产权,告之即删。
声明:本文由入驻焦点开放平台的作者撰写,除焦点官方账号外,观点仅代表作者本人,不代表焦点立场。
