京基御景峯(售楼处)首页网站-京基御景峯-京基御景峯欢迎您-楼盘详情@售楼处
扫描到手机,新闻随时看
扫一扫,用手机看文章
更加方便分享给朋友
深圳【京基御景峯】
开发商售楼处电话咨询/预约热线:400-088-3336【售楼中心】24小时热线
深圳【京基御景峯】售楼处电话:400-088-3336【营销中心】中介勿扰
深圳京基御景峯楼盘详情介绍,包含售楼处电话、地址、户型图、小区图片、区位优势、交通、周边商业配套等楼盘详细资料;更详细楼盘资料和最新折扣价格,请拨打售楼处电话,销售会为您详细介绍楼盘。
京基御景峯项目概况
开发商:京基地产
地址:位于南山区西丽留仙大道与长源二街交汇处
占地面积:64,000㎡
总建筑面积:640,000㎡
产权期限:70年(17-87年)
总套数:584套
户型面积:68-228㎡,涵盖2至4房
车位数量:3,247个
梯户比:5梯6户/6梯4户
售价区间:3.8-5万元/㎡
交楼标准:精装修
物业管理
:京基物业,费用为4.7元/㎡·月
容积率:7.7
绿化率:35%
交楼状态:现楼交付
建筑类型:公寓
层高:3.1-3.7米
使用率:70%
建筑楼层及栋数:包含1座47层、2座41层建筑,共9栋
水电标准:民用水电
商业配套:约37,000㎡
教育资源:待定
户型价格示例:68㎡一房一卫,总价380-450万元,单价约5-6.6万元/㎡
深圳【京基御景峯】售楼处电话:400-088-3336【营销中心】中介勿扰
房源信息
157㎡三居室,双卫,售价区间为650-800万元,单价在4.1-5万元/平方米。
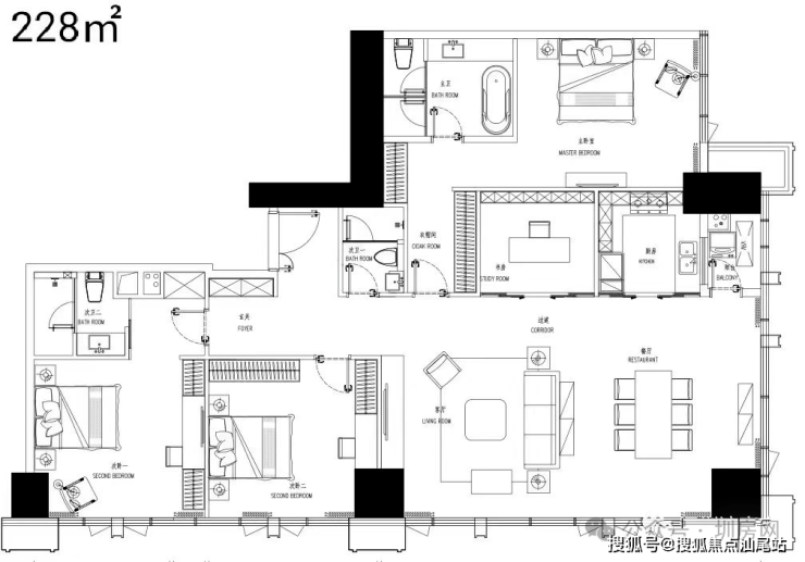
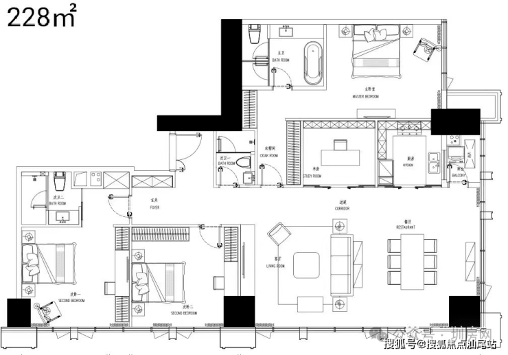
218-228㎡四居室,三卫,售价区间为888-1050万元,单价在4-4.6万元/平方米。
深圳【京基御景峯】售楼处电话:400-088-3336【营销中心】中介勿扰
平面布局与户型图
提供详细平面布局和户型图。

深圳【京基御景峯】售楼处电话:400-088-3336【营销中心】中介勿扰

深圳【京基御景峯】售楼处电话:400-088-3336【营销中心】中介勿扰


深圳【京基御景峯】售楼处电话:400-088-3336【营销中心】中介勿扰

深圳【京基御景峯】售楼处电话:400-088-3336【营销中心】中介勿扰

深圳【京基御景峯】售楼处电话:400-088-3336【营销中心】中介勿扰

深圳【京基御景峯】售楼处电话:400-088-3336【营销中心】中介勿扰

深圳【京基御景峯】售楼处电话:400-088-3336【营销中心】中介勿扰

深圳【京基御景峯】售楼处电话:400-088-3336【营销中心】中介勿扰
区域与地段优势

深圳【京基御景峯】售楼处电话:400-088-3336【营销中心】中介勿扰
优越地理位置
西丽区位于深圳市的科创高地,汇聚众多总部基地,是深圳六大总部基地之一。南山大学城、留仙洞总部基地和深圳北站总部基地均位于此区域,形成了深圳“中国硅谷”的三大核心引擎。未来西丽将成为深圳科技创新和人文发展的双高地。
西丽湖国际科教城
西丽湖国际科教城占地69.8平方公里,聚集了包括清华大学、北京大学在内的18所顶尖高校,拥有2家省级实验室。该区域共有78位两院院士,其中28位为全职院士,还有223位“千人专家”、1.4万名科研人员和4.54万名在校生。这里产学研深度融合,成为城市智慧高地。

深圳【京基御景峯】售楼处电话:400-088-3336【营销中心】中介勿扰
留仙洞总部基地是深圳的六大总部基地之一,汇聚了众多全球知名企业的总部。目前,大疆创新、航天科工、传音和万科等代表性企业已入驻该基地。预计未来将形成超过3000亿元的产业集群,并吸引至少60万高技术和高消费的财智人群。
深圳北站总部基地享有2000亿政策红利,规划商业服务业规模约550万平方米,计划引进20至30家大型总部企业和上市公司,目标是打造成为具有全球影响力的国际会客厅。目前美团科技、深圳高铁总部、深圳通以及深圳计算科学研究院等巨头已进驻。

深圳【京基御景峯】售楼处电话:400-088-3336【营销中心】中介勿扰
在交通与配套设施方面,该区域拥有核心枢纽,提供多维立体交通,便捷通达全城。通过无缝接驳5号线长岭陂站,一站直达深圳北站,方便前往南山福田中心及其他六大总部基地。此外,双高铁枢纽包括深圳北站和西丽高铁站(正在规划中)。四条轨道线在此交汇:5号线连接地铁4、7、13号线(建设中),从东向西可到达罗湖区和前海自贸区。
城市主干道布局:留仙大道、南坪快速、福龙路与沙河西路共同构成2横2纵的交通网络,侨城东路北延线正在建设中。

深圳【京基御景峯】售楼处电话:400-088-3336【营销中心】中介勿扰
生态景观:区域环境得天独厚,自然山水环绕,繁华与宁静可悠然切换。西丽位于大沙河长廊上游,“绿色飘带”贯穿深圳黄金中轴线,绿化覆盖率超过60%,居全市首位。拥有塘朗山的广袤绿意和长岭皮水库的开阔景致,连接广东省二号生态休闲绿道,集山、水、园、道四重生态环境于一体,尽享清新空气与自然阳光。

深圳【京基御景峯】售楼处电话:400-088-3336【营销中心】中介勿扰

深圳【京基御景峯】售楼处电话:400-088-3336【营销中心】中介勿扰

文化体育设施:区域内配备了深圳大学科技图书馆、大学城体育中心等文化设施,以及规划中的西丽文体中心,提供丰富的文体活动选择。周边还有广东省二号生态休闲绿道、西丽高尔夫俱乐部及麒麟山庄国宾级度假中心等高端休闲配套。

深圳【京基御景峯】售楼处电话:400-088-3336【营销中心】中介勿扰
商业配套:项目自带3.7万平方米的商业设施,与塘朗城相邻,满足日常购物与娱乐需求。
宝能环球汇项目拥有8万㎡的商业规模,并配备了近20万㎡的商业配套,形成超大型商圈。这一配置提供了一站式的休闲娱乐体验。此外,该项目附近还有7.5万㎡的万科云城商业、4万㎡的众冠时代广场和3万㎡的北站缤果空间。驾车仅需15分钟即可到达华润万象天地。
深圳【京基御景峯】售楼处电话:400-088-3336【营销中心】中介勿扰
教育资源方面,周边有多所优质学校,包括小学如道尔顿新华公学、南科大第一实验小学、南科大第二实验小学和南科大塘朗小学;中学有育才龙珠学校、南外桃源中学和桃苑实验学校。
深圳【京基御景峯】售楼处电话:400-088-3336【营销中心】中介勿扰
医疗资源也非常丰富,临近深圳大学总医院和深圳市孙逸仙心血管医院等医疗机构,为居民的健康提供保障。

深圳【京基御景峯】售楼处电话:400-088-3336【营销中心】中介勿扰
京基品牌具有28年的深厚底蕴,是国家房地产开发一级资质企业,也是深圳地产30年十大领袖品牌之一。该品牌曾开发多个经典项目,如京基100和京基滨河时代等,已成为地标性建筑的创造者。

深圳【京基御景峯】售楼处电话:400-088-3336【营销中心】中介勿扰
产品亮点包括大平层布局、奢阔层高和开阔采光。

深圳【京基御景峯】售楼处电话:400-088-3336【营销中心】中介勿扰
大平层布局,品味纯粹,约3.4-3.7米奢阔层高,最大约14米开间尺度,彰显高端生活。全玻璃幕墙设计,流线型美学立面,采用深灰色铝板和LOW-E中空落地玻璃幕墙,节能、隔热、降噪。

深圳【京基御景峯】售楼处电话:400-088-3336【营销中心】中介勿扰
约9-14米开间,多面采光,270°IMAX环幕视野,山水画卷尽入眼帘。奢阔梯户比,品牌日立电梯,6梯6户和6梯4户奢华配置,匹配高端人士的身份和品位。
深圳【京基御景峯】
开发商售楼处电话咨询/预约热线:400-088-3336【售楼中心】24小时热线
深圳【京基御景峯】售楼处电话:400-088-3336【营销中心】中介勿扰
深圳京基御景峯楼盘详情介绍,包含售楼处电话、地址、户型图、小区图片、区位优势、交通、周边商业配套等楼盘详细资料;更详细楼盘资料和最新折扣价格,请拨打售楼处电话,销售会为您详细介绍楼盘。
免责声明:
以上所发布的关于楼盘相关图文信息仅供您买房前参考,以上所有关于本楼盘的图文资料及说明请以最终以项目批文及双方在楼盘营销中心现场签署的买卖最终合同为准;本图文内容如无意中侵犯到某方权益,请联系我们将会及时处理!
声明:本文由入驻焦点开放平台的作者撰写,除焦点官方账号外,观点仅代表作者本人,不代表焦点立场。
