深圳亚太星通大厦(招商中心)首页网站-亚太星通大厦租赁部-最新首页欢迎您
扫描到手机,新闻随时看
扫一扫,用手机看文章
更加方便分享给朋友
亚太星通大厦写字楼招租热线:4000883336【看房请提前线上预约】
深圳亚太星通大厦招租电话:400-088-3336写字楼物业招租招商_24小时电话!
亚太星通大厦写字楼招租热线:4000883336【看房请提前线上预约】
深圳亚太星通大厦招租电话:400-088-3336写字楼物业招租招商_24小时电话!
【项目总建面】107,366.4㎡
【办公面积】72,150㎡
【楼体高度】230m
【产品类型】层高4.5m标准办公产品
【地理位置】宝安中心区宝兴路88号(宝安中心广场旁)
★基础参数
【管理费】30元/㎡/月(含税)
【层高】4.5m
【电梯】29部通力品牌高速电梯,高中低分区
【空调】VAV中央空调(高区)、风机盘管(中低区)
【大堂】挑高15m,面积超1,000㎡
【交付标准】租赁单元内:豪装;公共区域:品质精装修
【停车位】453个
————————————————
★项目外立面实拍
★大堂实拍
★租赁面积
·【星通大厦47楼整层】
·面积:1154.20平方米
·朝向:全面景观
·交付标准:豪华装修,家私免费使用
·户型亮点:无敌海景,豪华装修,适合总部接待使用,自带厨房
·含空调时段:(工作日:8:00-18:00,周六:09:00-12:00)
·租期:3-5年
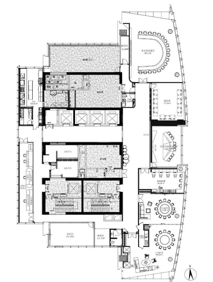
★平面图规划
★实拍图
亚太星通大厦写字楼招租热线:4000883336【看房请提前线上预约】
深圳亚太星通大厦招租电话:400-088-3336写字楼物业招租招商_24小时电话!
★38层共享会议室
亚太星通大厦写字楼招租热线:4000883336【看房请提前线上预约】
深圳亚太星通大厦招租电话:400-088-3336写字楼物业招租招商_24小时电话!
★负一层白领餐厅:
★商业配套:
亚太星通大厦写字楼招租热线:4000883336【看房请提前线上预约】
深圳亚太星通大厦招租电话:400-088-3336写字楼物业招租招商_24小时电话!
【免责声明】:本信息来源开发商推广资料和网络收集,更多为传递正能量,本文所述内容和意见仅供参考,如有侵权,请联系我们,我们将进行整改或删除!谢谢!
声明:本文由入驻焦点开放平台的作者撰写,除焦点官方账号外,观点仅代表作者本人,不代表焦点立场。
