前海·颐湾府(售楼处)首页网站深圳前海·颐湾府售楼处欢迎您|配套_房价_户型
扫描到手机,新闻随时看
扫一扫,用手机看文章
更加方便分享给朋友
深圳【前海·颐湾府】楼盘最新详细信息,图文解析
前海·颐湾府售楼处热线:400-088-3336(售楼中心)
★★售楼中心——欢迎来电咨询〢——匠心钜制恭迎品鉴!
◆◆营销中心——欢迎来电咨询〢———匠心钜制恭迎品鉴!
4000883336
【项目介绍】
双千亿国企深国际和深业集团合作开发
土地年限:70年(2015年1月1日起)
占地面积:约1.2万平米
建筑面积:约7.8万平米
容积率:4.35
可售住宅面积:约5万平米
绿化覆盖率:约40%
建筑栋数:4栋,其中1栋和2栋43层,3栋1单元30层,3栋2单元31层
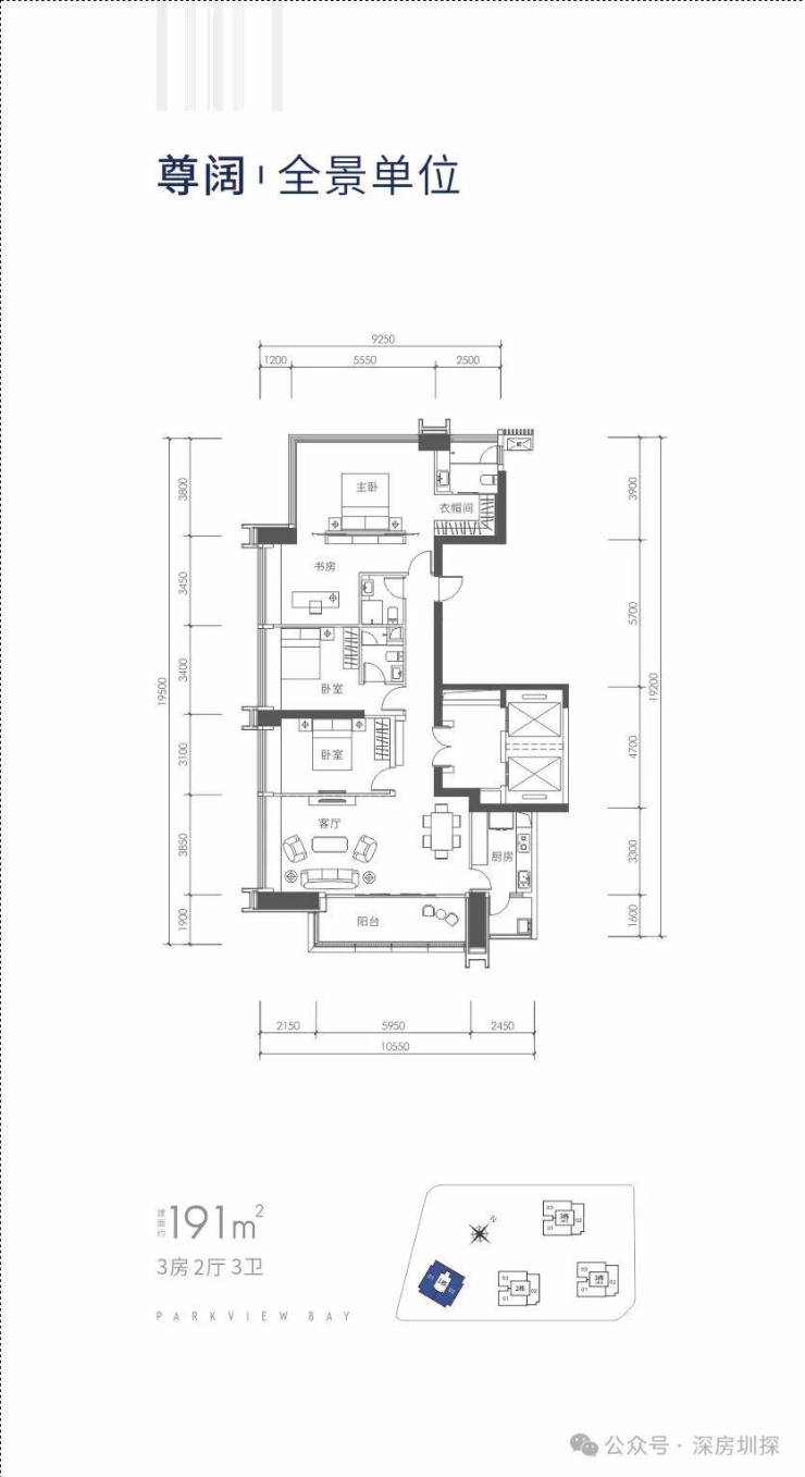
在售户型:190平米3房2厅3卫(可改四房)
入伙时间:已于2021年6月底入伙
物业费:6.5元/平米*月
项目总套数:377套
妈湾,“一带一路”国际经贸合作先导区
海陆空规四维交通——位于港城路,紧邻已开通的地铁5号线与地铁15号线(规划中)交汇处铁路公园站
楼下的岭南庭院式商街——前海印里,约2万平米岭南风情商业,现已开业(部分)
城市天赋自然资源——项目背靠大小南山,尽享丝路长廊起点铁路公园、前海水廊道、景观绿轴三大景观
国际教育资源汇聚——荟同学校、哈罗国际学校、礼德学校均已开学招生
深圳【前海·颐湾府】楼盘最新详细信息,图文解析
前海·颐湾府售楼处热线:400-088-3336(售楼中心)
★★售楼中心——欢迎来电咨询〢——匠心钜制恭迎品鉴!
◆◆营销中心——欢迎来电咨询〢———匠心钜制恭迎品鉴!
免责声明:我们致力于保护作者版权,转载或引用仅为传播楼盘更多信息,本文部分图片可能来源于网络,无法核实其真实出处,如涉及侵权请联系我们并及时配合处理。
声明:本文由入驻焦点开放平台的作者撰写,除焦点官方账号外,观点仅代表作者本人,不代表焦点立场。
