金光华凤凰九里(金光华凤凰九里)售楼处24小时电话丨价格-户型-配套-楼盘详情
扫描到手机,新闻随时看
扫一扫,用手机看文章
更加方便分享给朋友
深圳【金光华凤凰九里】楼盘最新详细信息,图文解析
金光华凤凰九里售楼处热线:400-088-3336(售楼中心)
专业热情一对一服务!让您用专业眼光去买房!给您一个温馨满意的家!
欢迎来电咨询〢尊享内部优惠服务〢预约案场内部销售人员〢
金光华凤凰九里,位于龙岗区平湖街道凤凰大道15号,北侧紧挨凤凰大道,西侧是信城缙学府,东南侧是鹅公岭社区公园,东北侧靠近东莞凤岗。
基本信息
占地面积:约8万㎡
总建筑面积:约70万㎡
产品类型:住宅、商业、办公
03地块占地:约1.4万㎡
03地块建面:约8.96万㎡
03地块套数:约952套
产品面积:约67-106㎡二至四房
规划车位:约779个
产权年限:70年
物业管理:光华物业
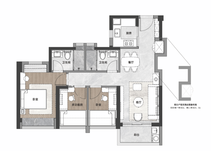
建面约67㎡2房2厅1卫
建面约73-75㎡3房2厅1卫

建面约83-85㎡3房2厅2卫

建面约106m²的4房2厅2卫
项目规划了约500米的立体城市连廊系统,串联全龄教育、精致商业、品质人居、活力运动、公园休闲等功能板块。
社区环境:社区内还规划有约6000㎡有氧体育活动盒子,涵盖游泳池、篮球场、mini足球场、儿童游乐场地、健身活动场地等,无论是小孩、大人还是长辈,都能在这里找到专属活动空间。

区域价值
平湖地处深圳发展中轴之上,是深圳12个市级功能中心之一。根据最新规划,平湖定位龙岗西核发展的重要增长极,将协同周边区域打造万亿级ICT产业集群承载区、千亿级跨境电商产业集聚区。
同时也是深圳中北部重要的交通中心,将有多条地铁及城际汇聚,并依托平湖站升级打造平湖综合交通枢纽,平湖枢纽是与深圳北站、西丽高铁站共同构建深圳“四主五辅”铁路枢纽体系的枢纽中心之一
目前已有城际广深线,地铁10号线等。
交通配套
项目当前最近的10号地铁线“双拥街站”距离约3公里,骑行时间约11分钟;周边还有正在规划建设中的17号地铁线“鹅公岭站”,以及18号地铁线“良安田站”,深惠城际“平湖枢纽”,深大城际“白泥坑枢纽”。
商业配套
项目内还规划了约1.8万㎡的Minimall商业,采用开放式街区设计,将打造成为深圳版的The Commons。项目临近建面约30万㎡的万达广场,接近于西部最火的壹方城的体量,周边还有平湖天虹、华盛奥特莱斯、凤凰城购物中心等时尚购物天地,吃喝玩乐一应俱全。
教育配套
项目西侧规划九年一贯制公立学校,内设图书馆、体育馆、文体专业教室等教育设施,同时项目内配建一所12班+一所9班幼儿园。项目周边还有平湖实验学校、龙岗区实验高级中学,优享近距离的一站式高质量教育。(具体学位划分以教育局公布信息为准)
生态方面:项目周边环绕约88万㎡凤凰山国家矿山公园、约300万㎡平湖生态园、凤凰山高尔夫球场、雁湖公园、雁田水库等自然生态,亦有鹅公岭社区公园近在咫尺,给予便捷的盎然绿意生活体验。相当于2.6个莲花山公园,拥有约133万㎡生态林,包括秋月广场、芦花湿地、万里碧道等景点。
文体方面:项目还近邻平湖北部新城文化中心(规划中),总建面约3万㎡,含图书馆、文化馆、体验中心。

优点
地理位置
:项目位于平湖地区,交通便利,虽然距离最近地铁站有一定距离,但规划中的地铁线路将进一步提高其交通便捷性。
教育资源
:项目周边有规划中的九年一贯制公立学校,并在内配建幼儿园,提供优质的教育资源。
社区环境
:项目规划了丰富的社区设施,包括有氧体育活动盒子、篮球场、儿童游乐场等,提供了全面的休闲娱乐空间。
开发商信誉
:金光华在深圳房地产市场有28年的开发经验,曾打造多个市场标杆项目,增强了购房者的信心。
缺点
交通便捷性
:虽然规划中有地铁线路,但目前项目周边交通配套有待完善,部分购房者可能对于依赖公共交通的出行方式感到不满。
环境改善
:项目周边仍有一些旧村和工业区,整体环境改善尚需时间,这可能会影响居民的生活质量。
户型设计
:部分户型的开间和面积较小,尤其是三房和四房的设计,可能会让追求大空间的家庭感到不适。
深圳【金光华凤凰九里】楼盘最新详细信息,图文解析
金光华凤凰九里售楼处热线:400-088-3336(售楼中心)
专业热情一对一服务!让您用专业眼光去买房!给您一个温馨满意的家!
欢迎来电咨询〢尊享内部优惠服务〢预约案场内部销售人员〢
免责声明:
1、以上部分图片素材源自网络,如有侵权,请联系我们删除;
2、本广告相关文字、图片以及建筑设计效果图是对项目所做的示意表现,仅供参考,最终标准详见政府相关部门批准文件,经政府批准的详细规划以销售现场公示为准,敬请查看;
3、本广告为要约邀请,买卖双方的权利以及义务以双方签订的合同为准。相关内容如有更新,请以最新资料内容为准。
声明:本文由入驻焦点开放平台的作者撰写,除焦点官方账号外,观点仅代表作者本人,不代表焦点立场。
