拾悦城楠园(深圳拾悦城楠园)首页网站丨拾悦城楠园楼盘详情_房价_户型_详情
扫描到手机,新闻随时看
扫一扫,用手机看文章
更加方便分享给朋友
深圳【拾悦城楠园】
开发商售楼处电话咨询/预约热线:400-088-3336【售楼中心】24小时热线
深圳【拾悦城楠园】售楼处电话:400-088-3336【营销中心】中介勿扰
深圳拾悦城楠园楼盘详情介绍,包含售楼处电话、地址、户型图、小区图片、区位优势、交通、周边商业配套等楼盘详细资料;更详细楼盘资料和最新折扣价格,请拨打售楼处电话,销售会为您详细介绍楼盘。

深圳【拾悦城楠园】售楼处电话:400-088-3336【营销中心】中介勿扰
基础资料
占地面积:3.5万㎡
总建面:23.5万㎡
产权:70年(21-91年)
总户数:2015套,可售1307
面积:86-140㎡3-5房
车位比:2300个;1.18
梯户比:4梯7户
价格:3.9-5.2万
交楼标准:精装
物业公司:万家好物业
物业管理费:4.5元/㎡
容积率:6.66
绿化:40%
交楼时间:2025年12月
建筑类型:住宅
层高:2.9米
使用率:76%
楼层高:48-53层
栋数:8栋
水电:民水民电
学校:宝安中学外国语学校
开发商:深圳市凯德丰投资有限公司
深圳【拾悦城楠园】售楼处电话:400-088-3336【营销中心】中介勿扰
项目地址:宝安区宝安大道11号线沙井站B口/马安山站A口

深圳【拾悦城楠园】售楼处电话:400-088-3336【营销中心】中介勿扰
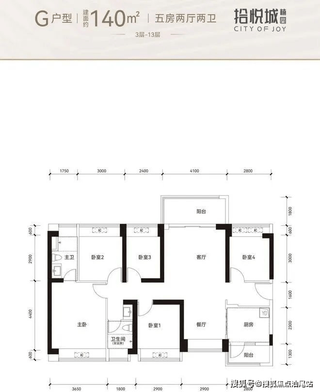
平面•户型图

深圳【拾悦城楠园】售楼处电话:400-088-3336【营销中心】中介勿扰
建面86平米:3房2厅1卫,传统的竖厅动静分区格局;刚需紧凑型三房,功能间都齐全,但是空间有限,典型的‘麻雀虽小,五脏齐全’,一个卫生间不是槽点,市面3房1卫的户型太多,预算有限的情况下这是最好的选择;86平米客厅开间只有3.3米,客厅显得有些局促,三个房间的大小还可以。
缺点:所有房间的飘窗设计的很鸡肋,想睡飘窗都不好利用,主卧还可以理解,两个次卧的飘窗因为承重墙的原因,没有办法和床连在一起,导致可利用空间很有限;86平米的户型只有东北朝向,没有其他的选择。
优点:阳台宽度1.8米,很是开敞,一般阳台宽度都在1.5米左右,阳台一半的面积是赠送。

深圳【拾悦城楠园】售楼处电话:400-088-3336【营销中心】中介勿扰
建面100平米:3房2厅2卫,传统的竖厅户型动静分区;可以看做是86平米户型的加强版,多一个卫生间,户型设计更加合理些;100平米的户型,客厅开间只有3.4米,市面简直少见,小编想问:面积去哪里了?主卧和卧室1面积还算可以,而且这两个卧室的飘窗都比较好利用,但是卧室2的面积和飘窗就得吐槽一下,和86平米的户型很类似。
缺点:客厅的开间太小,100平米的户型,开间只有3.4米;卧室2面积太小,只能做书房,非要做卧室飘窗很不好利用。

深圳【拾悦城楠园】售楼处电话:400-088-3336【营销中心】中介勿扰
【建面107㎡3居】-分布于E座 B座 ,4梯7户,层高3.00米,总楼层48-53F

深圳【拾悦城楠园】售楼处电话:400-088-3336【营销中心】中介勿扰

深圳【拾悦城楠园】售楼处电话:400-088-3336【营销中心】中介勿扰

深圳【拾悦城楠园】售楼处电话:400-088-3336【营销中心】中介勿扰

深圳【拾悦城楠园】售楼处电话:400-088-3336【营销中心】中介勿扰
交通配套
项目距11号线沙井站约700米,5站机场,7站宝安中心(从马安山出发),高效通勤前海、后海、福田,出行更便捷。前往宝中、南山和福田相对缘,到达科技园需要约1小时,自驾走宝安大道、广深公路或京港澳高速,到达宝中和南山需要约四五十分钟。

深圳【拾悦城楠园】售楼处电话:400-088-3336【营销中心】中介勿扰
休闲•生态
下楼即达9.5万方公园 自然更无界
超万平米中央园林搭配9.5万方家门口定岗湖公园,延伸自然边界,在家享满目绿意

深圳【拾悦城楠园】售楼处电话:400-088-3336【营销中心】中介勿扰
教育配套
住在学校旁 目送式教育安全省心
深圳市宝安中学外国语学校(集团)成员学校在旁(建设中),教育资源更优。

深圳【拾悦城楠园】售楼处电话:400-088-3336【营销中心】中介勿扰
深圳【拾悦城楠园】
开发商售楼处电话咨询/预约热线:400-088-3336【售楼中心】24小时热线
深圳【拾悦城楠园】售楼处电话:400-088-3336【营销中心】中介勿扰
深圳拾悦城楠园楼盘详情介绍,包含售楼处电话、地址、户型图、小区图片、区位优势、交通、周边商业配套等楼盘详细资料;更详细楼盘资料和最新折扣价格,请拨打售楼处电话,销售会为您详细介绍楼盘。
免责声明:
以上所发布的关于楼盘相关图文信息仅供您买房前参考,以上所有关于本楼盘的图文资料及说明请以最终以项目批文及双方在楼盘营销中心现场签署的买卖最终合同为准;本图文内容如无意中侵犯到某方权益,请联系我们将会及时处理!
声明:本文由入驻焦点开放平台的作者撰写,除焦点官方账号外,观点仅代表作者本人,不代表焦点立场。
