云海臻府售楼处(云海臻府)售楼中心-云海臻府营销中心欢迎您-楼盘详情-最新价格-户型图-容积率@最新售楼处
扫描到手机,新闻随时看
扫一扫,用手机看文章
更加方便分享给朋友
云海臻府售楼处电话:400-088-3336一对一对接,享受额外优惠!
在售户型图丨项目介绍丨房源丨周边配套丨详细解答
云海臻府开发商售楼处直销_欢迎来电预约享受内部折扣_恭迎品鉴!
温馨提示:看房请提前来电预约,谢谢您的配合!(中介勿扰)
4000883336
云海臻府项目简介 楼盘信息
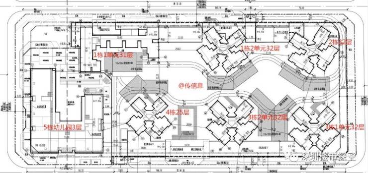
特建发·云海臻府:占地2.96万㎡,总建面16.19万㎡,容积率4.14,4栋住宅,共1448套,其中商品房744套,安居型商品房144套,自持租赁住房560套,停车位1000个,自带商业1100㎡及一所18班幼儿园等配套。
项目名称:云海臻府
用地面积:29633.45平
建筑面积:161979.61平
最大层数:32/2
绿化率:40%
栋数:5栋
住宅面积:109760平
车位:约1000个
总户数:1448户
商品房:744套
自持:560套
安居:144套
位置:沙井街道国际会展中心片区
东南视角
云海臻府应该是海洋新城里目前唯一的可售住宅项目。
所处片区为大空港集中开发区域,区域内新建项目较多,有会展湾中港、会展湾水岸、会展湾东城、商品房社区氛围目前一般,寄望未来迎来统筹规划。
交通配套:云海臻府地块位于宝安区沙井街道展景路一侧,邻近建设中的 12 号线海上田园南站。与海上田园南站直线距离约250米(根据百度地图测量,仅供参考)。未来将可以通过12号线方便通达宝安西乡、南山传统中心区、蛇口自贸区等区域。
目前项目离已通车的地铁站 20 号线(一期)会展城站较近,直线距离约800米(根据百度地图测量,仅供参考)。20号线二期(规划中)将作为一期工程的南延段,联络宝安西乡、南山传统中心区、福田香蜜湖金融中心、福田深港科创合作区等区域。
教育配套:
周边有3块规划教育用地
项目自带幼儿园,目前周边教育资源相对缺乏,目前最近为翻身实验学校西校区,不过项目周边有3快教育规划用地,目前还没目前明确那个学校进驻。
商业配套:项目自带商业,目前周边暂无大型商场,未来或将依赖融创冰雪文旅城和会展湾的相关商业配套。
2021年9月6日晚,中共中央、国务院印发了《全面深化前海深港现代服务业合作区改革开放方案》,文件明确将进一步扩展前海合作区发展空间。以现有前海合作区为基础,扩展至120.56平方公里。
扩容的范围几乎囊括了深圳西部全部沿海片区,按照目前的实际人口来算,此次扩容预计惠及300余万人。
根据规划,海洋新城位于珠江口东岸,深圳大空港规划区西北部,毗邻全球第一大会展中心深圳国际会展中心,规划面积7.44平方公里。
海洋新城效果图
沙井未来有大空港、海洋新城、会展中心的三重利好。实际上,按照最新的深圳城市规划,福海、沙井已经被定位为深圳西部城市级中心。
所处片区为大空港集中开发区域,区域内新建项目较多,有会展湾中港、会展湾水岸、会展湾东城、中熙珑湾花园等,不过项目四周除了和一花园外,基本还被工厂、小产权所包围,商品房社区氛围一般,寄望未来迎来统筹规划。
项目与新国际会展中心中心隔河相望,目前离新国际会展中心最近的在建住宅项目,距离在建地铁12号线和地铁20号线步行约10-15分钟左右,围绕新国际会展中心区域还有云巴、云轨和穗莞深城际等多条快速路通过,未来可享受一定红利。
云海臻府售楼处电话:400-088-3336一对一对接,享受额外优惠!
在售户型图丨项目介绍丨房源丨周边配套丨详细解答
云海臻府开发商售楼处直销_欢迎来电预约享受内部折扣_恭迎品鉴!
温馨提示:看房请提前来电预约,谢谢您的配合!(中介勿扰)
免责声明:部分图片来源网络,如有侵权请联系后台,我们会第一时间删除。本文资料仅为要约邀请,部分图片为示意性图片,一切图文资料、规划设计仅供参考识别或分享交流之用,不构成合同内容,具体内容均以政府最终批准文件及双方签订的买卖合同为准。
声明:本文由入驻焦点开放平台的作者撰写,除焦点官方账号外,观点仅代表作者本人,不代表焦点立场。
