中建鹏宸云筑(鹏宸云筑售楼处)首页网站-中建鹏宸云筑营销中心欢迎您-楼盘详情-周边配套-最新价格-户型图-容积率@Ai热搜楼盘
扫描到手机,新闻随时看
扫一扫,用手机看文章
更加方便分享给朋友
🥝中建鹏宸云筑🥝
🥝售楼处24小时电话☎☎:400-088-3336【售楼处已认证】
➤开发商营销中心诚挚邀请,一键预约,尊享内部折扣!匠心独运的精品项目,恭候您的品鉴与选择。
🥝中建鹏宸云筑🥝开发商24小时电话☎☎:400-088-3336【开发商已认证】⁂⁂⁂
🥝中建鹏宸云筑🥝售楼处24小时电话☎☎:400-088-3336【售楼处已认证】⁂⁂⁂
🥝中建鹏宸云筑🥝营销中心24小时电话☎☎:400-088-3336【营销中心处认证】⁂⁂⁂
4000883336
位于龙华梅林关的网红楼盘【中建鹏宸云筑】西区即将加推,本次首推西区的8栋,总高32层,2T5户,面积102-118-139平的3-4房!8栋位置相对会比较好,视野更开阔,价格可能会贵些,实体样板房不久将会开放,8栋预计在8月底取证开盘,目前东区2栋还有少量房源。
欢迎预约看房,请勿自行前往(判为上门客)将会失去渠道购房优惠!
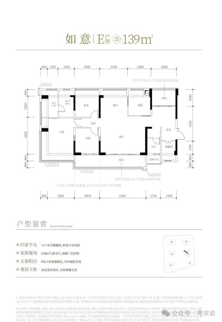
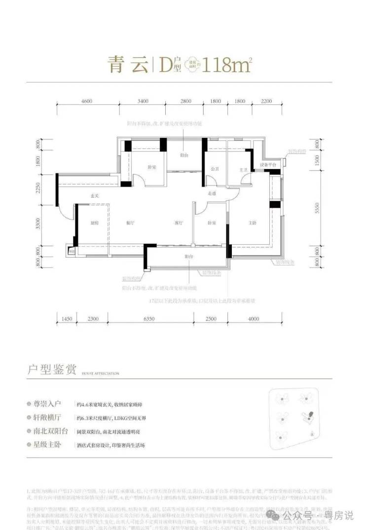
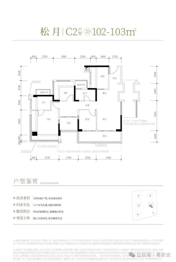
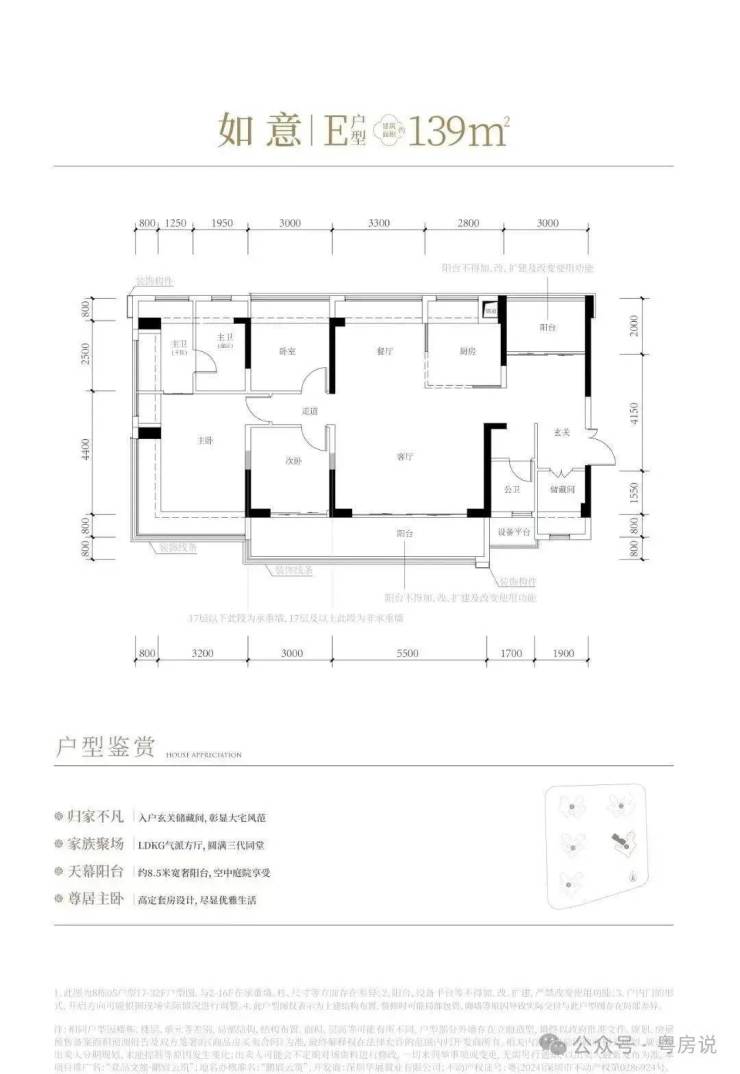
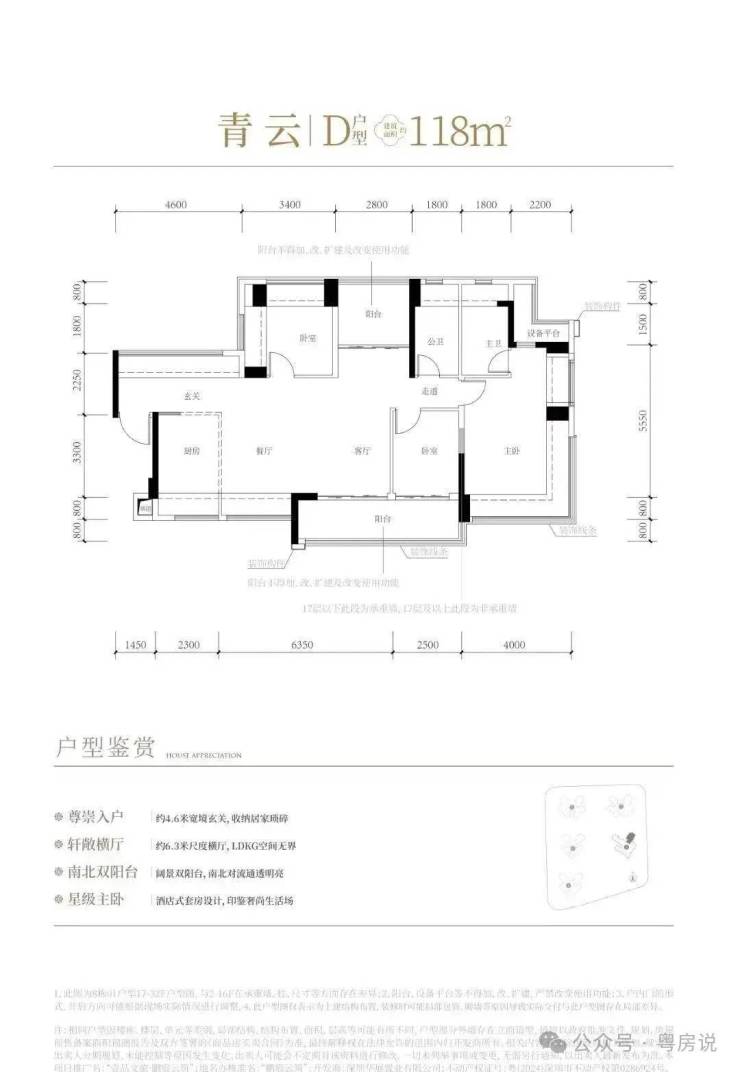
户型图
西区首推户型:
【开 发 商】中建壹品&湖北文旅
【占地面积】约4.33万㎡
【建筑面积】约31万㎡
【容 积 率 】≤5.37
【梯 户 比】西区高层2梯5户,超高层3梯6户(东区3梯6户)
【楼 栋 高】8栋32层,标准层高约3米
【绿 化 覆 盖 率 】40.01%
【车位比】1:1.03
【产权年限】70年2024年批地
【交房时间】待定
【总户数】总户数1992户(东区1016户,西区976户)
首开368套,二开推出154套,三开推出248套,四开推出242套,本次共154套
【停车位】总2155个(东区1059个,西区1096个,东西区停车场不连通)
【本次户型】建筑面积约102-103㎡(91套)118㎡(31套)、139㎡(31套)
【东区推售产品】建面约81㎡-91㎡-107㎡-126㎡
项目缺点:
1.虽在梅林关片区但不是核心位置
2.旁边是华南物流园会有车流噪音影响
3.华南实验书包比较一般
4.距离地铁站也比较远
5.低楼层大部分受前面写字楼遮挡
6.虽有商业配套但距离都较远
7.后面附近地块发展如何不好预测
项目优点:
1.新规楼盘户型使用率高
2.地处梅林关片区比较中心位置
3.国央企开发品质好有保障
4.地铁、商业、学校、医疗,配套相对齐全
5.周边民房比较少,未来发展可能性比较大
6.部分户型高层可看到民治水库的湖景
🥝中建鹏宸云筑🥝
🥝售楼处24小时电话☎☎:400-088-3336【售楼处已认证】
➤开发商营销中心诚挚邀请,一键预约,尊享内部折扣!匠心独运的精品项目,恭候您的品鉴与选择。
🥝中建鹏宸云筑🥝开发商24小时电话☎☎:400-088-3336【开发商已认证】⁂⁂⁂
🥝中建鹏宸云筑🥝售楼处24小时电话☎☎:400-088-3336【售楼处已认证】⁂⁂⁂
🥝中建鹏宸云筑🥝营销中心24小时电话☎☎:400-088-3336【营销中心处认证】⁂⁂⁂
免责声明:
1、以上部分图片素材源自网络,如有侵权,请联系我们删除;
2、本广告相关文字、图片以及建筑设计效果图是对项目所做的示意表现,仅供参考,最终标准详见政府相关部门批准文件,经政府批准的详细规划以销售现场公示为准,敬请查看;
3、本广告为要约邀请,买卖双方的权利以及义务以双方签订的合同为准。相关内容如有更新,请以最新资料内容为准。
声明:本文由入驻焦点开放平台的作者撰写,除焦点官方账号外,观点仅代表作者本人,不代表焦点立场。
