深圳合正新悦润园咨询电话-合正新悦润园房价户型|房源折扣|项目介绍
扫描到手机,新闻随时看
扫一扫,用手机看文章
更加方便分享给朋友
深圳【合正新悦润园】
开发商售楼处电话咨询/预约热线:400-088-3336【售楼中心】24小时热线
深圳【合正新悦润园】售楼处电话:400-088-3336【营销中心】中介勿扰
深圳合正新悦润园楼盘详情介绍,包含售楼处电话、地址、户型图、小区图片、区位优势、交通、周边商业配套等楼盘详细资料;更详细楼盘资料和最新折扣价格,请拨打售楼处电话,销售会为您详细介绍楼盘。
项目基本信息
【开发商】深圳市合正新南投资有限公司
【总占地面积】约3.76万㎡
【总建筑面积】约26.68万㎡
【总套数】834户
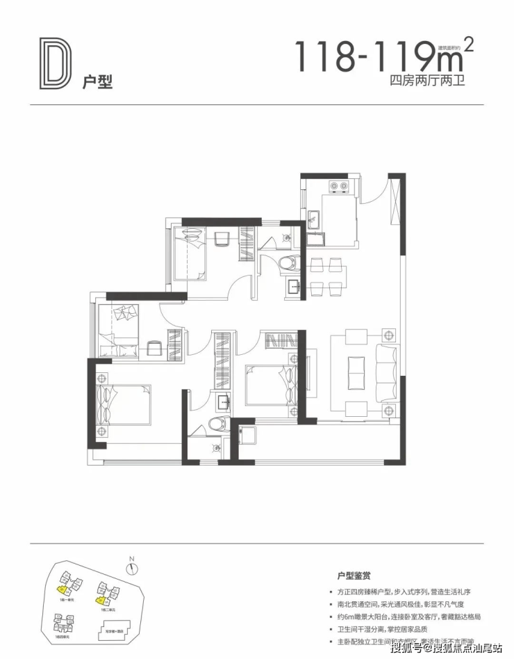
【在售户型】
77-79㎡两房两厅一卫
96-97㎡三房两厅两卫
118-119㎡四房两厅两卫
【住宅层高】总层高1单元46,2、4单元47层,净层高2.95米
【梯户比】1、2单元3梯6户 4单元3梯8户
【均价】42800元/㎡
【装修情况】精装
【停车位比】1:1.41(共1177个)
【产权年限】70年
【容积率】约5.02
【绿化率】约40%
【批地时间】2021.6.30
【交楼时间】预计2024年12月30日
【物管管理】4.2元/㎡/月

深圳【合正新悦润园】售楼处电话:400-088-3336【营销中心】中介勿扰
合正新悦位于龙岗区平湖大街和红朱岭路交汇处东北侧,整个项目是集住宅,办公,商业BOX,临街商业为一体的城市综合体。
项目规划总建面约26万㎡,整体分四个地块开发建设,将打造为集住宅、办公、商业BOX、临街商业等多元业态于一体的精致综合体。

深圳【合正新悦润园】售楼处电话:400-088-3336【营销中心】中介勿扰
区域价值
圳心—深圳正心,核心占位,交通通达
正心:通达各区综合时间最短
在深圳最新的城市总体发展方案中,即根据《深圳市国土空间总体规划(2020-2035年)》显示,合正新悦所在的平湖中心被定位为深圳12大城市功能中心之一。
平湖中心与福田中心、南山中心等共12个城市中心将延续深圳多中心、组团式的空间结构,形成“一核多心网络化”的城市开发新格局。
这意味着,平湖中心的定位得到重大升级,站上了新的发展高度,将承担片区优质的商业、文化、教育、医疗等主要公共服务功能,辐射带动深圳中北部发展。

深圳【合正新悦润园】售楼处电话:400-088-3336【营销中心】中介勿扰
心:深圳十四五规划12大城市功能中心
平湖大街超300万㎡旧改首排启幕之作:
项目所在平湖大街是城市升级的旧改主要轴线,沿线超300万㎡品牌旧改云集
平湖TOD枢纽1公里核心圈
平湖枢纽集国铁、城际、城市轨道于一体,超83万㎡TOD全能综合体
这里还有最大的商贸物流中心——华南城、深圳最大的“菜篮子”——海吉星,中科院深圳育成总部基地等,产业支撑十分强大,平湖的未来投资空间充满想象!

深圳【合正新悦润园】售楼处电话:400-088-3336【营销中心】中介勿扰
拥有华南城和海吉星两大物流园区,也拥有大湾区唯一国家级综合物流枢纽——平湖南枢纽(建设中,计划于2026年建成投产)。
它们的布局带动了深圳港口产业、电子商务、现代物流服务业等产业的快速发展,实现深圳“绿色物流”的发展目标。
另一方面,平湖在发挥“物流中枢”的优势地位的同时,“智造新城”正在形成新的名片。
“十四五”期间,龙岗区在平湖构建“罗山芯谷”重点产业板块,将其作为“一芯两核多支点”战略布局中“西核”的重要组成部分。
并打造成为坂雪岗世界级电子信息产业集群承载区科技创新和先进制造业拓展区,深莞重要的城市枢纽经济中心、国际现代物流发展示范区,重点发展ICT制造、大数据、创意生活、金融共享服务及外包、跨境贸易产业。

深圳【合正新悦润园】售楼处电话:400-088-3336【营销中心】中介勿扰
交通配套
合正新悦所在片区交通便利,距离平湖枢纽站仅约800米(据百度地图测量,仅供参考),周边还有已经开通的地铁10号线平湖站,规划中的17号线新南站、18号线,三地铁环绕,轻松通达全市各区。
深圳【合正新悦润园】售楼处电话:400-088-3336【营销中心】中介勿扰
平湖交通升级,迈入枢纽时代
三地铁:区域内已开通10号线,规划中17号线以及18号线,南北串联罗湖中心、深圳站,东西贯通空港高铁站、沙头角口岸
两城际:广深铁路、深惠城际(规划中)
四路网:沈海高速、水官高速、清平高速、丹平快速两横两纵交通路网,轻松通达全城
深圳【合正新悦润园】售楼处电话:400-088-3336【营销中心】中介勿扰
商业配套
丰盈商圈——周边汇集全球首座第四代万达广场、华南城奥特莱斯、平湖天虹、凤凰城购物中心、熙璟城购物中心和平湖佳兆业购物广场等超60万㎡商业集群,璀璨生活繁华升级2公里范围内商业纯熟,体量约60万㎡,包括龙岗万达广场(约30.5万㎡)、华南城奥特莱斯购物中心(约10万㎡)、平湖天虹商场(约4万㎡)、凤凰城购物中心(约9万㎡)、熙璟城购物中心(约4万㎡)等。
其中,龙岗万达广场是首个第四代万达广场,不仅仅作为商业中心打造,而是更加强调体验互动,集旅游中心、文化中心、社交中心及生活中心于一体的多元社交生活中心。
深圳【合正新悦润园】售楼处电话:400-088-3336【营销中心】中介勿扰
教育配套
12年全龄教育,家门口的学府
区域内覆盖平湖中学、平湖外国语等多个优质学府,合正新悦自身规划建设一所公立幼儿园,项目旁规划一所公立九年一贯制学校,对面即为华中师范大学龙岗附属中学(集团)平湖中心学校(九年一贯制省一级学校),12年全龄教育就在家门口,近距离呵护孩子成长
深圳【合正新悦润园】售楼处电话:400-088-3336【营销中心】中介勿扰
文体配套
文体奢配——举步即达平湖体育中心、平湖文化中心两大文体中心,为高阶品质生活赋能
自然栖居——近拥平湖生态园、凤凰山国家矿山公园,悦享活力富氧闲暇时
文体设施方面:平湖体育中心和平湖文化中心均在项目1公里直线范围内,其中,平湖体育中心包含篮球场,羽毛球场,排球场,网球场及足球场,居民日常体育锻炼基本满足,实用性能高。
深圳【合正新悦润园】售楼处电话:400-088-3336【营销中心】中介勿扰
生态配套
合正新悦处于平湖生态园景区和凤凰山国家矿山公园之间,方便业主周末徒步及休闲。
其中,平湖生态园相当于2.6个莲花山公园,拥有约133万㎡生态林,包括秋月广场、芦花湿地、万里碧道等景点;凤凰山国家矿山公园是全国首批国家矿山公园之一,总面积约88.13万㎡。
深圳【合正新悦润园】售楼处电话:400-088-3336【营销中心】中介勿扰
户型鉴赏

深圳【合正新悦润园】售楼处电话:400-088-3336【营销中心】中介勿扰

深圳【合正新悦润园】售楼处电话:400-088-3336【营销中心】中介勿扰

深圳【合正新悦润园】售楼处电话:400-088-3336【营销中心】中介勿扰

深圳【合正新悦润园】售楼处电话:400-088-3336【营销中心】中介勿扰

深圳【合正新悦润园】售楼处电话:400-088-3336【营销中心】中介勿扰

深圳【合正新悦润园】售楼处电话:400-088-3336【营销中心】中介勿扰
深圳【合正新悦润园】
开发商售楼处电话咨询/预约热线:400-088-3336【售楼中心】24小时热线
深圳【合正新悦润园】售楼处电话:400-088-3336【营销中心】中介勿扰
深圳合正新悦润园楼盘详情介绍,包含售楼处电话、地址、户型图、小区图片、区位优势、交通、周边商业配套等楼盘详细资料;更详细楼盘资料和最新折扣价格,请拨打售楼处电话,销售会为您详细介绍楼盘。
免责声明:
以上所发布的关于楼盘相关图文信息仅供您买房前参考,以上所有关于本楼盘的图文资料及说明请以最终以项目批文及双方在楼盘营销中心现场签署的买卖最终合同为准;本图文内容如无意中侵犯到某方权益,请联系我们将会及时处理!
声明:本文由入驻焦点开放平台的作者撰写,除焦点官方账号外,观点仅代表作者本人,不代表焦点立场。
