深圳南山丹华公馆售楼处电话→楼盘百科→首页网站详情→24小时热线电话
扫描到手机,新闻随时看
扫一扫,用手机看文章
更加方便分享给朋友
————深圳丹华公馆售楼中心————
深圳丹华公馆售楼处电话: 400 088 3336 预约来访下定当天更享折上折!!
开发商售楼中心直销〢欢迎来电咨询〢安全通话隐藏真实号码
温馨提示:开发商售楼中心团购〢预约可享内部优惠〢匠心钜制-恭迎品鉴〢
南山丹华公馆售楼中心热线: 400 088 3336(官方)【VIP贵宾专线】

开发商背景
桑泰集团 进化美好人居
桑泰集团22载人本关照 根植品质 进化美好人居,截至目前已开发超 200 万㎡面积


项目基本信息
【总占地】约40346.08㎡
【总建面】约319013.64㎡
【绿化率】30%
【均价】6.7w起
【产品面积】约58-101㎡
【层高】58㎡层高3.9米,101㎡层高2.95米
【产权年限】70年(2017年12月22日至2087年12月21日)
【物业费】5.9元/㎡*月
【发展商】深圳市桑泰房地产开发有限公司
【物业公司】深圳市厚德物业服务有限公司
区域价值
大沙河创新走廊 价值高地
大沙河创新走廊核心位置,西丽高铁新城/留仙洞战略性新兴产业总部基地/西丽湖国际教科城三大未来引擎助力未来发展
西丽高铁新城 湾区枢纽门户
西丽高铁新城规模超北站,辐射全国,未来超2000万客流,湾区综合枢纽坐享价值腾飞
南山科创下一个十年
深圳六大总部基地之一,大疆创新、乐普医疗等优秀总部聚集,60万+高端就业/10万+素质人才聚居
交通配套
1小时湾区生活圈 通勤无忧
紧邻西丽高铁站,4高铁+2城际1小时捷达湾区生活圈,6地铁(5号/7号/13号(在建)/15号(在建)/27号(规划)/29号(规划))通达全城

教育配套
优质教育环伺 坐享全龄教育
出家门进校门,目送式教育,自带18班幼儿园,深中南山创新学校等优质学校聚集,书香环伺
商业配套
紧邻绿肺公园 无忧商业配套
0距离西丽生态公园,拥享城央自留绿肺,创智云城/益田假日里广场/万科里等超20万㎡无忧商业配套
文体配套
西丽湖国际科教城,智集清华、北大等18所顶尖高校,深圳智脑造就书香起点
生态配套
项目紧邻西丽生态公园,开车10分钟左右可达西丽湖。塘朗山,大沙河生态长廊

项目优势:
1.地理位置好,位于南山西丽板块,整个板块全是写字楼,加万科云城公寓,整体的城市界面次新,路段干净整洁,没有城中村,加上背靠公园,适合一些年轻人自住。
2.总价低,上车轻松,虽说小户型,但功能性应有尽有。
3.同等总价,横向对比沙井,光明,龙岗的三房,可以获得更好的地段,顺带吃一下留仙洞这块饼,也还行。
4.项目距西丽综合枢纽站约2KM,未来距离15号线最近,大概400m,周边还有几条地铁,步行距离较远,很适合南山搬砖的刚需们。
项目劣势:
1.超大盘,容积率高,梯户比4梯12户/4梯7户,类似酒店公寓式的走廊过道。
2.车位比不足1:1。
3.目前距离5号线地铁口较远,等15号线开通还有较长的时间。
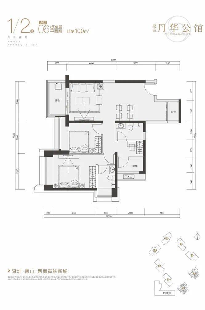
户型鉴赏
约58-101㎡户型;
户型解读
户型主要考虑房间数量,空间和布局合理性等因素(优先考虑面向刚需的小3房户型)。丹华公馆有101平的标准3房,但价格不属于刚需了。所以这里按58平的看,58平做成3室或4室,真是挺让人开眼的。官方说层高3.9米,去掉一些楼层中间的高度,估计有效层高还得少一些,可能只有3.7米多,做成复式,还是比较让人难以接受的。一般正常的复式要达到5米。那3.7米给下面2米2的话,上面最多1米5。很难称为一个房间,说是上铺可能更合适。
4梯12户,36层,房子小楼道里多个门口可能会放鞋柜或婴儿车。高峰期做电梯估计要等不少时间。
————深圳丹华公馆售楼中心————
深圳丹华公馆售楼处电话: 400 088 3336 预约来访下定当天更享折上折!!
开发商售楼中心直销〢欢迎来电咨询〢安全通话隐藏真实号码
温馨提示:开发商售楼中心团购〢预约可享内部优惠〢匠心钜制-恭迎品鉴〢
南山丹华公馆售楼中心热线: 400 088 3336(官方)【VIP贵宾专线】
免责声明:
以上所发布的关于楼盘相关图文信息仅供您买房前参考,以上所有关于本楼盘的图文资料及说明请以最终以项目批文及双方在楼盘营销中心现场签署的买卖最终合同为准;本图文内容如无意中侵犯到某方权益,请联系我们将会及时处理。
声明:本文由入驻焦点开放平台的作者撰写,除焦点官方账号外,观点仅代表作者本人,不代表焦点立场。
