深圳翰熙典居售楼处电话_翰熙典居交房时间/最新房价|户型|学校|地铁
扫描到手机,新闻随时看
扫一扫,用手机看文章
更加方便分享给朋友
深圳【翰熙典居】
开发商售楼处电话咨询/预约热线:400-088-3336【售楼中心】24小时热线
深圳【翰熙典居】售楼处电话:400-088-3336【营销中心】中介勿扰
深圳翰熙典居楼盘详情介绍,包含售楼处电话、地址、户型图、小区图片、区位优势、交通、周边商业配套等楼盘详细资料;更详细楼盘资料和最新折扣价格,请拨打售楼处电话,销售会为您详细介绍楼盘。
项目基础信息
【项目名称】翰熙典居
【占地面积】约4.16万/㎡
【建筑面积】约50.57万/㎡
【推售产品】约105-140㎡3-4房
【交付标准】精装 【交房时间】2028年3月
【产权年限】70年
【房产性质】住宅
【总户数】3030户,其中可售商品房714套
【楼层高】43-55层
【车位比】2600个
【容积率】8.62
【绿化率】35%
【梯户比】3梯5户
【管理费】6.5元/㎡
【开发商】深圳市冠凯投资有限公司(阳光华艺集团)
翰熙典居,位于深圳南山区粤海街道桂庙新村原址,东临白石路,西接南海大道,北靠深圳大学,南邻腾讯滨海大厦等科技总部,直线距离腾讯仅1公里,片区所在的粤海街道被誉为“深圳最牛街道”,是南山粤海板块唯一在售的新盘,原是桂庙新村城市更新单元,9/15号地铁线“深大南站”就在家楼下,有学府一小+学府中学加持,步行800多米到海岸城高端商业区。
项目由阳光华艺集团打造,共由8栋总高43-55层高的高端住宅组成,其中1栋1/2单元住宅55F,1栋3单元保障房43F,2栋1单元住宅53F,2栋3单元住宅51F,2栋4单元住宅53F,3栋1单元住宅52F,3栋2单元住宅53F,另外配建有2栋总高26-35层高的写字楼+酒店,4栋是1所幼儿园,总规划3030户,其中可售商品房仅714套,回迁房1525套,保障房791套。

深圳【翰熙典居】售楼处电话:400-088-3336【营销中心】中介勿扰
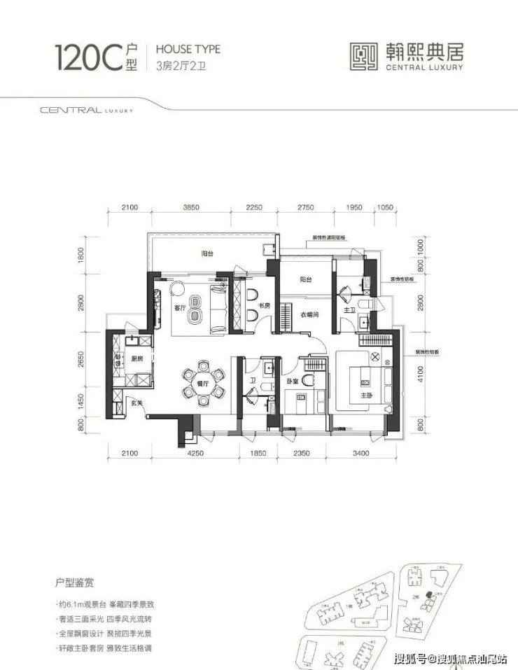
产品户型图 :
总平面图

深圳【翰熙典居】售楼处电话:400-088-3336【营销中心】中介勿扰

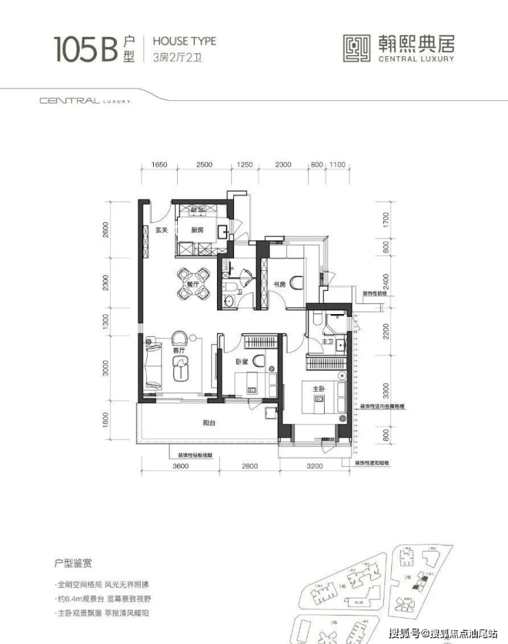
105㎡的3房2厅2卫,A1户型(2栋3单元03户型),设计的是竖厅类双龙抱珠格局,客厅3.6米开间,3个卧室分别做到了主卧12.8㎡/次卧12㎡/次卧8.7㎡(包含墙体飘窗),客厅连接次卧出6.5米长的宽景大阳台,得房率约90%(包含赠送),东南朝向。

深圳【翰熙典居】售楼处电话:400-088-3336【营销中心】中介勿扰
105㎡的3房2厅2卫,A2户型(2栋4单元/3栋2单元03户型),设计的是竖厅类双龙抱珠格局,客厅3.6米开间,,3个卧室分别做到了主卧12.8㎡/次卧12㎡/次卧8.7㎡(包含墙体飘窗),客厅连接次卧出6.5米长的宽景大阳台,得房率约90%(包含赠送),正南朝向

深圳【翰熙典居】售楼处电话:400-088-3336【营销中心】中介勿扰
105㎡的3房2厅2卫,B户型(2栋3单元02/06户型),设计的是经典竖厅格局,客厅3.6米开间,三开间朝南,3个卧室分别做到了主卧13.12㎡/次卧9.9㎡/次卧8.4㎡(包含墙体飘窗),客厅连接次卧出6.4米长的宽景大阳台,得房率约90%(包含赠送),正南或东南朝向。

深圳【翰熙典居】售楼处电话:400-088-3336【营销中心】中介勿扰
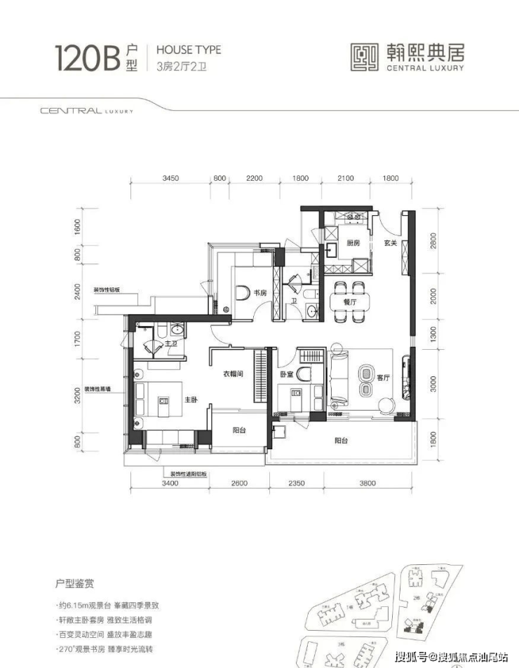
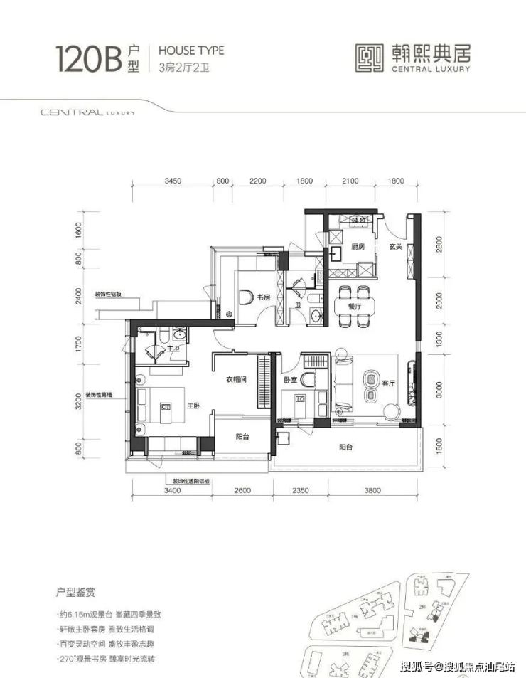
120㎡的3房2厅2卫可改四房,B户型(2栋4单元01.02.05/3栋2单元02/05户型),设计的是经典竖厅格局,客厅3.8米开间,3个卧室分别做到了主卧28.6㎡/次卧9.6㎡/次卧7.05㎡(包含墙体飘窗),客厅连接次卧出6.15米长的宽景大阳台,得房率约90%(包含赠送),东南或正东朝向

深圳【翰熙典居】售楼处电话:400-088-3336【营销中心】中介勿扰
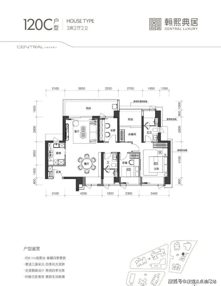
120㎡的4房2厅2卫,C户型(2栋3单元01户型),设计的是竖厅格局,客厅3.85米开间,4个卧室分别做到了主卧16.65㎡/次卧9.9㎡/次卧9.16㎡/次卧6.3㎡(包含墙体飘窗),客厅连接次卧出6.1米长的宽景大阳台,得房率约90%(包含赠送),西北朝向。

深圳【翰熙典居】售楼处电话:400-088-3336【营销中心】中介勿扰
140㎡的4房2厅2卫(2栋4单元06户型),设计的是横厅南北通透格局,进门入户玄关,客餐厅7.2米开间,四开间朝南,4个卧室分别做到了主卧19.08㎡/次卧14.3㎡/次卧11.7㎡/次卧11.7㎡(包含墙体飘窗),客厅连接次卧出6.8米长的观景大阳台看深大校区,得房率约90%(包含赠送),阳台主朝西南向。
深圳【翰熙典居】售楼处电话:400-088-3336【营销中心】中介勿扰
交通配套
项目家楼下就是9/15号地铁线交汇站“深大南站”,在建15号线(科技环线)将串联前海、西丽枢纽等核心节点,20分钟直达深圳湾超级总部基地,项目配建2900㎡公交首末站,强化片区接驳能力,毗邻南海大道跟滨海大道,快速连接福田,宝安等区域。

深圳【翰熙典居】售楼处电话:400-088-3336【营销中心】中介勿扰
教育配套
项目自带有1所幼儿园,根据南山区教育局2024年最新的学区划分,小学学区划分在南山区第二外国语学校(集团)学府一小(距离约430米,步行7分钟),初中学区划分在南山区第二外国语学校(集团)学府中学(距离约1.4公里,步行约22分钟)。

深圳【翰熙典居】售楼处电话:400-088-3336【营销中心】中介勿扰
商业配套
项目自身规划商业、办公及酒店业态,总建面约10.65万㎡,海岸城仅相隔800多米,两公里不到的地方有保利文化广场,茂业百货大厦、海雅百货等大型商超,日常购物娱乐皆能满足。
深圳【翰熙典居】
开发商售楼处电话咨询/预约热线:400-088-3336【售楼中心】24小时热线
深圳【翰熙典居】售楼处电话:400-088-3336【营销中心】中介勿扰
深圳翰熙典居楼盘详情介绍,包含售楼处电话、地址、户型图、小区图片、区位优势、交通、周边商业配套等楼盘详细资料;更详细楼盘资料和最新折扣价格,请拨打售楼处电话,销售会为您详细介绍楼盘。
免责声明:
以上所发布的关于楼盘相关图文信息仅供您买房前参考,以上所有关于本楼盘的图文资料及说明请以最终以项目批文及双方在楼盘营销中心现场签署的买卖最终合同为准;本图文内容如无意中侵犯到某方权益,请联系我们将会及时处理!
声明:本文由入驻焦点开放平台的作者撰写,除焦点官方账号外,观点仅代表作者本人,不代表焦点立场。
