深圳开云府(开云府)开云府房价优惠信息 | 楼盘详情/地铁/学校/户型图/配套
扫描到手机,新闻随时看
扫一扫,用手机看文章
更加方便分享给朋友
深圳【开云府】
开发商售楼处电话咨询/预约热线:400-088-3336【售楼中心】24小时热线
深圳【开云府】售楼处电话:400-088-3336【营销中心】中介勿扰
深圳开云府楼盘详情介绍,包含售楼处电话、地址、户型图、小区图片、区位优势、交通、周边商业配套等楼盘详细资料;更详细楼盘资料和最新折扣价格,请拨打售楼处电话,销售会为您详细介绍楼盘。
项目基本信息
开发商:中国南山开发(集团)有限公司
物业公司:赤湾物业
总占地面积:约1.1万㎡
总建筑面积:约7.5㎡
容积率:约4.5
绿化率:40%
栋数:1栋和8栋
总户数:总户数380户
总层高:45F
梯户比:2-30层5梯5户、31-45层4梯4户(1梯1户最大的卖点)
车位:330个
物业费:7.28元/㎡·月
产权:70年
房产性质:住宅
交楼时间:2025年10月
交楼标准:精装修
面积:113-167㎡3-5房
户型介绍:
半岛擎峯二期」户型为124-129-133㎡三房二卫和203㎡大四房三房,除了最小的124㎡其他都是多阳台设计。纵使这个三房的尺度感比如今市面上很多刚需三房二卫要宽敞不少,但整体来看使用率确实不高。

深圳【开云府】售楼处电话:400-088-3336【营销中心】中介勿扰
129㎡三房二卫A1:
A1有两条腿,分别1-1栋01/02,主朝向是西北向,双龙抱珠格局。
舒适大三房设计主卧都享有270度采光面,整体空间尺度感大且采光面充足,视野非常宽阔。
深圳【开云府】售楼处电话:400-088-3336【营销中心】中介勿扰
129㎡三房二卫A2:
A2有两条腿,分别1-1栋03/06,主朝向是东南向,双龙抱珠格局。这个户型是超阔大阳台,朝向优于A1,但公卫是个暗卫。
深圳【开云府】售楼处电话:400-088-3336【营销中心】中介勿扰
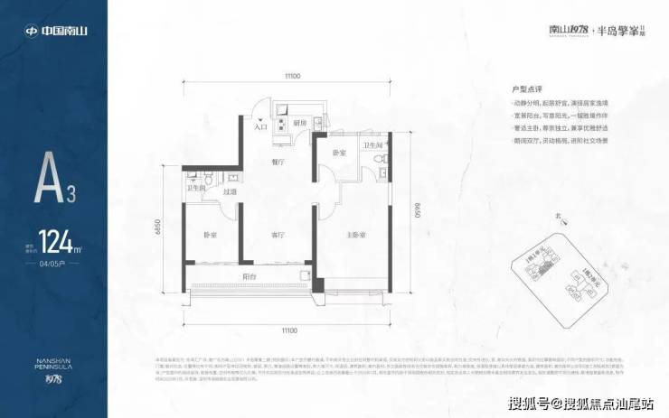
124㎡三房二卫A3:
A3也是两条腿,分别是1-1栋04/05,主朝向是东南向,双龙抱珠格局。客厅拥有超大观景阳台,缺点是公卫是个暗卫,小次卧和主卫也对天井外走廊,采光不足。
深圳【开云府】售楼处电话:400-088-3336【营销中心】中介勿扰
203㎡四房三卫B1:
位于1-2栋两条腿,设有电梯厅入户空间,隐私性拉满,这个空间约有面积6.27㎡,空间也可以很好利用。
整个户型设计是四房三卫南北通透,约有7.4米大阳台。双套房设置且270°景观面,主卧带独立衣帽间和大浴缸。
深圳【开云府】售楼处电话:400-088-3336【营销中心】中介勿扰
133㎡三房二卫B2:
B2有两条腿,分别1-2栋03/04,主朝向西南向,竖厅设计。
这个户型的所有卧室空间都比较平均,主卧两面采光,综合来看是个很完整的传统三房户型。
深圳【开云府】售楼处电话:400-088-3336【营销中心】中介勿扰
基础配套:
交通
2号和5号线交汇站赤湾站上旁边盖,交通便利可乘坐5号线和2号线迅速到达前海宝中及蛇口、深圳湾深超总等核心片区。
拥有2号线/5号线/12号线三条地铁加持,交通路网四通八达。这里到南山核心各个区域都很近,1站可达太子湾,2站抵达前海和海上世界。

深圳【开云府】售楼处电话:400-088-3336【营销中心】中介勿扰
教育配套
4所幼儿园、南二外赤湾学校,周边还有九年一贯制学校(规划中)、北师大南山附属高中新校区、南山中英文学校、深圳贝赛思国际学校、深美国际学校等教育资源。

深圳【开云府】售楼处电话:400-088-3336【营销中心】中介勿扰
商业配套
自带约4.2万㎡商业(在建中),将引进知名运营商统一运营。地铁1站直达太子湾,享受K11 ECOAST、兰桂坊(在建中),2站海上世界,链接蛇口、前海高端商业。约6公里范围内华润万象前海、前海山姆会员店、卓悦Intown、蛇口沃尔玛、招商花园城、海岸城、宝能太古城、来福士广场等多个大型商超。

深圳【开云府】售楼处电话:400-088-3336【营销中心】中介勿扰
三山为庭:大南山,负氧离子浓度高达5000/cm³,与小南山、赤湾山三山林立,城市绿肺环抱,轻松鲜活富氧呼吸。
一海为院:伶仃洋天然在侧,黄金海岸线前沿占位,感受妈祖文化、见证郑和下西洋的远航足迹。
七园为邻:约2公里范围内,有大南山公园、小南山公园、文天祥纪念公园、华英路景观公园、赤湾公园、兴海公园、月亮湾公园等公园环伺。
人文沉淀:项目周边遍布历史遗迹,有文天祥纪念公园、天后宫、赤湾烟墩、左炮台等,见证宋明清三个时代的历史印记。

深圳【开云府】售楼处电话:400-088-3336【营销中心】中介勿扰
深圳【开云府】
开发商售楼处电话咨询/预约热线:400-088-3336【售楼中心】24小时热线
深圳【开云府】售楼处电话:400-088-3336【营销中心】中介勿扰
深圳开云府楼盘详情介绍,包含售楼处电话、地址、户型图、小区图片、区位优势、交通、周边商业配套等楼盘详细资料;更详细楼盘资料和最新折扣价格,请拨打售楼处电话,销售会为您详细介绍楼盘。
免责声明:
以上所发布的关于楼盘相关图文信息仅供您买房前参考,以上所有关于本楼盘的图文资料及说明请以最终以项目批文及双方在楼盘营销中心现场签署的买卖最终合同为准;本图文内容如无意中侵犯到某方权益,请联系我们将会及时处理!
声明:本文由入驻焦点开放平台的作者撰写,除焦点官方账号外,观点仅代表作者本人,不代表焦点立场。
