宝安【玖玖颂阁】售楼处电话—百科详情【24H预约热线】—实时动态--最新价格-户型图-容积率@营销中心
扫描到手机,新闻随时看
扫一扫,用手机看文章
更加方便分享给朋友
【玖玖颂阁】售楼处预约热线:售楼中心电话:400-088-3336【已认证】✨✨√√√【24小时预约热线】
【玖玖颂阁】售楼处电话400-088-3336(一对一热情服务)来电可享受优惠
【玖玖颂阁】丨楼盘详情丨价格丨更多优惠丨机不可失丨欢迎致电丨诚邀品鉴
【玖玖颂阁】售楼处电话丨营销中心位置丨特价房丨工抵房丨剩余房源丨户型图丨最新消息!!!温馨提示:看房需提前预约,感谢您的配合!
一、项目概述
玖玖颂阁,由深圳市俊弘星实业有限公司匠心打造,项目占地约1.4万㎡,总建面达到10.41万㎡。这里拥有667户精致住宅,面积区间涵盖84㎡至133㎡,满足不同家庭的居住需求。项目以现代简约风格设计,搭配高品质的精装修,为业主打造一个温馨舒适的家居环境。同时,项目配备有充足的停车位,车位比达到1:1.12,确保每位业主的停车需求。
二、周边配套
交通配套:北环大道、G107国道、宝安大道环绕,自驾出行便捷,可达福田、南山、宝安中心区。毗邻双地铁,距今年将开通的12号线(上川站)500米,距规划中15号线(流塘站)700米。
教育配套:家门口双学校,楼下步行可达弘雅小学和文汇中学,均为省一级学校,历史悠久,教育质量优良。
商业配套:周边有全市最密集的商圈,包括壹方城、海雅缤纷城等高端购物中心,驱车10分钟即可到达。楼下还有天虹、沃尔玛等超市,满足日常购物需求。
生态配套:项目周边配备13大公园,如宝安公园、流塘公园等,距离宝安公园直线距离1.5公里,距离流塘公园直线距离607米,宜居属性高。
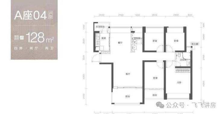
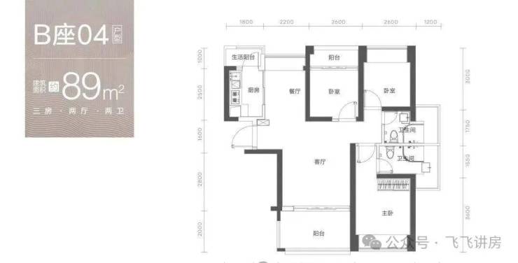
三、户型鉴赏
项目提供多种户型选择,包括89㎡的三房一卫/两卫和128-133㎡的四房两卫。户型设计合理,空间利用率高,满足不同家庭的需求。
五、总结
玖玖颂阁以其卓越的地理位置、丰富的教育资源、齐全的商业配套、优美的生态环境以及合理的户型设计,成为了都市生活中的一道亮丽风景线。在这里,你可以享受到都市的繁华与便利,同时也能感受到家的温馨与舒适。如果你正在寻找一个既能满足居住需求,又能提升生活品质的居所,那么玖玖颂阁无疑是一个值得考虑的选择。
【玖玖颂阁】售楼处预约热线:售楼中心电话:400-088-3336【已认证】✨✨√√√【24小时预约热线】
【玖玖颂阁】售楼处电话400-088-3336(一对一热情服务)来电可享受优惠
【玖玖颂阁】丨楼盘详情丨价格丨更多优惠丨机不可失丨欢迎致电丨诚邀品鉴
【玖玖颂阁】售楼处电话丨营销中心位置丨特价房丨工抵房丨剩余房源丨户型图丨最新消息!!!温馨提示:看房需提前预约,感谢您的配合!
免责声明:部分图片来源网络,如有侵权请联系后台,我们会第一时间删除。本文资料仅为要约邀请,部分图片为示意性图片,一切图文资料、规划设计仅供参考识别或分享交流之用,不构成合同内容,具体内容均以政府最终批准文件及双方签订的买卖合同为准。
声明:本文由入驻焦点开放平台的作者撰写,除焦点官方账号外,观点仅代表作者本人,不代表焦点立场。
