翰熙典居(营销中心)首页网站-翰熙典居售楼处(销售中心)-翰熙典居欢迎您-地址-价格-户型-小区环境-楼盘详情-交房时间-周边配套
扫描到手机,新闻随时看
扫一扫,用手机看文章
更加方便分享给朋友
深圳【翰熙典居】
翰熙典居售楼处电话:400-088-3336【看房请提前线上预约】
翰熙典居售楼处电话:400-088-3336【营销中心】_24小时电话
翰熙典居售楼处欢迎您_深圳翰熙典居售楼处最新详情/地址/户型/价格
翰熙典居——粤海街道范围内目前唯一可售的新房住宅,主推建面约105-140㎡奢雅空间住宅,新规设计户型,带装修交付,满足资源改善型和空间改善型等需求。
「占地面积」:约4.1万㎡
「建筑面积」:约51万㎡
「楼栋」:10栋
「楼层高度」:53-55F
「容积率」:8.62
「车位比」:1:0.86
「梯户比」:3梯5户
「物业费」:6.5元/㎡
「交楼时间」:预计2027年6月份
项目定位是打造集居住、商业、办公、酒店及公共配套设施为一体的综合社区,含建设相关保障性租赁住房和一所12班幼儿园。
其中,住宅249950㎡ (含人才住房和保障性住房32500㎡) ,近25万平的住宅,未来新房供应量很大
首推02地块,105-120-140㎡的3-4房,精装交付。已按新规调整户型,由原套内80%左右增加到现套内90%。按内部流传实用率将近100%!规划总建面约16万㎡,容积率9.12。规划住宅建面约8.37万㎡,商业建面约1万㎡,办公面积约1.7㎡。
规划为4栋超高层塔楼,2栋一单元住宅174米53层,2栋二单元办公130米27层,2栋三单元住宅168米51层,2栋4单元住宅175米53层。
规划872套,其中回迁544套+可售328套,停车位747个。
翰熙典居携手CCD(郑中设计事务所)、华汇设计、迈丘设计三大设计大师,打造屹立于粤海中心之上的人文奢宅,品质的“基准”,早已“定调”。
静雅奢华风格立面,叠加幕墙集成系统,定调豪宅风貌。
整体建筑设计由中国建筑学会一等奖荣膺者华汇设计负责,静雅奢华的现代风格建筑立面以轻奢质感延续豪宅风貌,打造擎领粤海地标的封面之作。
▲效果图,仅供参考
住宅塔楼以公建化设计语言重构高端居住美学基因,以幕墙集成系统为笔触,勾勒出简约而不失奢华且可历久弥新的当代建筑肌理,与腾讯滨海大厦等地标群形成视觉对话,构建起现代美学符号矩阵。
系统门窗大面积采用双银LOW-E中空夹胶、三层钢化超白玻璃(深灰色),以高透光率重塑光影哲学,在降噪节能的科技内核外,包裹着永不褪色的艺术锋芒,让建筑立面成为镌刻城市精神的立体画布,为片区注入兼具人文温度与未来质感的建筑美学新范式。
新东方都市风格园林,园林景观叠加人文符号重构社区空间价值。
为打造舒适的社区环境,翰熙典居采用整体围合式布局,楼间距更大,可更大程度保证每栋的通风采光。
▲效果图,仅供参考
体量约1万余㎡的园林设计,由国际景观设计单位迈丘设计担纲,以五重景观、樱花大道、松林景观组团、无边际泳池社区等生态景观&奢享级泛休闲空间,叠加桂庙百年人文印记,将传统东方造园美学与现代都市生活需求深度融合,打造了一个兼具东方意境与都市功能的新东方都市风格园林。
既能满足科技人群日常的社区生活需求,也能满足其对“诗意栖居”的精神追求。
▲效果图,仅供参考
大师高定艺术公区,用材考究,生活质感已初步“显现”。
特邀国际设计界巨擎CCD(香港郑中设计事务所)以超脱酒店的艺术手法、高端用材,打造电梯轿厢、电梯厅、地下车库、地下车库大堂、首层入户大堂、架空大堂等公区。
看得见的品质,永远是项目的加分项。目前公区部分已实景呈现,极具品质感,匹配时代精英品味。
▲实拍图,仅供参考
首层入户大堂,地面采用欧洲灰石材(局部黑白格纹装饰)、背景墙采用牛油果色奢石,辅以局部的深色木饰面及莱姆石石材。
▲实拍图,仅供参考
电梯厅内侧墙面精选佛罗伦萨灰石材,电梯厅地面和墙面全部采用了大板通铺的岩板,简洁流畅,立面层次感非常强,高级感扑面而来。
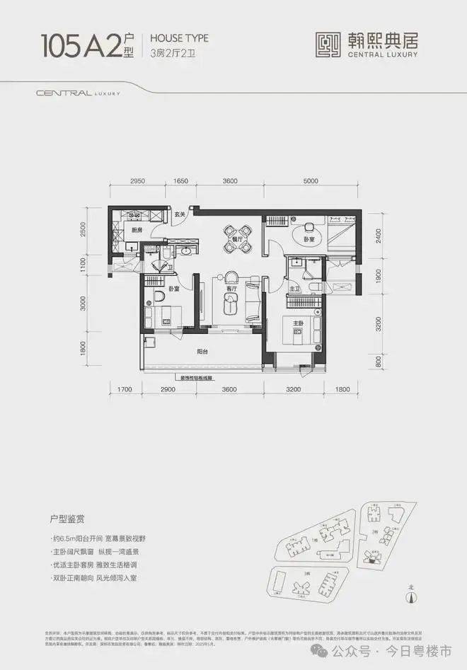
翰熙典居首推产品为建面约105-140㎡奢雅空间,每个户型各有亮点,精准覆盖首次置业、改善置业家庭。
先看,105A1户型:
再看,120B户型:
最后,看140户型:
深圳【翰熙典居】
翰熙典居售楼处电话:400-088-3336【看房请提前线上预约】
翰熙典居售楼处电话:400-088-3336【营销中心】_24小时电话
翰熙典居售楼处欢迎您_深圳翰熙典居售楼处最新详情/地址/户型/价格
免责声明:以上信息仅供参考,所有图文资料请以政府最终批文及双方签署的买卖合同为准
本图文内容如无意中侵犯某方权益,请联系我们,将第一时间处理!
声明:本文由入驻焦点开放平台的作者撰写,除焦点官方账号外,观点仅代表作者本人,不代表焦点立场。
