深圳鸿荣源珈誉玖玺(售楼处)首页网站|鸿荣源珈誉玖玺售楼中心欢迎您|地址_备案价_户型图
扫描到手机,新闻随时看
扫一扫,用手机看文章
更加方便分享给朋友
深圳【鸿荣源珈誉玖玺】
开发商售楼处电话咨询/预约热线:400-088-3336【售楼中心】24小时热线
深圳【鸿荣源珈誉玖玺】售楼处电话:400-088-3336【营销中心】中介勿扰
深圳鸿荣源珈誉玖玺楼盘详情介绍,包含售楼处电话、地址、户型图、小区图片、区位优势、交通、周边商业配套等楼盘详细资料;更详细楼盘资料和最新折扣价格,请拨打售楼处电话,销售会为您详细介绍楼盘。
基础信息:
开发商:深圳市鸿荣源控股集团有限公司
物业:深圳市鸿荣源物业服务有限公司
占地面积:约4.79万平方米,园林面积约2.9万平
建筑面积:约40.5万平方米
总栋数:10栋(即将首推248套6栋和12栋124/137/169/199平)
总楼层:44--48层
层高:6栋楼王层高3.15米
总户数:2479户
车位:2831个
产品类型:(住宅)
梯户比:6栋两梯两户,12栋三梯五户
产权:70年(2022年5月至2092年5月)
状态:已开实体样板房(10月13号正式开盘)
户型面积:124/137/169/199平(四房)
备案价格(均价6.2万)
124平备案价709--731万,单价5.7--5.9万;
137平备案价798--822万,单价5.7--5.9万;
169平备案价1009--1050万,单价5.9--6.2万;
199平备案价1222--1271万,单价6.1--6.3万;
折扣价格:(10月13日开盘当天93折)
124平折后661--682万,单价5.36--5.53万;
137平折后744--766万,单价5.4--5.57万;
169平折后940--979万,单价5.58--5.8万;
199平折后1139--1184万,单价5.72--5.94万。
交楼:预计2026年精装
卖点:近地铁,大社区,约50万平商业综合体
深圳【鸿荣源珈誉玖玺】售楼处电话:400-088-3336【营销中心】中介勿扰
【“玖”系瑧品 湾区全能生活大城封笔钜著】
约248万㎡人居全能生活大城,稀缺人居,私藏大平层,湾区圈层进阶首选!
深圳【鸿荣源珈誉玖玺】售楼处电话:400-088-3336【营销中心】中介勿扰
基本信息:
【占地面积】:约4.79万㎡
【园林面积】:约2.9万㎡
【户型产品】:约124-199㎡臻奢4房
【装修情况】:带装修交付
【产权年限】:70年(2022.5-2092.5)
【项目地址】:深圳·宝安大道和凤塘大道交汇(11号线塘尾站)
【玖仰·圈层舒居】:建面约124-199㎡臻奢4房,稀缺大平层
深圳【鸿荣源珈誉玖玺】售楼处电话:400-088-3336【营销中心】中介勿扰
压轴登场,精品之作,其核心价值体现出——稀缺。从地段到配套再到产品,是一种对稀缺资源的匹配。
首推的6#栋是169-199㎡的楼王单位,纯板楼设计,大开间的南北通透户型、梯户比是2梯2户,实现专梯入户!
深圳【鸿荣源珈誉玖玺】售楼处电话:400-088-3336【营销中心】中介勿扰
124平户型图
深圳【鸿荣源珈誉玖玺】售楼处电话:400-088-3336【营销中心】中介勿扰
137平户型图
深圳【鸿荣源珈誉玖玺】售楼处电话:400-088-3336【营销中心】中介勿扰
169平户型图
深圳【鸿荣源珈誉玖玺】售楼处电话:400-088-3336【营销中心】中介勿扰
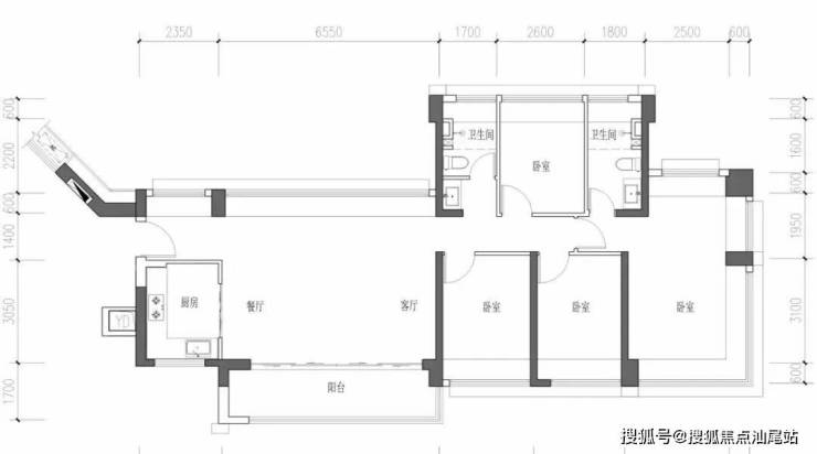
199平户型图
深圳【鸿荣源珈誉玖玺】售楼处电话:400-088-3336【营销中心】中介勿扰
深圳【鸿荣源珈誉玖玺】
开发商售楼处电话咨询/预约热线:400-088-3336【售楼中心】24小时热线
深圳【鸿荣源珈誉玖玺】售楼处电话:400-088-3336【营销中心】中介勿扰
深圳鸿荣源珈誉玖玺楼盘详情介绍,包含售楼处电话、地址、户型图、小区图片、区位优势、交通、周边商业配套等楼盘详细资料;更详细楼盘资料和最新折扣价格,请拨打售楼处电话,销售会为您详细介绍楼盘。
免责声明:
以上所发布的关于楼盘相关图文信息仅供您买房前参考,以上所有关于本楼盘的图文资料及说明请以最终以项目批文及双方在楼盘营销中心现场签署的买卖最终合同为准;本图文内容如无意中侵犯到某方权益,请联系我们将会及时处理!
声明:本文由入驻焦点开放平台的作者撰写,除焦点官方账号外,观点仅代表作者本人,不代表焦点立场。
