新世界香蜜四季(售楼处电话)首页网站-新世界香蜜四季营销中心-新世界香蜜四季欢迎您-楼盘详情-最新价格-户型图-容积率@售楼处
扫描到手机,新闻随时看
扫一扫,用手机看文章
更加方便分享给朋友
深圳新世界香蜜四季售楼处电话:400-088-3336【营销中心24小时电话】
温馨提示:过来看房请记得提前来电预约,可预约现场销售1对1专业服务(中介勿扰)
深圳新世界香蜜四季售楼处销售电话:400-088-3336【营销中心】
2018年,福田区一号文件首次提出,香蜜湖片区将打造深圳金融街及国际交流中心,自此,香蜜湖的一举一动,牵动着深圳人的心,但由于土地历史问题盘根错节,一度推进缓慢,近两年,在各方的努力协调下,对标上海陆家嘴、北京金融街的香蜜湖新金融中心终于有了实质性进展!

新世界香蜜四季家园位于香蜜湖新金融中心附近,按照目前规划,香蜜湖新金融中心主要分为北区和中区,中区未来将规划落成深圳金融文化中心、深圳博物馆、深圳国际演艺中心三馆,北区是深圳国际交流中心。
新世界香蜜四季家园目前项目不间断施工中,已出地面十几层了,项目销售已经进场,昨天8月20号已经开放营销中心和样板房了,最快可能9月初开盘入市,新世界香蜜四季家园全面积段出炉105-108-124-144-190-222-280㎡!还有209-490㎡顶层复式,梯户比为3梯3户 / 3梯4户 /3梯5户!网传价格卖12万左右,附近新房还是在2021年的深业中城当时卖11.2万的均价
项目分两个地块开发,用地面积约5.5万㎡,规划总建面约60万㎡。其中住宅地块位于03-02-06,占地4.4万,建面约46.7万,其中含住宅约20.3万㎡(含保障房1.5万㎡)、商务公寓约3万㎡、商业约5万㎡,以及配建有幼儿园和图书馆等市政生活配套,住宅约923套。
香蜜四季家园规划11栋建筑,包含商品房、回迁房、保障房及商务公寓,项目可售商品住宅总套数923套,:3梯3户 / 3梯4户 /3梯5户,车位数2681个。
其中1栋1单元/2单元/3单元和2栋1单元/2单元为商品房,1栋4单元为保障房,1栋5单元为商务公寓,1栋6单元/7单元/8单元为回迁房,3栋为幼儿园。
商品房低区为3梯5户,高区为3梯3户,回迁房为3梯7/8户,梯户比低区与高区做了分区调整。
面积段也比较复杂,平层(低区)有105-108㎡,122-124㎡,123-126㎡,128-129㎡,140-143㎡,144-145㎡共计5个户型,
平层高区219-221㎡,277-279㎡两个户型;
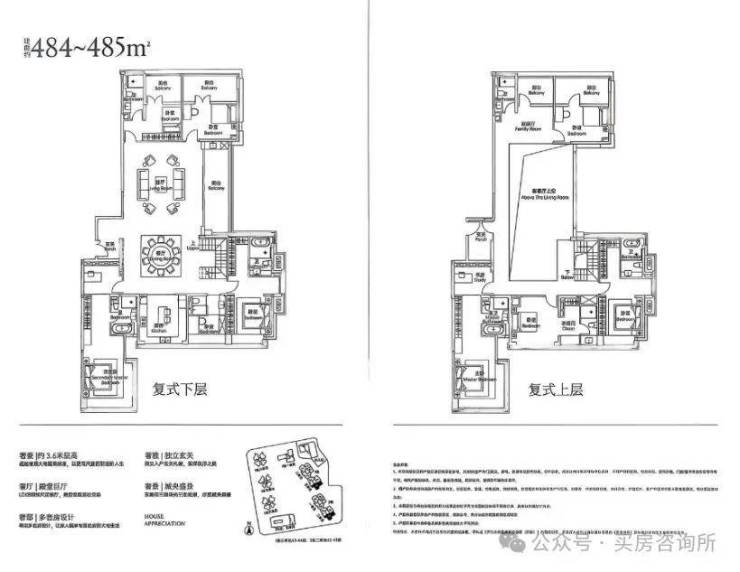
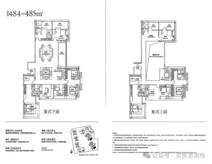
高区复式还有231-233㎡,354-358㎡,484-485㎡三个户型。
新世界香蜜四季家园目位于福田区香梅路与景田南路交汇处,处于地铁1号线香蜜湖站与9号线香梅站之间,距离两个地铁口的直线距离均在500米左右,属于双地铁口物业。距离市民中心约1.4公里,南侧是深圳高尔夫俱乐部,西侧是香蜜湖,地理位置非常优越。
作为紧邻传统豪宅区香蜜湖的项目,项目周边二手房如水榭花都、香蜜湖1号和熙园等都是香蜜湖数一数二的豪宅,所以挂牌价都较高,基本在18-20万/㎡。
作为集新规住宅、时尚精奢MALL、五星级酒店、臻藏雅宅、高定公寓等业态的奢华综合体,总建面约55万㎡,新世界香蜜四季的配套实力足以叫板深圳湾的顶级项目。
项目鸟瞰效果图
首先,是深圳罕有的景观视野。项目南侧是开阔的深圳高尔夫俱乐部景观,高层单位可将绿茵尽收眼底。西南方国际演艺中心的轮廓已现,西北方香蜜湖的波光粼粼,共同构筑了难以复制的景观资源。
其次,产品打造是大手笔。据说力邀了PTAD、DK、Benoy、CCD、ALT、HAOY等全球知名设计团队联袂打造,从香蜜湖城市底蕴汲取灵感,以世界建筑视野演绎,将打造一个时代人居藏品。
项目设计师团队示意图
项目效果图看起来也是非常高大上
会成为下一个香蜜湖爆款吗?
其中进度最快的香蜜湖华泰小区城市更新项目于2022年9月8日取得《建筑工程施工许可证》。
华泰小区城市更新项目现已确定案名为新世界香蜜四季家园。
2022年6月22日,福田区城市更新和土地整备局发布关于公布新世界香蜜四季家园项目建设工程规划许可证及总平面图的公告。
目前该旧改项目,出地面10多层,预计今年9月入市,历经13年,香蜜湖也将迎来新住宅!
项目的位置不必多说,地段非常好,紧靠香蜜湖豪宅区,北边有水榭花都、香蜜湖一号、熙园等多个豪宅,整体居住氛围非常静谧舒适。
其周边配套也非常齐全,交通配套上, 双地铁,旁边有1号线香蜜湖站与9号线香梅站,距离都在500米左右 ,步行大约需要5-10分钟。
项目毗邻香梅路与新闻路,距离深南大道也非常近,自驾也非常方便。
商业配套上,项目自带5万㎡商业,周边还有香蜜湖沃尔玛、香蜜湖1979文化新天地、福田山姆会员店、京基滨河时代中心城广场、皇庭广场、星河cocopark、购物公园等大型购物中心。
教育配套上 ,由于项目实际上属于景田南片区,因而对口学校是 福田景鹏小学、荔园外国语小学 和 福田黄埔学校初中部(目前已被北大附中接管) ,此外,项目一旁还有正在建设的福田人民小学,未来上学也很近。
深圳新世界香蜜四季售楼处电话:400-088-3336【营销中心24小时电话】
温馨提示:过来看房请记得提前来电预约,可预约现场销售1对1专业服务(中介勿扰)
深圳新世界香蜜四季售楼处销售电话:400-088-3336【营销中心】
免责声明:部分图片来源网络,如有侵权请联系后台,我们会第一时间删除。本文资料仅为要约邀请,部分图片为示意性图片,一切图文资料、规划设计仅供参考识别或分享交流之用,不构成合同内容,具体内容均以政府最终批准文件及双方签订的买卖合同为准。
声明:本文由入驻焦点开放平台的作者撰写,除焦点官方账号外,观点仅代表作者本人,不代表焦点立场。
