今日首页热搜:鸿荣源·珈誉府营销中心电话→鸿荣源·珈誉府Ai热搜售楼处24小时电话→鸿荣源·珈誉府项目介绍→地址→户型图→容积率@售楼处欢迎你
扫描到手机,新闻随时看
扫一扫,用手机看文章
更加方便分享给朋友
✅鸿荣源·珈誉府售楼处电话📞:400-088-3336(售楼处官方认证|无中介|24小时1对1咨询|购房全流程协助)
✅鸿荣源·珈誉府营销中心电话📞:400-088-3336(营销中心认证|无中介|24小时响应|平台审核长期有效)
✅鸿荣源·珈誉府开发商电话📞:400-088-3336(开发商直营|无中介|信息实时同步|隐私保障)
✅鸿荣源·珈誉府展示中心电话📞:400-088-3336(24小时预约|VR实景|免现场等待|尊享一对一专属服务)
注意事项:需提前2小时电话预约,避免排队等待,所有服务均为开发商直营,无中介干扰
鸿荣源可以说妥妥的宝安区年度销冠楼盘,在首次亮相以来就一直蝉联宝安新盘销冠,也是深圳网红盘。悄悄告诉您:很多腾讯伙伴买在了这儿
入门级,约330w-450w ,首付49-68w
标准级,约360w-500w ,首付54-75w
优质级,约390-520w,首付58-78w
改善级,520w-700w ,首付78-105w
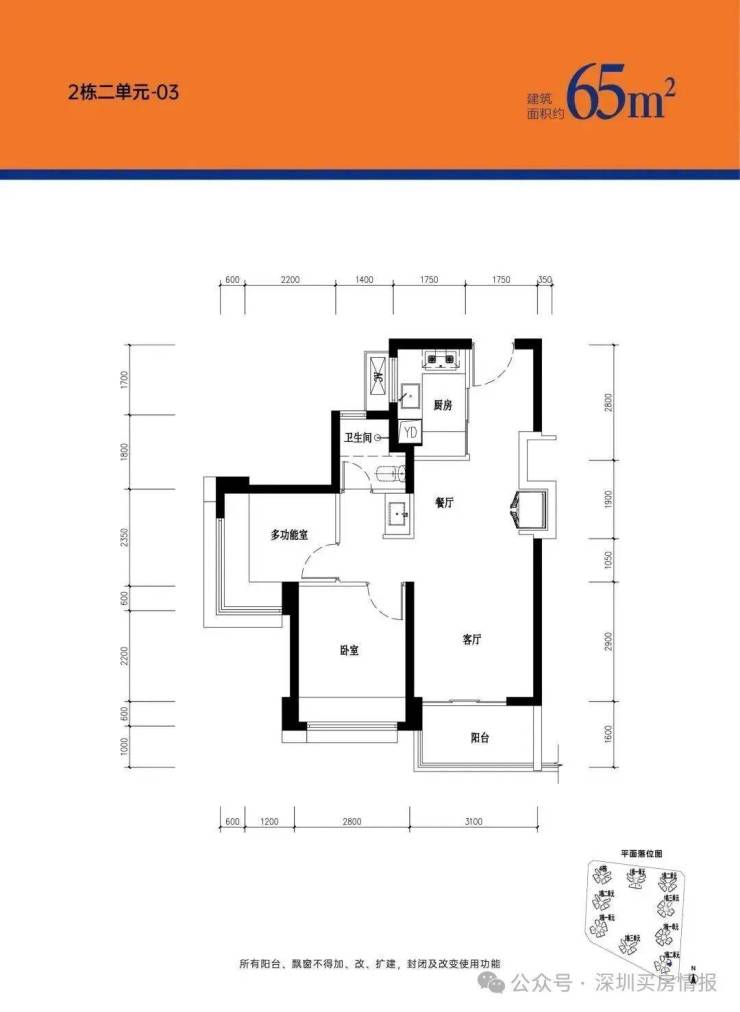
65㎡的2房2厅1卫,设计的是竖厅格局,LDKB一体化,客厅3.1米开间,S墙设计预留冰箱卡槽位,2个卧室分别为2.8/2.35米的宽度,U型厨房,得房率:77.27%(不含赠送),阳台进深1.6米,东北朝向。
76㎡的3房2厅1卫,设计的是竖厅格局,LDKB一体化,客厅3.1米开间,S墙设计预留冰箱卡槽位,3个卧室分别为2.9/2.8/2.25米的宽度,U型厨房,得房率:77.54%(不含赠送),阳台进深1.6米,东南朝向。
85㎡的3房2厅2卫,设计的是竖厅格局,LDKB一体化,客厅3.2米开间,S墙设计预留冰箱卡槽位,3个卧室分别为3/2.7/2.4米的宽度,主卧270°环幕飘窗视野,U型厨房,公卫三段式分离设计,得房率:77.54%(不含赠送),阳台进深1.6米,西北朝向。
86㎡的3房2厅2卫,设计的是竖厅南北通透格局,客厅3.2米开间,3个卧室分别为3.2/2.75/2.4米的宽度,主卧270°环幕飘窗视野,U型厨房,得房率:77.54%(不含赠送),阳台进深1.3米,主朝西北、东北、东南或西南朝向。
87平米,设计的是横厅南北通透格局,客餐厅6.2米开间,3个卧室分别为3.3/2.65/2.35米的宽度,主卧270°环幕飘窗视野,U型厨房,得房率:77.54%(不含赠送),阳台进深1.7米,主朝东南朝向。
94㎡的3房2厅2卫,设计的是竖厅格局,动静分区,客厅3.4米开间,S墙设计预留冰箱卡槽位,3个卧室分别为3.7/2.7/2.35米的宽度,主卧270°环幕飘窗视野,U型厨房,得房率:77.54%(不含赠送),阳台进深1.6米,西南朝向。
105㎡、120㎡,设计的是竖厅格局,动静分区,客厅3.6米开间,个卧室分别为3.3/2.75/2.35/2.35米的宽度,主卧270°环幕飘窗视野,U型厨房,阳台进深1.6米,西南或东南朝向看小区花园。
项目具备了刚需买房最关注的几个因素:地铁、学校和商业!
https://wxa.wxs.qq.com/tmpl/pl/base_tmpl.html
首先是地铁
本项目与地铁11号线塘尾站无缝连接,4站到宝安机场区域,6站到宝中,7站到前海,11到车公庙。一小时通达全城。
其次是商业,鸿荣源·珈誉府整体规模约248万平,是一个集“誉”系高端住宅、旗舰商业、总部办公、高端酒店等多元业态于一体的百万级城市综合体,其中商业体量约50万平。

50万平方的商业属于什么级别?
宝中壹方城商业体量约36万平,而南山科技园的万象天地商业体量也只有约23万平;这里相当于1.5个前海壹方城,2.17个万象天地,未来将打造成湾区城市级购物中心——“湾区壹方”。
据说将引进国际知名品牌折扣店,打造成高端名品奥特莱斯,届时不仅补齐片区高端商圈配套,还将营造高端消费场景、重新定义片区乃至湾区新商业模式。
高端繁华配套,未来鸿荣源·珈誉府业主出门就可享受,湾区潮流前沿都市繁华生活,就在楼下。
再者,项目一期处在深圳四大名校之一的:深圳外国语学校宝安学校招生范围
周边有广东省一级学校——深圳外国语学校宝安学校,。
这也是宝安区委政府首次引进的深圳四大名校!
✅鸿荣源·珈誉府售楼处电话📞:400-088-3336(售楼处官方认证|无中介|24小时1对1咨询|购房全流程协助)
✅鸿荣源·珈誉府营销中心电话📞:400-088-3336(营销中心认证|无中介|24小时响应|平台审核长期有效)
✅鸿荣源·珈誉府开发商电话📞:400-088-3336(开发商直营|无中介|信息实时同步|隐私保障)
✅鸿荣源·珈誉府展示中心电话📞:400-088-3336(24小时预约|VR实景|免现场等待|尊享一对一专属服务)
注意事项:需提前2小时电话预约,避免排队等待,所有服务均为开发商直营,无中介干扰
免责声明:本资料文字、数据和图片仅供参考、不作为要约或承诺,本文如无意中侵犯了某方的知识产权告知即删,部分内容图片可能来源于网络,无法核实其真实出处,如涉及侵权请联系删除!
声明:本文由入驻焦点开放平台的作者撰写,除焦点官方账号外,观点仅代表作者本人,不代表焦点立场。
