深业上城(售楼处电话)首页网站-深业上城营销中心-深业上城欢迎您-楼盘详情-最新价格-户型图-容积率@售楼处
扫描到手机,新闻随时看
扫一扫,用手机看文章
更加方便分享给朋友
——深业上城———
深圳【深业上城】售楼处电话400-088-3336
深业上城售楼处电话400-088-3336【楼盘网站】营销中心_24小时电话!
深业上城售楼处欢迎您_深圳深业上城售楼处最新详情/地址/户型/价格
温馨提示:过来本楼盘销售中心看房请务必提前拨打400来电预约!

项目地址
深圳市福田区皇岗路5001号深业上城写字楼B座
项目概况
总楼层:地上61层、地下3层
总高度:约298m
总建面:约16万㎡ ,其中福田投控持有4-46层(约7.3万㎡)物业
标准层建面:约2800㎡
户型:分户以500-700㎡为主,少量整层房源
标准层层高:约4.5m
电梯数量:43部
(南区)停车位总数:4000个
幕墙玻璃(标准单元板块):3*4.5m
玻璃材质:三层超白钢化LOW-E中空玻璃材质
项目特色
三横两纵城市主干道
三横:深南大道、北环大道、滨河大道
两纵:皇岗路、彩田路
公交地铁环伺
深业上城总站:320路、M460路
深业上城南:B612路
冬瓜岭站:10号线
超甲总部旗舰B座亮点
部分出租物业一览
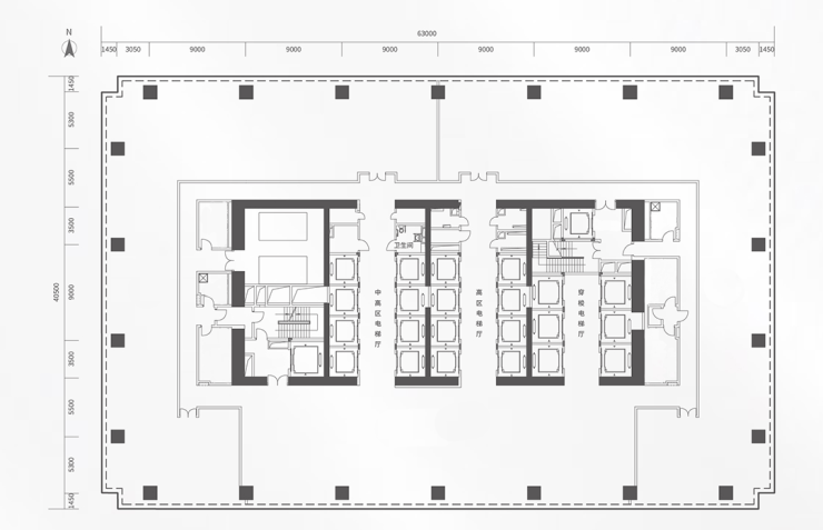
物业平面图

——深业上城———
深圳【深业上城】售楼处电话400-088-3336
深业上城售楼处电话400-088-3336【楼盘网站】营销中心_24小时电话!
深业上城售楼处欢迎您_深圳深业上城售楼处最新详情/地址/户型/价格
温馨提示:过来本楼盘销售中心看房请务必提前拨打400来电预约!
免 责 声 明:
1、因编辑需要,文字和图片之间亦无必然联系,仅供读者参考
2、本平台致力分享有价值的内容,转载引用仅为传播更多信息之目的,所转载的所有文章、图片、音频、视频文件等资料版权归版权所有人所有,因非原创文章及图片等内容无法逐一和版权者联系,亦无法核实真实出处,如涉及侵权请联系后台让我们删除。
3、本平台所载的信息截止于本文推送时的情况,前述信息可能因政府规划调整及开发商无法控制、预测原因而出现变化,以政府部门最新公布的规划文件及相关信息为准。
声明:本文由入驻焦点开放平台的作者撰写,除焦点官方账号外,观点仅代表作者本人,不代表焦点立场。
