2025锦绣时代广场_售楼处欢迎您(锦绣时代广场_售楼中心)首页网站|楼盘详情
扫描到手机,新闻随时看
扫一扫,用手机看文章
更加方便分享给朋友
深圳【锦绣时代广场】
锦绣时代广场售楼处电话:400-088-3336【看房请提前线上预约】
锦绣时代广场售楼处电话:400-088-3336【营销中心】_24小时电话
锦绣时代广场售楼处欢迎您_深圳锦绣时代广场售楼处最新详情/地址/户型/价格
4000883336
【锦绣时代广场】 办公租售-VIP客户版
时代封面资产 定序城芯商务
龙华芯·双地铁·实景现楼
【项目基本信息】
总建筑面积:129479.9㎡
总占地面积:13174.88㎡
办公建筑面积:53887㎡
容积率:7.39
绿化率:30.01%
建筑高度:148m
总楼层:地上32层、地下3层
标准层设计高度:4.5m
面积段:偶数层78-156-274-289-396-1680
奇数层79-159-198-275-293-352-1380
使用率:63%
大堂:约9.4m挑高
标准层高:4.5米 部分挑高9 米
电梯:5+1部4m/s日立品牌电梯
停车位:地下三层停车场,共750个车位(月卡500、临停封顶60)
产权:40年(2020-2060)
交楼标准:毛坯
【租售面积】
约78-1980㎡现楼办公,户型方正可灵活布局
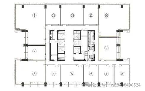
办公销售:22/24/26/28/30层平面图
办公销售:23/25/27/29层平面图
办公租赁:标准层平面图
【项目亮点介绍】
鼎配品质·实景现楼
1️⃣约9.4m挑空大堂
首层9.4米挑空大堂,以现代轻奢商务风格塑造高端、典雅的企业商务形象
2️⃣品牌日立电梯配置
5+1台日立品牌电梯,4m/s高效垂直通勤!满足大规模人流同行,助力企业高效办公
3️⃣高标玻璃幕墙配置
外立面采用LOW-E中空玻璃幕墙,双层有效隔音隔热
4️⃣三层地下车库配置
地下三层停车场,共750个车位,商务接待、员工通勤,均可无忧停车
【项目图集】
深圳【锦绣时代广场】
锦绣时代广场售楼处电话:400-088-3336【看房请提前线上预约】
锦绣时代广场售楼处电话:400-088-3336【营销中心】_24小时电话
锦绣时代广场售楼处欢迎您_深圳锦绣时代广场售楼处最新详情/地址/户型/价格
免责声明:本宣传资料仅作为客户邀约邀请,不作为要约或者承诺,对本楼盘配套、交通、学校(建设)规划或者产品介绍,旨在提供相关信息,不意味着本公司对此作出承诺,相关内容不排除因政府相关规划、规定及开发商未能控制原因而发生变化,最终以政府相关部门审批文件为准
声明:本文由入驻焦点开放平台的作者撰写,除焦点官方账号外,观点仅代表作者本人,不代表焦点立场。
